Pronájem bytu 3+kk, Praha - Kunratice, Za valem, 80 m2

Za valem, Kunratice - Praha-Kunratice

28 500 Kč /za měsíc Získejte výhodnou HYPOTÉKU

(vratná jistota, náklady na bydlení 4.400 Kč, poplatek za podnájem)

Exkluzivní partneři v Praze 4

Stěhovací služby

Výkup a prodej starého nábytku

Informace k bytu

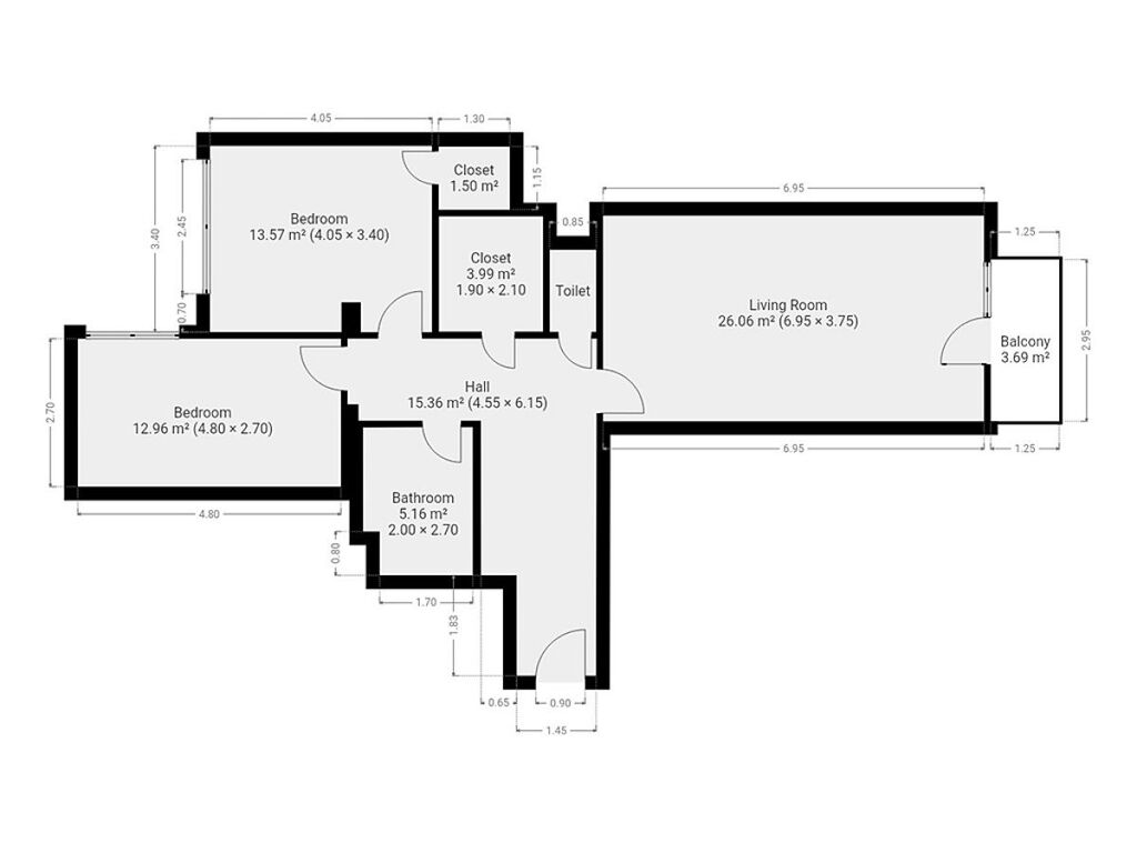
Nabízíme k dlouhodobému podnájmu prostorný a světlý byt o dispozici 3+kk a celkové výměře 80 m², který se nachází v 5. patře udržovaného bytového domu s výtahem.

Byt je částečně vybavený, což dává novým nájemníkům možnost dotvořit si interiér podle vlastního vkusu. Moderní kuchyňská linka je plně vybavena – najdete zde lednici s mrazákem, elektrickou a mikrovlnnou troubu, indukční varnou desku, digestoř i myčku nádobí. Součástí kuchyně je také praktická komora s pračkou. Na kuchyň plynule navazuje obývací pokoj s pohodlnou sedací soupravou, jídelním koutem a přímým vstupem na balkon, který poskytuje příjemné místo k odpočinku. Byt dále nabízí dva samostatné pokoje, které lze využít jako ložnice, dětský pokoj či pracovnu. Koupelna je vybavena vanou, umyvadlem a pračkou, toaleta je samostatná. Velkou výhodou jsou také dvě úložné místnosti, ideální například jako šatna nebo komora.

V okolí domu je kompletní občanská vybavenost – supermarket Lidl, restaurace, pošta, lékařská péče, školy a školky. Milovníky přírody potěší Kunratický les, vzdálený jen pár minut chůze. Výbornou dopravní dostupnost zajišťují blízké zastávky autobusů s rychlým spojením na metro.

Byt je volný k nastěhování ihned.

Energetická náročnost budovy: třída G (průkaz nedodán).

Parametry bytu

Cena
28 500 Kč /za měsíc
Poznámka k ceně
vratná jistota, náklady na bydlení 4.400 Kč, poplatek za podnájem
Aktualizováno
9. 10. 2025
Adresa
Za valem, Kunratice - Praha-Kunratice
ID
N6820
Stavba
Cihlová
Stav objektu
Velmi dobrý
Patro
5. z 6
Vybaveno
Částečně
Typ objektu
Patrový
Lokalita objektu
Klidná část obce
Vlastnictví
Osobní
Užitná plocha
80 m2
Podlahová plocha
80 m2
Třída energetické náročnosti
G - Mimořádně nehospodárná
Elektřina
230V
Topení
Ústřední dálkové
Doprava
Silnice, MHD, Autobus
Balkon
Výtah
Parkování

Kontaktovat makléře

Máte zájem o tento byt?

Tímto, v souladu s nařízením Evropského parlamentu a Rady (EU) 2016/679, v platném znění, prohlašuji, že mi je alespoň 16 let a uděluji tak svůj souhlas se zpracováním zadaných údajů (jméno, telefon, e-mail, ip adresa) společnosti B3 Technology, s.r.o., IČ: 07330600, se sídlem Novostavby 126/23, 435 11 Lom (správce dat), za účelem předání dotazu z tohoto formuláře Vámi vybranému inzerentovi a zpětného kontaktování mé osoby. Osobní údaje bude správce zpracovávat manuálně i automaticky přímo prostřednictvím svých zaměstnanců. Informace předané tímto formulářem budou uloženy v databázi správce maximálně po dobu 10 let. Odvolání souhlasu s uložením a zpracováním poskytnutých dat lze e-mailem na info@vitio.cz. V případě podezření na neoprávněné použití Vámi poskytnutých údajů máte právo předat podnět k šetření Úřadu pro ochranu osobních údajů. Více informací
Chystáte se prodat nemovitost?
Pomůžeme Vám!

Inzerát si prohlédlo 1 lidí

Prodejce

Miloslava Kačerová

Miloslava Kačerová

Hlídací pes

Chcete dostávat emailem podobné nabídky pronájmu bytů 3+kk v Praze 4?

Podobné nemovitosti