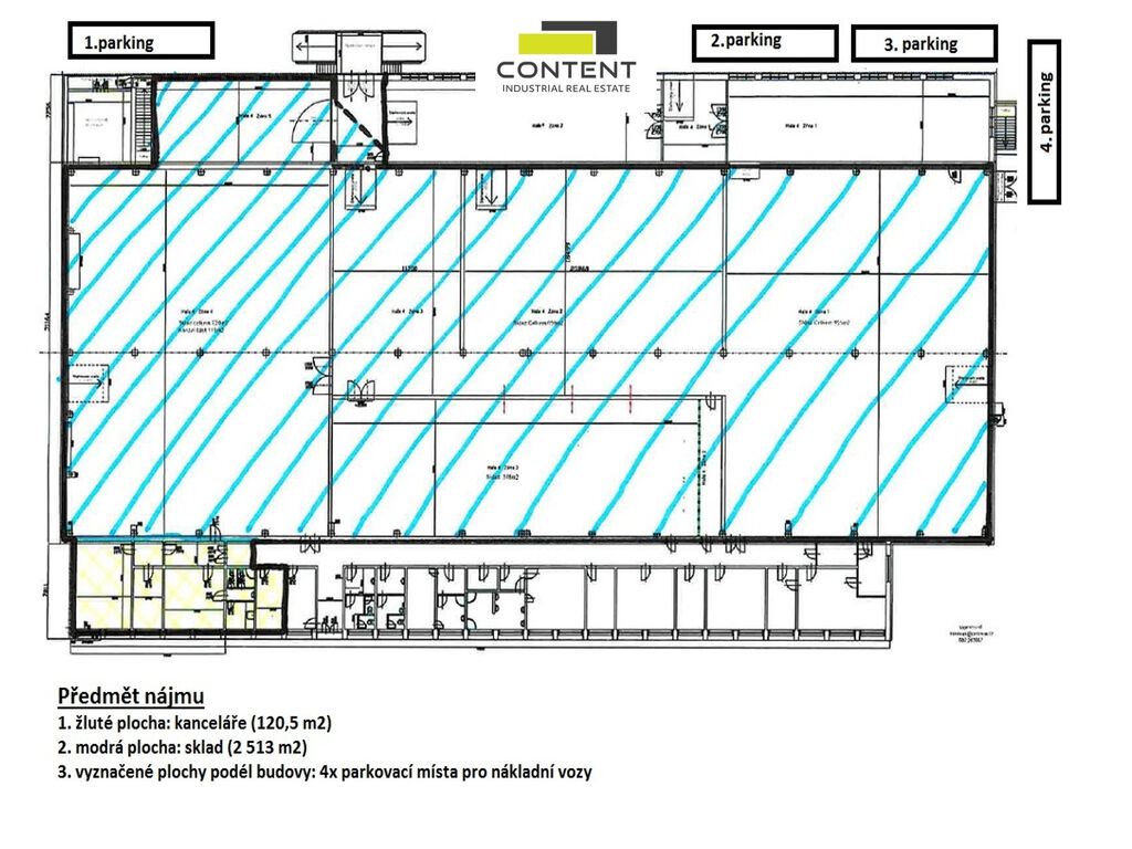
Pronájem skladu, Plzeň - Doubravka, Hřbitovní, 2513 m2

Hřbitovní, Plzeň, Doubravka

Cena na vyžádání /za metr čtvereční / měsíc Získejte výhodnou HYPOTÉKU
Exkluzivní partneři v Plzni

Podlahy

Stěhovací služby

Informace k nemovitosti

Pronájem skladu, výrobních prostor 2513 m² Plzeň - Doubravka.
V zastoupení majitele a bez provize nabízíme industriální prostory vhodné pro sklad nebo výrobu o velikosti 2513 m², umístěné v průmyslovém areálu, nedaleko dálnice D5, EXIT 67.

- k dispozici od 12/2025 (budova 4),
- nosnost podlahy 5 t/m²,
- výška stropu 5 m,
- vjezdy v úrovni vozovky, vstup z rampy,
- kancelářské a soc. zázemí celkem až 378 m²,
- parkování i manipulace i pro nákladní vozy,
- zastávka MHD, vlakové nádraží v blízkosti,


Cena k jednání: nájemné sklady: 110 Kč/m²/měsíc, nájemné kanceláře: 250 Kč/m²/měsíc + poplatky za údržbu areálu: 19 Kč/m², spotřeba energií dle vlastní spotřeby.
Pro více informací nás kontaktujte, rádi Vám zajistíme prohlídku nemovitosti.

Parametry nemovitosti

Cena
Cena na vyžádání
Aktualizováno
10. 10. 2025
Adresa
Hřbitovní, Plzeň, Doubravka
ID
N5634
Stavba
Skeletová
Stav objektu
Velmi dobrý
Typ objektu
Přízemní
Lokalita objektu
Rušná část obce
Užitná plocha
2513 m2
Třída energetické náročnosti
D - Méně úsporná
Parkování

Kontaktovat makléře

Realitní kancelář

Logo CONTENT REALITY s.r.o.

CONTENT REALITY s.r.o.

Průmyslová 1472/11, Praha 10

Chystáte se prodat nemovitost?
Pomůžeme Vám!

Máte zájem o tuto nemovistost?

Tímto, v souladu s nařízením Evropského parlamentu a Rady (EU) 2016/679, v platném znění, prohlašuji, že mi je alespoň 16 let a uděluji tak svůj souhlas se zpracováním zadaných údajů (jméno, telefon, e-mail, ip adresa) společnosti B3 Technology, s.r.o., IČ: 07330600, se sídlem Novostavby 126/23, 435 11 Lom (správce dat), za účelem předání dotazu z tohoto formuláře Vámi vybranému inzerentovi a zpětného kontaktování mé osoby. Osobní údaje bude správce zpracovávat manuálně i automaticky přímo prostřednictvím svých zaměstnanců. Informace předané tímto formulářem budou uloženy v databázi správce maximálně po dobu 10 let. Odvolání souhlasu s uložením a zpracováním poskytnutých dat lze e-mailem na info@vitio.cz. V případě podezření na neoprávněné použití Vámi poskytnutých údajů máte právo předat podnět k šetření Úřadu pro ochranu osobních údajů. Více informací
Chystáte se prodat nemovitost?
Pomůžeme Vám!

Inzerát si prohlédlo 4 lidí

Prodejce

David Machač

David Machač

Hlídací pes

Chcete dostávat emailem podobné nabídky pronájmu skladů v Plzni?

Podobné nemovitosti