Prodej rodinného domu, Vranovice, 202 m2

Vranovice

9 250 000 Kč /za nemovitost HYPOTÉKA od 41 342 Kč /za měsíc

(SLEVA!!!, včetně poplatků, včetně právního servisu)

Exkluzivní partneři v Vranovicích

Informace k domu

Hledáte prostorný rodinný dům s klidnou venkovskou atmosférou a rychlým dojezdem po dálnici do Brna? Pak vás jistě potěší nabídka RD ve Vranovicích.

Samostatně stojící patrový dům s obytným podkrovím je obklopen velkou zahradou a skýtá spoustu prostoru a soukromí. Nachází se v obytné zástavbě na okraji obce s asfaltovou cestou. Prostor u domu nabízí parkování pro 2-4 auta. S přáteli můžete posedět pod dřevěnou pergolou o rozloze 28m2 přilehlou k domu s odpočinkovým výhledem do zahrady. V zadní části pozemku stojí zahradní domek s připojením na elektřinu.

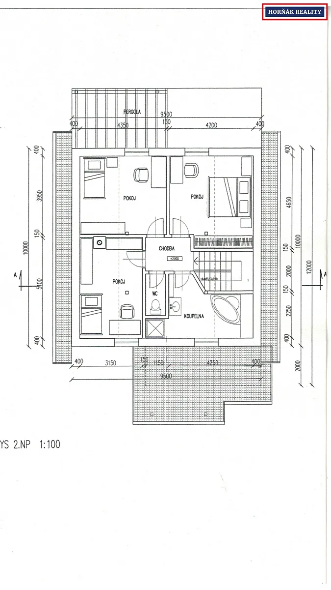
Přízemí domu je dokončené a plně funkční. Na ploše 107m2 najdete zádveří, které pokračuje do chodby se samostatnými vstupy do kuchyně, jídelny, obývacího pokoje, koupelny se sprchovým koutem a WC a komory. Schody do podkroví vedou z chodby.
V podkroví o rozloze 95m2 je vše připraveno na 3 samostatné pokoje, koupelnu a samostatné WC.
K dokončení stavby zbývají dodělávky 2NP - položení podlah, zaklopení stropů sádrokartonem a instalace sanitárního zařízení, stejně jako dokončení vnějšího zateplení a fasády. Na dokončení stavby je možné čerpat dotace ze Zelené úsporám. Kromě možnosti úpravy konečných dispozic podkroví dle vlastního vkusu a potřeb jsou dotace další z příjemných benefitů nabízeného domu.

Elektrické rozvody jsou plně funkční. Dům není napojen na plyn. Plynovod vede přímo hranicí pozemku před domem, takže není problém s jeho připojením. Voda je napojena na veřejný vodovod, velkým plusem je i vlastní studna. Odpad směřuje do veřejné kanalizace. Alternativou vytápění elektrokotlem jsou krbová kamna s výměníkem. Dům je osazen plastovými okny.

V obci najdete plnou občanskou vybavenost včetně mateřské školy a obou stupňů základní školy. Nedaleko rodinného domu je Lesní školka Jurta, dětské hřiště Hlinek a venkovní posilovna na okraji lesa.
K ceně domu bude připočtena odměna RK v běžné výši.

Zaujala vás nabídka? Řekněte si o prohlídku! Budu se na vás těšit.

Parametry domu

Cena
9 250 000 Kč /za nemovitost Spočítat hypotéku
Poznámka k ceně
SLEVA!!!, včetně poplatků, včetně právního servisu
Aktualizováno
3. 12. 2025
Adresa
Vranovice
ID
18417
Stavba
Cihlová
Stav objektu
Novostavba
Vybaveno
Ne
Druh objektu
Samostatný
Lokalita objektu
Klidná část obce
Užitná plocha
202 m2
Plocha pozemku
1560 m2
Třída energetické náročnosti
G - Mimořádně nehospodárná
Elektřina
230V
Odpad
Veřejná kanalizace
Komunikace
Asfaltová
Doprava
Vlak, Dálnice, Silnice, Autobus
Voda
Vodovod, Studna
Topné těleso
Radiátory, Krbová kamna
Zdroj topení
Elektrokotel
Zdroj teplé vody
Bojler - elektro
Výtah
Parkování

Kontaktovat makléře

Máte zájem o tento dům?

Tímto, v souladu s nařízením Evropského parlamentu a Rady (EU) 2016/679, v platném znění, prohlašuji, že mi je alespoň 16 let a uděluji tak svůj souhlas se zpracováním zadaných údajů (jméno, telefon, e-mail, ip adresa) společnosti B3 Technology, s.r.o., IČ: 07330600, se sídlem Novostavby 126/23, 435 11 Lom (správce dat), za účelem předání dotazu z tohoto formuláře Vámi vybranému inzerentovi a zpětného kontaktování mé osoby. Osobní údaje bude správce zpracovávat manuálně i automaticky přímo prostřednictvím svých zaměstnanců. Informace předané tímto formulářem budou uloženy v databázi správce maximálně po dobu 10 let. Odvolání souhlasu s uložením a zpracováním poskytnutých dat lze e-mailem na info@vitio.cz. V případě podezření na neoprávněné použití Vámi poskytnutých údajů máte právo předat podnět k šetření Úřadu pro ochranu osobních údajů. Více informací
Chystáte se prodat nemovitost?
Pomůžeme Vám!

Inzerát si prohlédlo 22 lidí

Prodejce

Mgr. Regina Klingerová

Mgr. Regina Klingerová

Hlídací pes

Chcete dostávat emailem podobné nabídky prodeje rodinných domů v Vranovicích (okr. Brno-venkov)?

Podobné nemovitosti