Pronájem bytu 3+kk, Praha - Holešovice, Na Maninách, 146 m2 (ID: 2469189)

Na Maninách, Praha, Holešovice

70 000 Kč /za měsíc Získejte výhodnou HYPOTÉKU

(Poplatky za služby a energie se hradí zvlášť)

Exkluzivní partneři v Praze 7

Stěhovací služby

Výkup a prodej starého nábytku

Informace k bytu

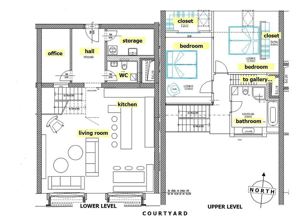
Unikátní prostorný mezonet, 3+kk, 146 m2, situovaný ve 2.patře budovy, v populární lokalitě Praha 7 Holešovice.

Interiér bytu je moderně zařízený s industriálními prvky velká okna, tři úrovně s galerií. Strop v obývacím pokoji je vysoký 8 metrů, v ložnicích je strop vysoký 5 metrů. Byt se nachází v přestavěné pivovarské budově a je plně zařízený. Ve spodním patře se nachází moderně zařízená kuchyň (indukční deska, trouba, lednice, mrazák, mikrovlnka, myčka), v kuchyni je specifickým prvkem bar s designovými sedadly z tramvaje Tatra T3 z 60.let., kuchyňský kout je spojen s prostorným obývacím pokojem, separátní toaleta a prádelna s pračkou a sušičkou. V horním patře je moderně zařízená koupelna (sprchový kout, vana, toaleta) a dvě samostatné ložnice s šatnou. Z obývacího pokoje vedou schody na designovou galerii. Byt je plně klimatizovaný a má přípojky pro vysokorychlostní internet/TV a satelitní TV.

Oblíbená rezidenční lokalita poskytuje komfortní bydlení s veškerou občanskou vybaveností v okolí v pěší dostupnosti. Součástí komplexu je supermarket Albert a DM drogerie, dále restaurace a kavárna. Tato atraktivní čtvrť se rozprostírá mezi levým břehem Vltavy a Letnou. Dnes jednou z nejzajímavějších lokalit v Praze. Holešovice jsou lokalitou s průmyslovou historií. Dnes je mnoho budov po rekonstrukci a nachází druhý život jako byty, kancelářské komplexy, ateliéry mladých umělců, designérů a architektů. Výborné dopravní spojení: na křižovatce Komunardů a u Průhonu, do 3 minut chůze na čtyři tramvajové zastávky U Průhonů, Dělnická, Ortenovo náměstí a Maniny. Jedna zastávka tramvají od vlakového nádraží Holešovice, velmi blízko hlavní severojižní dálnice.

Možnost pronájmu garážového stání za 5.000, Kč/měsíčně a sklepa za poplatek 1.500, Kč/měsíčně. Krátkodobé parkování pro hosty je k dispozici přímo před budovou.
Fixní poplatky za služby činí 5000, /měsíčně a zálohové poplatky za energie spojené s užíváním bytu 7.000, Kč/měsíčně (elektřina, topení, voda). Vratná kauce 2 nájmy. Provize RK.

Parametry bytu

Cena
70 000 Kč /za měsíc
Poznámka k ceně
Poplatky za služby a energie se hradí zvlášť
Aktualizováno
7. 10. 2025
Adresa
Na Maninách, Praha, Holešovice
ID
967354
Stavba
Cihlová
Stav objektu
Velmi dobrý
Patro
2.
Vybaveno
Ano
Vlastnictví
Osobní
Užitná plocha
146 m2
Podlahová plocha
146 m2
Třída energetické náročnosti
G - Mimořádně nehospodárná
Elektřina
230V
Plyn
Plynovod
Doprava
MHD, Autobus
Voda
Vodovod
Garáž
Sklep
Výtah

Kontaktovat makléře

Máte zájem o tento byt?

Tímto, v souladu s nařízením Evropského parlamentu a Rady (EU) 2016/679, v platném znění, prohlašuji, že mi je alespoň 16 let a uděluji tak svůj souhlas se zpracováním zadaných údajů (jméno, telefon, e-mail, ip adresa) společnosti B3 Technology, s.r.o., IČ: 07330600, se sídlem Novostavby 126/23, 435 11 Lom (správce dat), za účelem předání dotazu z tohoto formuláře Vámi vybranému inzerentovi a zpětného kontaktování mé osoby. Osobní údaje bude správce zpracovávat manuálně i automaticky přímo prostřednictvím svých zaměstnanců. Informace předané tímto formulářem budou uloženy v databázi správce maximálně po dobu 10 let. Odvolání souhlasu s uložením a zpracováním poskytnutých dat lze e-mailem na info@vitio.cz. V případě podezření na neoprávněné použití Vámi poskytnutých údajů máte právo předat podnět k šetření Úřadu pro ochranu osobních údajů. Více informací
Chystáte se prodat nemovitost?
Pomůžeme Vám!

Inzerát si prohlédlo 2 lidí

Prodejce

Eva Cinculová

Eva Cinculová

Hlídací pes

Chcete dostávat emailem podobné nabídky pronájmu bytů 3+kk v Praze 7?

Podobné nemovitosti