Prodej rodinného domu, Železnice - Cidlina, 240 m2

Cidlina

8 000 000 Kč /za nemovitost HYPOTÉKA od 35 755 Kč /za měsíc

(! Včetně provize !)

Exkluzivní partneři v Železnici

Informace k domu

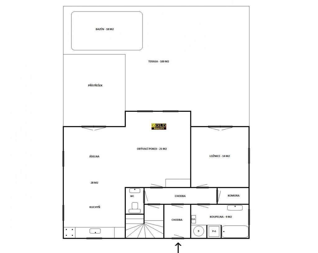
Exkluzivní prodej krásného, světlého, prostorného, rodinného, domu 5+kk s terasou, v obci Cidlina. Novostavba, kolaudace 2019. V přízemí: obývací pokoj, kuchyň s jídelnou, ložnice, koupelna, chodba, komora a wc. V patře jsou tři ložnice a koupelna s wc. Kuchyňská linka s elektrickou varnou deskou, elektrickou troubou, lednicí s mrazničkou, myčkou a pracovní deskou z masivu. Koupelna v přízemí s vířivou vanou. Koupelna v patře se sprchovým koutem. Kvalitní okna na východ, jih a západ, bezpečnostní čtyřskla s konexem. Vstupní dveře také bezpečnostní. Interiérové dveře, z masivu, od truhláře. Na podlahách pvc, dlažby, koberce. Obývací pokoj s kuchyní (49 m2). Vytápění ústřední, elektrickým kotlem + krbová vložka v obývacím pokoji. Ohřev vody boilerem. Terasa (100 m2), s krytým bazénem (18 m2) s ohřevem vody solárním panelem. Zateplená fasáda domu polystyrénem. Garáž + přístřešek na parkování. Vrata u plotu elektrická s dálkovým ovládáním. Dvě stání na přívěsný vozík, pod podlahou terasy, popřípadě úložný prostor. Přístřešek na dřevo, na nářadí a na filtraci bazénu. Septik s biofiltrem. Kopaná studna 13 metrů, s dostatkem vody, nyní obec buduje vodovod. Na zahradě vzrostlé, ovocné stromy a tůje kolem plotu, jež zajištují soukromí na terase i na zahradě. Škola, pošta, potraviny, restaurace v obci Železnice (4 km). Školka v obci Kněžnice (3 km). Autobus do Lomnice nad Popelkou, do Železnice a do Jičína. Možno financovat hypotečním úvěrem !

Parametry domu

Cena
8 000 000 Kč /za nemovitost Spočítat hypotéku
Poznámka k ceně
! Včetně provize !
Aktualizováno
9. 10. 2025
Adresa
Cidlina
ID
714
Stavba
Cihlová
Stav objektu
Novostavba
Typ objektu
Přízemní
Druh objektu
Samostatný
Užitná plocha
240 m2
Zastavěná plocha
120 m2
Podlahová plocha
200 m2
Plocha pozemku
1000 m2
Plocha zahrady
830 m2
Třída energetické náročnosti
C - Úsporná
Elektřina
230V, 400V
Odpad
Septik
Topení
Ústřední elektrické
Komunikace
Asfaltová
Telekomunikace
Telefon, Internet, Kabelová televize
Doprava
Silnice, Autobus
Voda
Studna
Garáž
Terasa
Bezbarierový přístup
Parkování
Bazén
Nízkoenergetický

Kontaktovat makléře

Realitní kancelář

Logo GR REALITY, s.r.o.

GR REALITY, s.r.o.

Železná 51, Mladá Boleslav

Chystáte se prodat nemovitost?
Pomůžeme Vám!

Máte zájem o tento dům?

Tímto, v souladu s nařízením Evropského parlamentu a Rady (EU) 2016/679, v platném znění, prohlašuji, že mi je alespoň 16 let a uděluji tak svůj souhlas se zpracováním zadaných údajů (jméno, telefon, e-mail, ip adresa) společnosti B3 Technology, s.r.o., IČ: 07330600, se sídlem Novostavby 126/23, 435 11 Lom (správce dat), za účelem předání dotazu z tohoto formuláře Vámi vybranému inzerentovi a zpětného kontaktování mé osoby. Osobní údaje bude správce zpracovávat manuálně i automaticky přímo prostřednictvím svých zaměstnanců. Informace předané tímto formulářem budou uloženy v databázi správce maximálně po dobu 10 let. Odvolání souhlasu s uložením a zpracováním poskytnutých dat lze e-mailem na info@vitio.cz. V případě podezření na neoprávněné použití Vámi poskytnutých údajů máte právo předat podnět k šetření Úřadu pro ochranu osobních údajů. Více informací
Chystáte se prodat nemovitost?
Pomůžeme Vám!

Inzerát si prohlédlo 5 lidí

Prodejce

Karel Lukeš

Karel Lukeš

Hlídací pes

Chcete dostávat emailem podobné nabídky prodeje rodinných domů v Železnici?

Podobné nemovitosti