Pronájem bytu 2+1, Brno, Spáčilova, 54 m2

Spáčilova, Brno, Černovice

16 000 Kč /za měsíc Získejte výhodnou HYPOTÉKU

(+ zálohy na energie a služby 5.300,- Kč/měsíčně + vratná kauce ve výši 33.000,- Kč + 19.965,- Kč provize RK)

Exkluzivní partneři v Brně

Informace k bytu

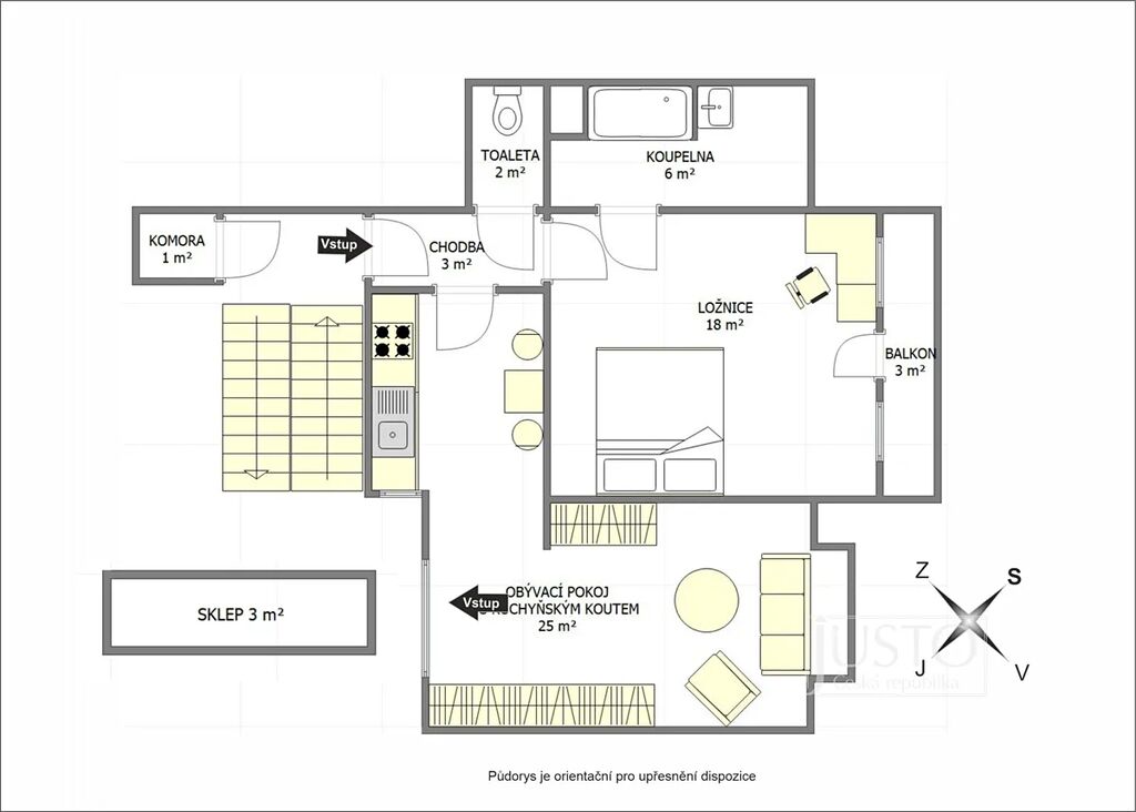
V zastoupení majitele Vám nabízíme k pronájmu byt o dispozicích 2+1 s balkónem a klasickým sklepem.

Byt je částečně zařízen nábytkem a elektrospotřebiči - lednice s mrazničkou, nový plynový sporák s troubou, 2 šatní skříně, jídelní stůl se 3 židlemi a kuchyňskou linkou.

Byt se skládá ze dvou neprůchozích pokojů, průchozí kuchyně, koupelny se sprchovým koutem a samostatnou toaletou. Ložnice disponuje balkónem. Na chodbě u schodiště do bytu je samostatná spíž s úložným policovým systémem. V přízemí domu lze využít samostatný sklep 3 m². Byt se nachází v druhém a zároveň také v posledním patře domu jako jediný, díky čemuž nedochází k rušivému hluku od sousedů.

Po dohodě lze využít možnost parkovacího stání před domem.

Předností umístění bytu v lokalitě je výborná dostupnost do centra města Brna a to jak autem cca 5 min., tak MHD 8 min. Zastávka MHD je přímo před domem.

Dlouhodobý pronájem je vhodný pro jednotlivce či pár.

1. osoba = nájemné 16.000,- Kč + zálohy na energie a služby 5.300,- Kč/měsíčně + vratná kauce ve výši 32.000,- Kč
2. osoby = nájemné 16.500,- Kč + zálohy na energie a služby 5.700,- Kč/měsíčně + vratná kauce ve výši 33.000,- Kč

Prohlídkový den se koná v pondělí 13.10.2025. Rezervujte si včas termín Vaší prohlídky.

Pronajímatel si vyhrazuje právo vybrat nájemce na základě pronajímatelem zvolených kritérií.

Parametry bytu

Cena
16 000 Kč /za měsíc
Poznámka k ceně
+ zálohy na energie a služby 5.300,- Kč/měsíčně + vratná kauce ve výši 33.000,- Kč + 19.965,- Kč provize RK
Aktualizováno
3. 10. 2025
Adresa
Spáčilova, Brno, Černovice
ID
J11242
Stavba
Cihlová
Stav objektu
Dobrý
Patro
3. z 3
Vybaveno
Částečně
Lokalita objektu
Centrum obce
Vlastnictví
Osobní
Užitná plocha
54 m2
Podlahová plocha
61 m2
Třída energetické náročnosti
G - Mimořádně nehospodárná
Odpad
Veřejná kanalizace
Topení
Ústřední plynové
Telekomunikace
Internet, Kabelová televize
Voda
Vodovod
Balkon
Sklep
Parkování

Kontaktovat makléře

Máte zájem o tento byt?

Tímto, v souladu s nařízením Evropského parlamentu a Rady (EU) 2016/679, v platném znění, prohlašuji, že mi je alespoň 16 let a uděluji tak svůj souhlas se zpracováním zadaných údajů (jméno, telefon, e-mail, ip adresa) společnosti B3 Technology, s.r.o., IČ: 07330600, se sídlem Novostavby 126/23, 435 11 Lom (správce dat), za účelem předání dotazu z tohoto formuláře Vámi vybranému inzerentovi a zpětného kontaktování mé osoby. Osobní údaje bude správce zpracovávat manuálně i automaticky přímo prostřednictvím svých zaměstnanců. Informace předané tímto formulářem budou uloženy v databázi správce maximálně po dobu 10 let. Odvolání souhlasu s uložením a zpracováním poskytnutých dat lze e-mailem na info@vitio.cz. V případě podezření na neoprávněné použití Vámi poskytnutých údajů máte právo předat podnět k šetření Úřadu pro ochranu osobních údajů. Více informací
Chystáte se prodat nemovitost?
Pomůžeme Vám!

Inzerát si prohlédlo 1 lidí

Prodejce

Filip Mlčoch

Filip Mlčoch

Hlídací pes

Chcete dostávat emailem podobné nabídky pronájmu bytů 2+1 v Brně?

Podobné nemovitosti