Pronájem skladu, Klínec, 94 m2 (ID: 2464592)

Klínec

29 000 Kč /za měsíc Získejte výhodnou HYPOTÉKU

(+ zálohy za služby a energie, + vratná kauce, + rezervační poplatek)

Exkluzivní partneři v Klínci

Informace k nemovitosti

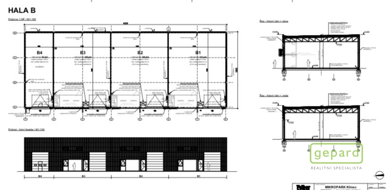
POSLEDNÍ VOLNÁ MALÁ NEBYTOVÁ JEDNOTKA - B4 !!!

Ve vzdálenosti necelých 20 minut jízdy od Prahy, v obci Klínec (okres Praha-západ), se nachází nově dokončený a plně zprovozněný multifunkční areál Mikropark, který nabízí moderní haly určené pro nerušící výrobu a skladování.

V rámci areálu je aktuálně k dispozici poslední volná malá nebytová jednotka na pronájem s označením B4 včetně možnosti pronájmu parkovacích stání.

Základní specifika nebytové jednotky o velikosti 94 m2:
• Vnitřní půdorysné rozměry (k vnitřnímu líci opláštění): 15.8 x 5.9 m (+/- 0.25 m)
• Vnitřní světlost (mimo vazník): 6.2 m (+/- 0.10 m)
• 1x sekční průmyslová vrata: 3.500 x 4.000 mm (šířka x výška)
• Součástí vrat vstupní dveře (900 x 1.980 mm), kování klika-klika
• Součástí vrat 3x “lodní“ okénko
• Bez výkladce a bez oken
• Obvodový plášť: polyuretanový panel tl. 100 mm
• Dělící příčka: minerální panel tl. 100 mm
• Střešní plášť: minerální vata a expandovaný polystyren, celková tl. 220 mm
• Strojně hlazená betonová průmyslová podlaha o nosnosti 4.000 kg/m2
• Požární odolnost nosných konstrukcí a opláštění: 30 minut
• 1x požární hydrant
• 1x přípojné místo pro vodu (kohout 3/4") s výlevkou
• 1x přípojné místo pro kanalizaci (DN110)
• 1x zásuvková skříň: 5x 230V, 1x 400V 16A a 1x 400V 32A
• 1x prostup střešním pláštěm DN75 (pro slaboproud, alt. klima jednotku)
• Připravenost pro vložení až čtyřech kancelářských kontejnerů
• Povrch - parkovací stání: vsakovací zámková dlažba
• Povrch - ostatní komunikace: kartáčovaný beton
• Zastávka PID na přilehlé D4

Nájemné 29.000 Kč + DPH/měsíc + zálohy za služby a energie.
Vratná kauce ve výši nájemného za 3 měsíce. Rezervační poplatek ve výši nájemného za 1 měsíc.
Vyhrazené parkovací stání: 1.500 Kč + DPH / měsíc.

Pro více informací kontaktujte realitní makléřku.

Parametry nemovitosti

Cena
29 000 Kč /za měsíc
Poznámka k ceně
+ zálohy za služby a energie, + vratná kauce, + rezervační poplatek
Aktualizováno
1. 10. 2025
Adresa
Klínec
ID
11632
Stavba
Smíšená
Stav objektu
Novostavba
Typ objektu
Přízemní
Lokalita objektu
Okraj obce
Užitná plocha
94 m2
Třída energetické náročnosti
B - Velmi úsporná
Elektřina
230V
Odpad
Veřejná kanalizace
Komunikace
Asfaltová
Telekomunikace
Internet
Doprava
Dálnice
Voda
Vodovod
Převod do OV

Kontaktovat makléře

Máte zájem o tuto nemovistost?

Tímto, v souladu s nařízením Evropského parlamentu a Rady (EU) 2016/679, v platném znění, prohlašuji, že mi je alespoň 16 let a uděluji tak svůj souhlas se zpracováním zadaných údajů (jméno, telefon, e-mail, ip adresa) společnosti B3 Technology, s.r.o., IČ: 07330600, se sídlem Novostavby 126/23, 435 11 Lom (správce dat), za účelem předání dotazu z tohoto formuláře Vámi vybranému inzerentovi a zpětného kontaktování mé osoby. Osobní údaje bude správce zpracovávat manuálně i automaticky přímo prostřednictvím svých zaměstnanců. Informace předané tímto formulářem budou uloženy v databázi správce maximálně po dobu 10 let. Odvolání souhlasu s uložením a zpracováním poskytnutých dat lze e-mailem na info@vitio.cz. V případě podezření na neoprávněné použití Vámi poskytnutých údajů máte právo předat podnět k šetření Úřadu pro ochranu osobních údajů. Více informací
Chystáte se prodat nemovitost?
Pomůžeme Vám!

Inzerát si prohlédlo 5 lidí

Prodejce

BEM. Ivana Gašpar (Žďánská)

BEM. Ivana Gašpar (Žďánská)

Hlídací pes

Chcete dostávat emailem podobné nabídky pronájmu skladů v Klínci?

Podobné nemovitosti