Prodej rodinného domu, Plzeň - Východní Předměstí, Slovanská, 870 m2 (ID: 2463199)

Slovanská, Plzeň, Východní Předměstí

27 970 000 Kč HYPOTÉKA od 125 009 Kč /za měsíc

(za nemovitost)

Exkluzivní partneři v Plzni

Podlahy

Stěhovací služby

Informace k domu

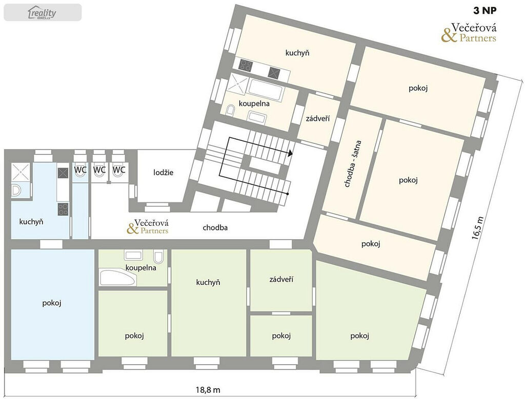
Prodej vícegeneračního domu 870 m², pozemek 375 m²

Mimořádná nabídka prodeje rohového činžovního domu v centru Plzně.

Jedná se o dvoupatrový cihlový dům s vlastním dvorem a velkou půdou k realizaci půdní vestavby dalšího patra bytů nebo lze celý dům zvednout a přistavět další patra. Dům svým umístěním a možnostmi představuje skvělou investiční příležitost.

V přízemí domu jsou 3 nebytové prostory, dva z obchodů jsou pronajaté spolehlivými nájemci.
Ve dvou patrech je celkem 7 bytů, 3x 1+1, 2x 2+1, 3+1 a 4+1. Část bytů je již po rekonstrukci, ostatní je nutné rekonstruovat. Rekonstruované byty mají vlastní plynový kotel, ostatní mají plynové topení WAW.

Celý dům je podsklepen.
Dům má plastová okna, na střeše jsou střešní tašky Bramac, opravenou fasádu a stoupačky v plastu.

Umístění domu je hned u tramvajové zastávky. Skvělá lokalita nabízí veškeré služby v pěší dostupnosti – obchody, restaurace, školy i MHD. V bezprostředním okolí se nachází několik parků a lze relaxovat i při procházkách u nedaleké řeky.
Uvedené celkové výměry jsou orientační. Prohlídky jsou možné po předchozí domluvě. Pro více informací o této nemovitosti nebo sjednání prohlídky nás prosím kontaktujte nebo vyplňte níže uvedený formulář, rádi Vám pomůžeme.

Energetický štítek je v přípravě, proto je tato nemovitost v souladu s platným zákonem dočasně do jeho předložení zařazena do energetické třídy G.

Parametry domu

Cena
27 970 000 Kč Spočítat hypotéku
Poznámka k ceně
za nemovitost
Aktualizováno
30. 9. 2025
Adresa
Slovanská, Plzeň, Východní Předměstí
ID
1122931532
Stavba
Cihlová
Stav objektu
Dobrý
Druh objektu
Rohový
Užitná plocha
870 m2
Plocha pozemku
375 m2
Třída energetické náročnosti
G - Mimořádně nehospodárná

Kontaktovat makléře

Máte zájem o tento dům?

Tímto, v souladu s nařízením Evropského parlamentu a Rady (EU) 2016/679, v platném znění, prohlašuji, že mi je alespoň 16 let a uděluji tak svůj souhlas se zpracováním zadaných údajů (jméno, telefon, e-mail, ip adresa) společnosti B3 Technology, s.r.o., IČ: 07330600, se sídlem Novostavby 126/23, 435 11 Lom (správce dat), za účelem předání dotazu z tohoto formuláře Vámi vybranému inzerentovi a zpětného kontaktování mé osoby. Osobní údaje bude správce zpracovávat manuálně i automaticky přímo prostřednictvím svých zaměstnanců. Informace předané tímto formulářem budou uloženy v databázi správce maximálně po dobu 10 let. Odvolání souhlasu s uložením a zpracováním poskytnutých dat lze e-mailem na info@vitio.cz. V případě podezření na neoprávněné použití Vámi poskytnutých údajů máte právo předat podnět k šetření Úřadu pro ochranu osobních údajů. Více informací
Chystáte se prodat nemovitost?
Pomůžeme Vám!

Inzerát si prohlédlo 1 lidí

Prodejce

Kateřina Večeřová

Kateřina Večeřová

Hlídací pes

Chcete dostávat emailem podobné nabídky prodeje rodinných domů v Plzni?

Podobné nemovitosti