Pronájem bytu 2+kk, Chýně, 54 m2

Chýně

22 000 Kč /za měsíc Získejte výhodnou HYPOTÉKU
Exkluzivní partneři v Chýni

Informace k bytu

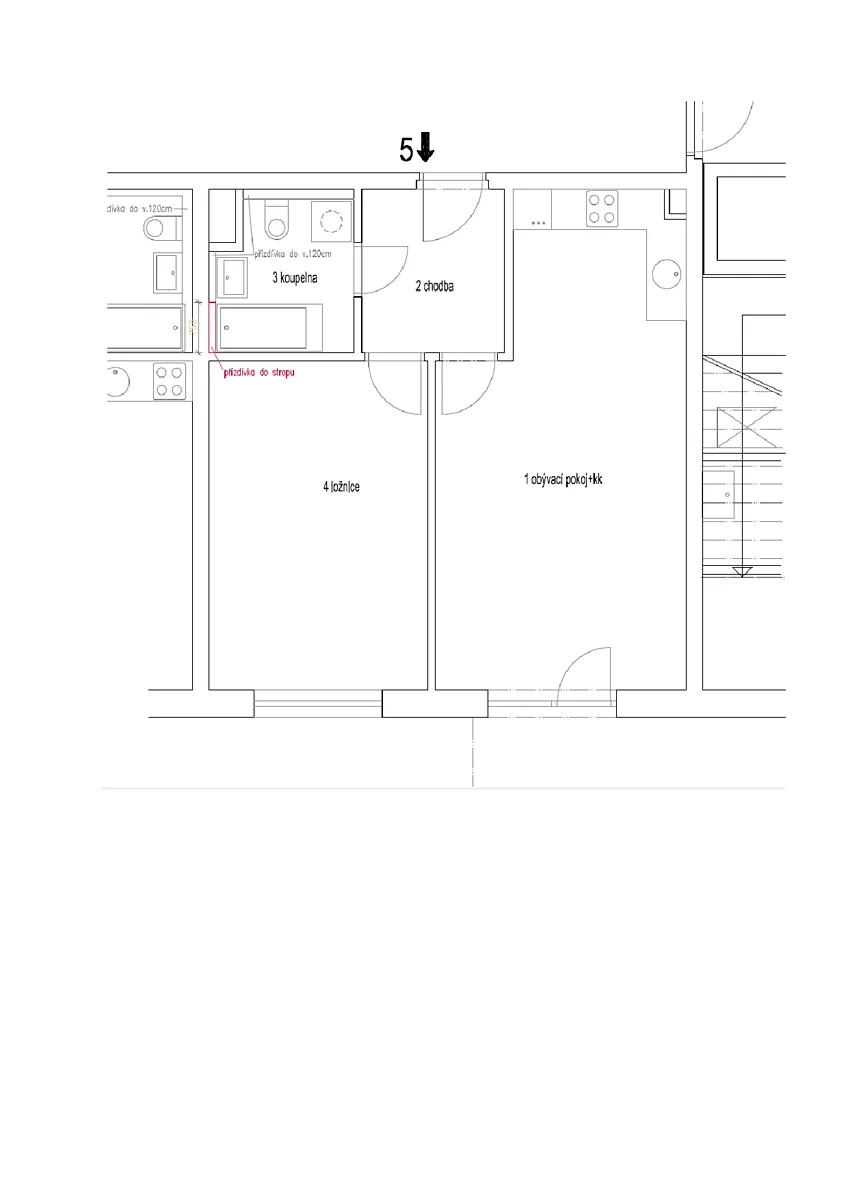
Nabízím k pronájmu bytovou jednotku o dispozici 2+kk, 54m2, vymezenou v novostavbě bytového domů v obci Chýně, Energetická třída C – úsporná.

Vlastní oplocená předzahrádka 28m2 s vstupem z pakovacích stání a s přímým vstupem z obývacího pokoje. Vybavená terasou 15m2, zahradním nábytkem, slunečníkem 2x2m, sedačkou/bednou na nářadí. Dvě vymezená parkovací stání přímo u předzahrádky. Zahrádka je osázena a udržována.

Dispozice pak nabídne obývací pokoj s přímým vstupem na terasu, vybavený koženou rozkládací rohovou sedací soupravou s úložným prostorem, stolem se židlí, obývací stěnou a LED TV. Obývací pokoj, jenž je plynule propojený s prostorem kuchyně. Ta je osazena kuchyňskou linkou (viz foto) se spotřebiči (lednice s mrazákem, myčka, digestoř, elektrická trouba, varná deska, koš na odpad, dřez + baterie). Chodba s vestavnou skříní. Ložnice je vybavena velkou šatní skříní, dvoulůžkem s matrací a stolečky. Koupelna s vanou (2 x koupelnová skříňka + zrcadlo, boiler 125l, pračka se sušičkou). K Bytové jednotce naleží sklepní koje 2m2 v přízemí domu.

Jednotka má vlastní vytápění elektrickými radiátory, termostat ovládající topení, zvonek se sluchátkem. Koupelnová sanita je od společnosti Villeroy Boch a Concept, osazena všechna svítidla, garnyže a záclony, žaluzie, zátěžové laminátové podlahy, obklady a dlažby 30x60.

Odhadové náklady na provoz bytu pro 2 osoby: elektro vč. topení - 2750 Kč/měs, služby (voda, kanalizace, odpady, úklid společných prostor, společná elektřina) - 2250 Kč/měs, internet optický 300 Kč. Celkové náklady cca: 5000 Kč/měs.

Měsíční nájemné činí 22.000,- Kč,+ pevné a zálohové platby spojené s užíváním bytu.

Jistota (kauce) u bytů ve výši měsíčního nájmu. Platba nájemného a záloh předem. Byt je od majitele, neplatíte provize.

Výborná dostupnost do Prahy, Kladna, Berouna, Plzně, s veškerou občanskou vybavenost v místě. Autobusem metro Zličín 14 min. Vlak.

Parametry bytu

Cena
22 000 Kč /za měsíc
Aktualizováno
30. 9. 2025
Adresa
Chýně
Stavba
Cihlová
Stav objektu
Novostavba
Patro
1.
Vybaveno
Ano
Vlastnictví
Osobní
Užitná plocha
54 m2
Plocha zahrady
27 m2
Třída energetické náročnosti
C - Úsporná
Elektřina
230V
Odpad
Veřejná kanalizace
Komunikace
Dlážděná, Asfaltová
Telekomunikace
Internet, Kabelová televize, Kabelové rozvody
Doprava
Vlak, Silnice, MHD, Autobus
Voda
Vodovod
Topné těleso
Radiátory
Zdroj topení
Přímotop
Zdroj teplé vody
Bojler - elektro
Sklep
Terasa
Parkování

Kontaktovat makléře

Realitní kancelář

FESTCRAFT MONT

Tovární 613, Králův Dvůr

Chystáte se prodat nemovitost?
Pomůžeme Vám!

Máte zájem o tento byt?

Tímto, v souladu s nařízením Evropského parlamentu a Rady (EU) 2016/679, v platném znění, prohlašuji, že mi je alespoň 16 let a uděluji tak svůj souhlas se zpracováním zadaných údajů (jméno, telefon, e-mail, ip adresa) společnosti B3 Technology, s.r.o., IČ: 07330600, se sídlem Novostavby 126/23, 435 11 Lom (správce dat), za účelem předání dotazu z tohoto formuláře Vámi vybranému inzerentovi a zpětného kontaktování mé osoby. Osobní údaje bude správce zpracovávat manuálně i automaticky přímo prostřednictvím svých zaměstnanců. Informace předané tímto formulářem budou uloženy v databázi správce maximálně po dobu 10 let. Odvolání souhlasu s uložením a zpracováním poskytnutých dat lze e-mailem na info@vitio.cz. V případě podezření na neoprávněné použití Vámi poskytnutých údajů máte právo předat podnět k šetření Úřadu pro ochranu osobních údajů. Více informací
Chystáte se prodat nemovitost?
Pomůžeme Vám!

Inzerát si prohlédlo 2 lidí

Prodejce

Festcraft

Festcraft

Hlídací pes

Chcete dostávat emailem podobné nabídky pronájmu bytů 2+kk v Chýni?

Podobné nemovitosti