Pronájem bytu 4+kk, Praha - Nové Město, Senovážné náměstí, 135 m2 (ID: 2460149)

Senovážné náměstí, Praha, Nové Město

70 000 Kč /za měsíc Získejte výhodnou HYPOTÉKU

(+ poplatky/měsíc: 13000 Kč )

Exkluzivní partneři v Praze 1

Stěhovací služby

Výkup a prodej starého nábytku

Informace k bytu

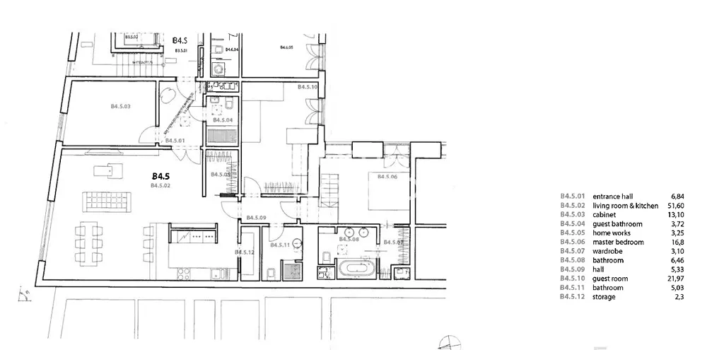
Nabízíme k pronájmu elegantní nezařízený byt 4+kk o velikosti 135 m2, který se nachází ve 3. patře s výtahem v překrásném rezidenčním objektu Belwicz Palace na Senovážném náměstí. Nemovitost se nachází ve vyhledávané lokalitě Prahy 1 - Nové město disponující veškerou občanskou vybaveností a dobrou dopravní infrastrukturou.


Světlý interiér bytu nabízí vstupní chodbu se šatnou, prostorný obývací pokoj o rozloze 52 m2 s jídelní částí a vybavenou kuchyní. K dispozici je hlavní ložnice o velikosti 17 m2 se šatnou a vlastní koupelnou, další ložnice, samostatná koupelna a pokoj pro hosty o rozloze 23 m2 s komorou a vlastní koupelnou. Součástí nájmu jsou sklep a jedno garážové stání. Rezidence kombinuje historickou a moderní část budovy, oddělené atriem, a nabízí 24hodinovou recepci.



Interiér bytu je vybaven kuchyňskými spotřebiči včetně sklokeramické desky, trouby, lednice, mrazáku, myčky nádobí, mikrovlnné trouby a vinotéky. Byt disponuje vestavěnými skříněmi, výtahem a celkem třemi koupelnami - jedna s vanou, dvojumyvadlem a toaletou, další dvě se sprchovým koutem a toaletou.



Bydlení v samém srdci Prahy, nedaleko Václavského náměstí nabízí velké množství obchodů, restaurací a možnost kulturního vyžití v bezprostřední blízkosti. V pěší dostupnosti leží OC Palladium, Havelské tržiště, nemocnice, lékárny, supermarkety, obchody, restaurace, kavárny, dětská hřiště. Lokalita nabízí hustou síť linek MHD (autobusy, tramvaje, vlakové nádraží, 3 stanice metra). V místě jsou mateřské, základní, střední, vysoké školy a nedaleko i Park Lane International School. Pro volnočasové aktivity můžete využít fitness, bike park, tenisové kurty, divadla nebo se vydat do Letenských sadů, Parku Lannova, Desfourské zahrady či vyrazit na Náplavku. Autem dojedete na dálnici za 8 minut a na letiště Václava Havla za 24 minut.



Výše vyúčtovatelných měsíčních záloh činí 13 000 Kč + internet.


Poptávající klient je srozuměn s úhradou provize ve výši 1 měsíčního nájmu plus DPH.


Nabízíme Vám bezpečnou videoprohlídku této nemovitosti z pohodlí Vašeho domova v reálném čase přes Messenger, WhatsApp a další komunikační platformy. Zavolejte nám a sjednejte si bezpečnou videoprohlídku ještě dnes.

Parametry bytu

Cena
70 000 Kč /za měsíc
Poznámka k ceně
+ poplatky/měsíc: 13000 Kč
Aktualizováno
21. 11. 2025
Adresa
Senovážné náměstí, Praha, Nové Město
ID
531792
Stavba
Cihlová
Stav objektu
Velmi dobrý
Patro
4. z 6
Vybaveno
Ne
Vlastnictví
Osobní
Užitná plocha
135 m2
Třída energetické náročnosti
G - Mimořádně nehospodárná
Garáž
Sklep
Výtah
Parkování

Kontaktovat makléře

Máte zájem o tento byt?

Tímto, v souladu s nařízením Evropského parlamentu a Rady (EU) 2016/679, v platném znění, prohlašuji, že mi je alespoň 16 let a uděluji tak svůj souhlas se zpracováním zadaných údajů (jméno, telefon, e-mail, ip adresa) společnosti B3 Technology, s.r.o., IČ: 07330600, se sídlem Novostavby 126/23, 435 11 Lom (správce dat), za účelem předání dotazu z tohoto formuláře Vámi vybranému inzerentovi a zpětného kontaktování mé osoby. Osobní údaje bude správce zpracovávat manuálně i automaticky přímo prostřednictvím svých zaměstnanců. Informace předané tímto formulářem budou uloženy v databázi správce maximálně po dobu 10 let. Odvolání souhlasu s uložením a zpracováním poskytnutých dat lze e-mailem na info@vitio.cz. V případě podezření na neoprávněné použití Vámi poskytnutých údajů máte právo předat podnět k šetření Úřadu pro ochranu osobních údajů. Více informací
Chystáte se prodat nemovitost?
Pomůžeme Vám!

Inzerát si prohlédlo 5 lidí

Prodejce

Adéla Bukovská - recepce

Adéla Bukovská - recepce

Hlídací pes

Chcete dostávat emailem podobné nabídky pronájmu bytů 4+kk v Praze 1?

Podobné nemovitosti