Prodej chaty, Břestek, 82 m2 (ID: 2459821)

Břestek

5 590 000 Kč /za nemovitost HYPOTÉKA od 24 984 Kč /za měsíc

(Provizi RK hradí prodávající.)

Exkluzivní partneři v Břestku

Informace k domu

Ve výhradním zastoupení majitele Vám nabízím k prodeji patrovou, zděnou chatu po rekonstrukci, ideální pro celoroční bydlení nebo rekreaci, v malebné obci Břestek nedaleko Buchlovic.
✅ Hlavní přednosti chaty:
- zděná chata pálená cihla Porotherm 40 cm
- zateplení 5 cm fasádní polystyrén (2 strany - SZ a SV)
- 3 podlaží + podkroví určené ke spaní
- 2 koupelny, 2x WC, z toho jedno samostatné
- v roce 2012 vytvoření druhé koupelny se sprchovým koutem v 2.NP
- v roce 2013 nová dřevěná podlaha z masívu v 2. NP
- v roce 2013 nová kuchyně s vestavěnými elektrospotřebiči (myčka, lednice, mrazák, trouba, varná deska, mikrovlnka)
- krb jako hlavní zdroj tepla + el. přímotopy v místnostech, i ve sklepě
- vlastní vrtaná studna (33 m) + nádrž na užitkovou vodu pro chatu (7 m)
- zahrada s pergolou, jezírkem a skladem na dřevo a na nářadí
- elektroinstalace v mědi
- rozvody vody v plastu
- v roce 2017 pořízený elektrický bojler Dražice 50 l na ohřev teplé vody
- v roce 2023 nové dřevěné prvky zábradlí terasy a obou balkónů
- Kompletně vybavená chata – nábytek a zařízení v ceně nemovitosti
- internet je možný Skylink nebo Starnet.

✅ Dispozice:
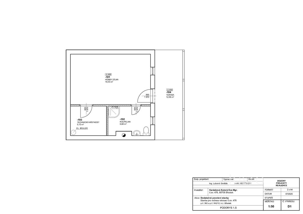
Suterén: dílna, prádelna, sklad, koupelna se sprchovým koutem a s WC, terasa 12 m²
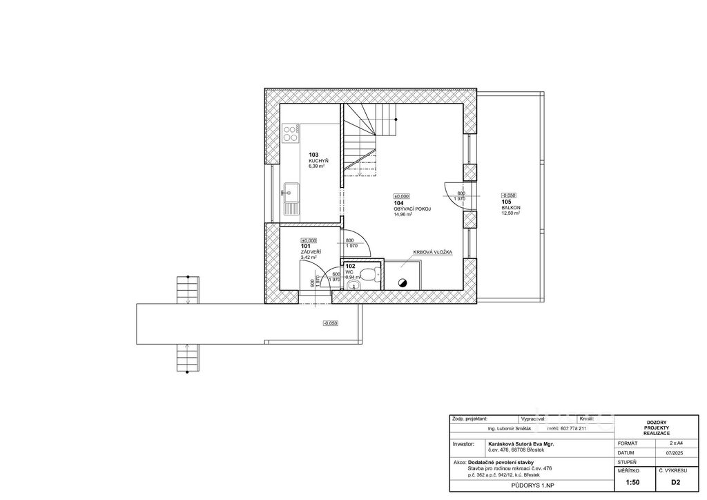
Přízemí: obývací pokoj s balkonem (12,5 m²), kuchyně, samostatné WC
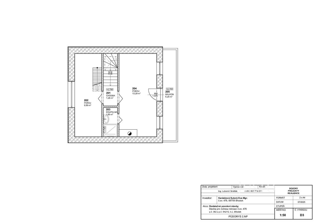
Patro: 2 ložnice, koupelna se sprchovým koutem, balkon 6,25 m²
Podkroví: prostor pro spaní/skladování (14,7 m²)
Celková užitná plocha: 82,4 m² + podkroví
Zastavěná plocha: 40,32 m².

✅Provádí se:
- na stavebním úřadu legalizujeme zvětšení zastavěné plochy chaty z 25 m² na 40,32 m²
- zadali jsme odborné firmě atestaci pitné vody z vrtané studny, pro pitnou se zatím chodí do studánky pod Břesteckou skálou
- technická zprávu Prověření nemovitosti stavením technikem
- průkaz energetické náročnosti budovy PENB.

✅ Lokalita:
Břestek je ideální pro milovníky přírody, turistiky a cykloturistiky.
V okolí najdete:
- Hrad Buchlov, Velehrad, Archeoskanzen Modrá
- Rozhledna Brdo, Břestecké skály
- Restaurace 600 m, potraviny 2 km, Buchlovice 5 km.

Zaujala vás tato nabídka? Vyplňte formulář níže a do 15 minut obdržíte e-mail s pokyny k prohlídce a veškerými dokumenty k chatě. Pokud e-mail nenajdete, zkontrolujte složku spam.
Pomůžeme vám i s financováním.
Majitel si vyhrazuje práco prodat svou nemovitost nejvýhodnější nabídce.

Neváhejte a domluvte si prohlídku ještě dnes!

Parametry domu

Cena
5 590 000 Kč /za nemovitost Spočítat hypotéku
Poznámka k ceně
Provizi RK hradí prodávající.
Aktualizováno
27. 9. 2025
Adresa
Břestek
ID
J11001
Stavba
Cihlová
Stav objektu
Dobrý
Vybaveno
Ano
Typ objektu
Patrový
Druh objektu
Samostatný
Lokalita objektu
Klidná část obce
Vlastnictví
Osobní
Užitná plocha
82 m2
Zastavěná plocha
40 m2
Podlahová plocha
97 m2
Plocha pozemku
6637 m2
Plocha zahrady
537 m2
Třída energetické náročnosti
G - Mimořádně nehospodárná
Elektřina
230V, 400V
Odpad
Septik
Topení
Lokální tuhá paliva, Lokální elektrické
Komunikace
Neupravená
Doprava
Silnice
Voda
Studna
Zdroj teplé vody
Elektrokotel
Balkon
Sklep
Terasa
Výtah

Kontaktovat makléře

Realitní kancelář

Logo JUSTO Česká republika

JUSTO Česká republika

Korunní 2569/108, Vinohrady, Praha

Chystáte se prodat nemovitost?
Pomůžeme Vám!

Máte zájem o tento dům?

Tímto, v souladu s nařízením Evropského parlamentu a Rady (EU) 2016/679, v platném znění, prohlašuji, že mi je alespoň 16 let a uděluji tak svůj souhlas se zpracováním zadaných údajů (jméno, telefon, e-mail, ip adresa) společnosti B3 Technology, s.r.o., IČ: 07330600, se sídlem Novostavby 126/23, 435 11 Lom (správce dat), za účelem předání dotazu z tohoto formuláře Vámi vybranému inzerentovi a zpětného kontaktování mé osoby. Osobní údaje bude správce zpracovávat manuálně i automaticky přímo prostřednictvím svých zaměstnanců. Informace předané tímto formulářem budou uloženy v databázi správce maximálně po dobu 10 let. Odvolání souhlasu s uložením a zpracováním poskytnutých dat lze e-mailem na info@vitio.cz. V případě podezření na neoprávněné použití Vámi poskytnutých údajů máte právo předat podnět k šetření Úřadu pro ochranu osobních údajů. Více informací
Chystáte se prodat nemovitost?
Pomůžeme Vám!

Inzerát si prohlédlo 3 lidí

Prodejce

Ing. Petr Fojtík

Ing. Petr Fojtík

Hlídací pes

Chcete dostávat emailem podobné nabídky prodeje chat v Břestku?

Podobné nemovitosti