Prodej rodinného domu, Líšťany - Hunčice, 136 m2

Líšťany, Hunčice

3 399 000 Kč /za nemovitost HYPOTÉKA od 15 191 Kč /za měsíc
Exkluzivní partneři v Líšťanech

Podlahy

Stěhovací služby

Informace k domu

K prodeji nabízíme samostatně stojící rodinný dům v obci Hunčice, které se nachází jen 11 minut jízdy autem od Plzně.

Nemovitost je vhodná pro menší rodinu, která ocení možnost využít stodolu a dílny, které se nacházejí na pozemku a zejména pak zahradu, kde se dá vybudovat altánek, krb, trampolína, bazén...

Nemovitost je zcela jistě před částečnou rekonstukcí, před několika lety byla dělána nová střešní krytina a měněny okna za plastová.

- parkování: na pozemku
- voda: ze studny
- odpad: jímka
- teplá voda: Bojler Dražice OKC 125 z roku 2023
- topení: kotel Atmos C15S z roku 2022
- okna: plastová s dvojskly
- sítě: přípojení T-Mobile
- střecha: nová krytina; pálená taška
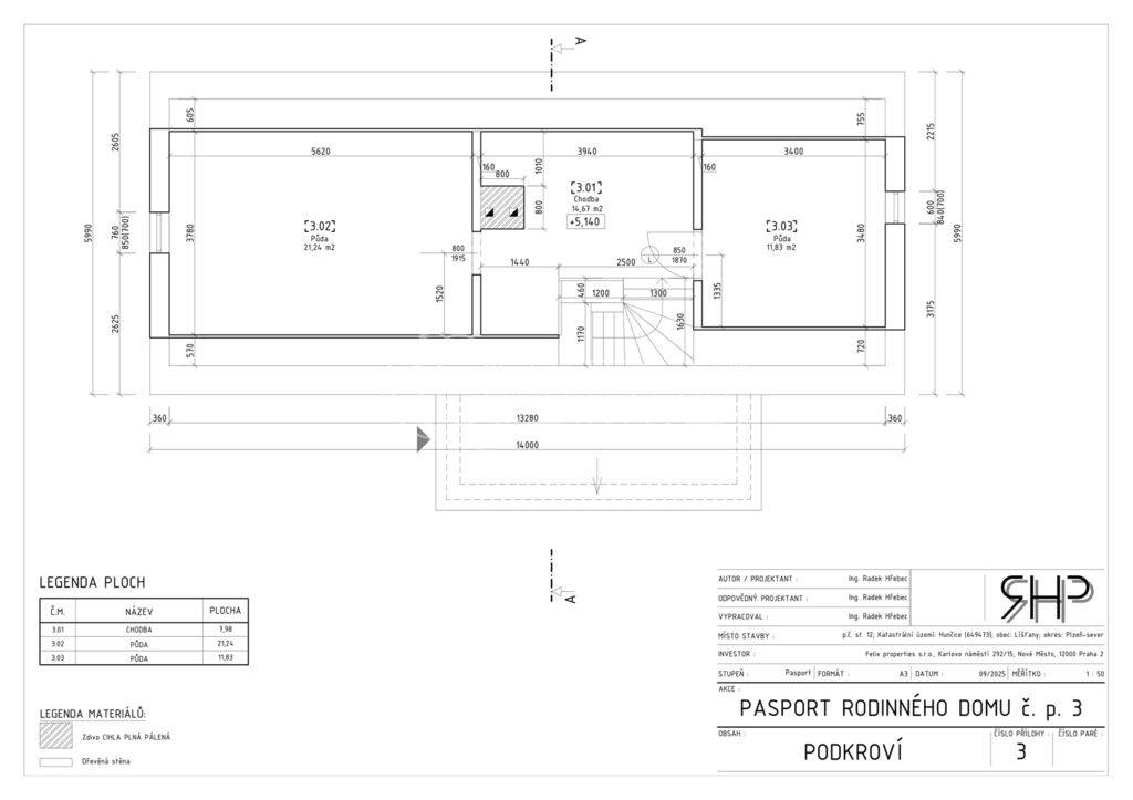
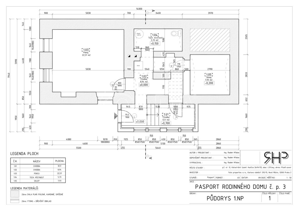
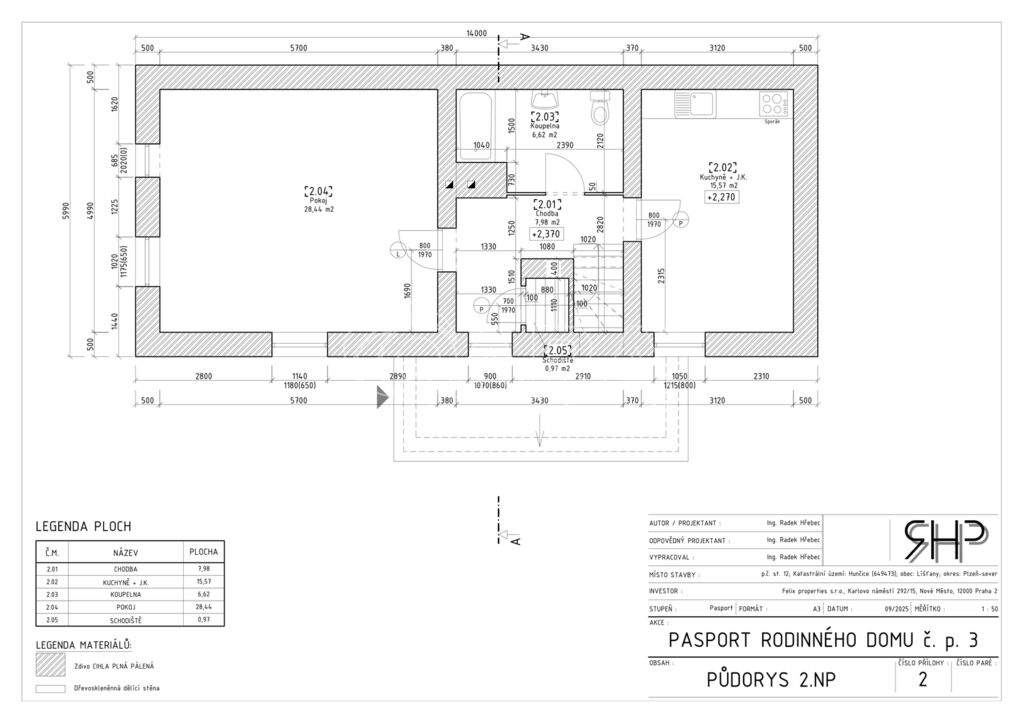
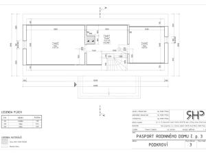
- dispozice: 4+1 (1 pokoj v přízemí, 1 ve 2.NP, 2 v podkroví); všude jsou nížší stropy

Orientační velikost místností o ostatních prostor:
1.NP - přízemí:
Vstupní předsíň: 8,45 m2
Pokoj: 21,98 m2
Chodba: 8,63 m2
Místnost s bojlerem: 5,4 m2
Sklep: 8,29 m2

2NP - 1.patro:
Obývací pokoj: 28,35 m2
Kuchyně: 15,5 m2
Koupelna: 6,65 m2
Chodba: 6,21 m2
Schody 1.NP-2.NP: 2,02 m2
Schody 2.NP-3.NP: 2,46 m2

3.NP - 2.patro:
Ložnice: 17,04 m2
Pokoj: 10,2 m2
Chodba:8,59 m2
--------------------------------
Celkem: 136,08 m2
+ sklep 8,29 m2
+ místnost s bojlerem: 5,4 m2

+ Stodola: 37,17 m2
+ Dílna1: 25,06 m2
+ Dílna2: 34,6 m2
+ Sklad: 7,21 m2
+ Stodola půda: 64,75 m2

Nemovitost je možné financovat hypotečním úvěrem. Na nemovitosti není žádná zástava.

Pro více informací mi neváhejte napsat nebo zavolat.

Parametry domu

Cena
3 399 000 Kč /za nemovitost Spočítat hypotéku
Aktualizováno
5. 11. 2025
Adresa
Líšťany, Hunčice
ID
17405
Stavba
Smíšená
Stav objektu
Dobrý
Vybaveno
Ne
Typ objektu
Patrový
Druh objektu
Samostatný
Lokalita objektu
Centrum obce
Užitná plocha
136 m2
Zastavěná plocha
99 m2
Plocha pozemku
695 m2
Třída energetické náročnosti
G - Mimořádně nehospodárná
Elektřina
230V, 400V
Odpad
Septik, Jímka
Telekomunikace
Internet, Kabelová televize
Voda
Studna
Sklep
Převod do OV

Kontaktovat makléře

Realitní kancelář

Logo QARA, s.r.o.

QARA, s.r.o.

Šafaříkova 201/17, Praha

Chystáte se prodat nemovitost?
Pomůžeme Vám!

Máte zájem o tento dům?

Tímto, v souladu s nařízením Evropského parlamentu a Rady (EU) 2016/679, v platném znění, prohlašuji, že mi je alespoň 16 let a uděluji tak svůj souhlas se zpracováním zadaných údajů (jméno, telefon, e-mail, ip adresa) společnosti B3 Technology, s.r.o., IČ: 07330600, se sídlem Novostavby 126/23, 435 11 Lom (správce dat), za účelem předání dotazu z tohoto formuláře Vámi vybranému inzerentovi a zpětného kontaktování mé osoby. Osobní údaje bude správce zpracovávat manuálně i automaticky přímo prostřednictvím svých zaměstnanců. Informace předané tímto formulářem budou uloženy v databázi správce maximálně po dobu 10 let. Odvolání souhlasu s uložením a zpracováním poskytnutých dat lze e-mailem na info@vitio.cz. V případě podezření na neoprávněné použití Vámi poskytnutých údajů máte právo předat podnět k šetření Úřadu pro ochranu osobních údajů. Více informací
Chystáte se prodat nemovitost?
Pomůžeme Vám!

Inzerát si prohlédlo 7 lidí

Prodejce

Ivo Čech

Ivo Čech

Hlídací pes

Chcete dostávat emailem podobné nabídky prodeje rodinných domů v Líšťanech (okr. Plzeň-sever)?

Podobné nemovitosti