Prodej rodinného domu, Praha - Písnice, Lipovická, 292 m2

Lipovická, Praha, Písnice

29 990 000 Kč /za nemovitost HYPOTÉKA od 134 037 Kč /za měsíc

(Cena vcetne provizi)

Exkluzivní partneři v Praze 4

Stěhovací služby

Výkup a prodej starého nábytku

Informace k domu

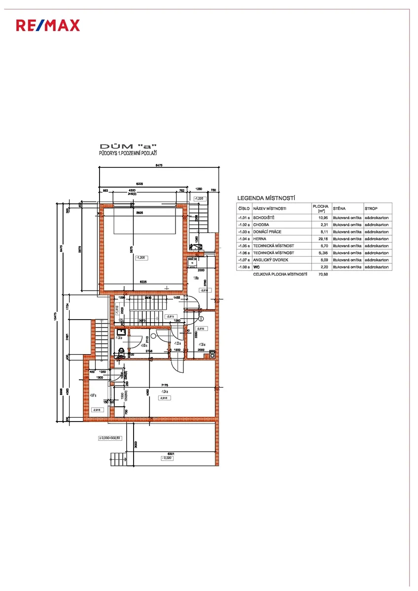
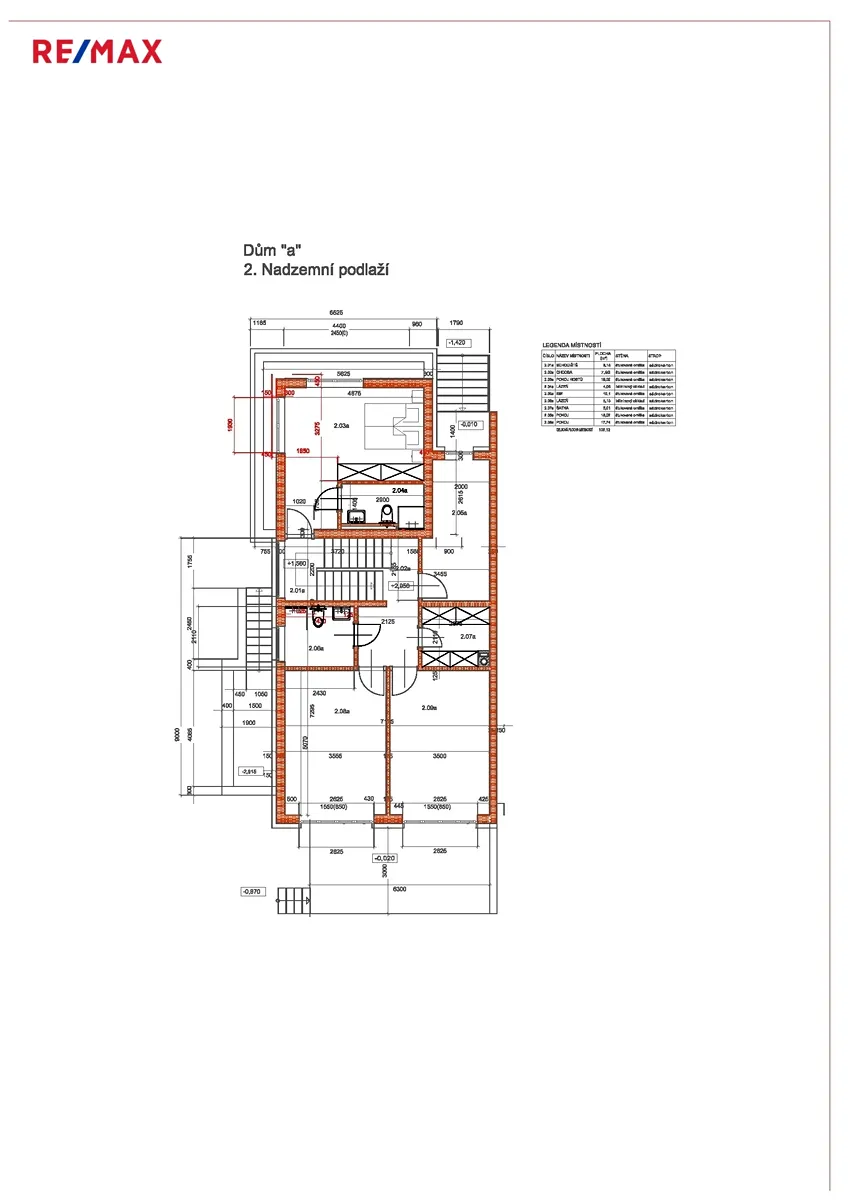
Ve výhradním zastoupení nabízím k prodeji prostorný rodinný dům o dispozici 6+kk s celkovou plochou domu 292 m² a pozemkem o rozloze 292 m² (dům A). Parcelní číslo: 654/3, Katastrální území: Písnice [720984], Číslo LV: 451
V projektu Domy Lipovická vznikají dva moderní nízkoenergetické rodinné domy se zahradou a dvojgaráží, které nabízejí komfortní bydlení s důrazem na kvalitu a úspornost. Díky použití špičkových materiálů a technologií, jako jsou tepelné čerpadlo, podlahové vytápění, dřevěné podlahy, okna s izolačním trojsklem a HS portálem či designové obklady, je zajištěno efektivní využití energie a minimální náklady na údržbu.
Domy se nacházejí v klidné rezidenční části Prahy 4 – Písnici, v prostředí původní zástavby rodinných domů. Lokalita nabízí ideální kombinaci výborné dopravní dostupnosti a blízkosti přírody. Budoucí stanice metra D Písnice je vzdálena pouhých 400 metrů, stejně jako areál SAPA, autobusová zastávka je jen 100 metrů od domu, nájezd na Pražský okruh 2 kilometry a přírodní rezervace Modřanská a Písnická rokle pouhých 300 metrů.
Výstavba domu A se blíží ke svému dokončení – probíhá instalace obkladů, sanity, podlahových krytin a dveří, následně budou dokončeny práce v okolí domu i na zahradě. Předání je plánováno na únor 2026. V dalších měsících bude dokončen také dům B se stejnou dispozicí, který bude rovněž nabídnut k prodeji.
Architektonická studie domů byla připravena renomovaným ateliérem We Make Spaces (MS architekti).
Nemovitost je v osobním vlastnictví. V případě zájmu o financování jsme připraveni pomoci s výběrem a zajištěním hypotéky – nabízíme širokou škálu výhodných možností od různých bank.
Pro více informací a sjednání prohlídky kontaktujte makléře nemovitosti.
========
(Tiếng Việt)
Xin trân trọng giới thiệu với quý khách Bất động sản mới.
Biệt thự A (1/2) mà tôi chào bán hiện đang được thi công và sẽ được hoàn thiện vào cuối năm nay, trước Tết Bính Ngọ 2026.
Tòa nhà này được thiết kế bởi Công ty Kiến trúc nổi tiếng MS We Make Spaces thực hiện.
Biệt thự A nằm trên thửa đất rộng 292 m², có 3 tầng, với tổng diện tích sử dụng 292 m². Biệt thự được trang bị những thiết bị kỹ thuật hiện đại như bơm nhiệt, sưởi sàn, tường ốp cách nhiệt và sử dụng các nguyên vật liệu cao cấp, giúp cho việc sử dụng đạt được các tiêu chí cao nhất: Tiết kiệm tài chính và Thân thiện môi trường.
Với vị trí đắc địa: Cách TTTM Sapa chỉ 400m, cách bến Metro Písnice tuyến D tới đây cũng chỉ 400m, cách đường vành đai đi Brno hay đi sân bay Ruzyně chỉ 2 km, Biệt thự này sẽ đặc biệt phù hợp với những khách hàng làm việc và kinh doanh tại TTTM Sapa
Hãy liên hệ với tôi để biết thêm chi tiết về giá bán cũng như tư vấn về tài chính và quá trình chuyển nhượng.

Parametry domu

Cena
29 990 000 Kč /za nemovitost Spočítat hypotéku
Poznámka k ceně
Cena vcetne provizi
Aktualizováno
13. 11. 2025
Adresa
Lipovická, Praha, Písnice
ID
0201-NP03219
Stavba
Cihlová
Stav objektu
Novostavba
Druh objektu
Řadový
Lokalita objektu
Klidná část obce
Užitná plocha
292 m2
Zastavěná plocha
127 m2
Plocha pozemku
292 m2
Třída energetické náročnosti
A - Mimořádně úsporná
Elektřina
230V, 400V
Odpad
Veřejná kanalizace
Doprava
Silnice, MHD
Voda
Vodovod
Topné těleso
Podlahové vytápění
Zdroj teplé vody
Tepelné čerpadlo
Garáž

Kontaktovat makléře

Realitní kancelář

RE/MAX Atrium

Podolská 811/138, Praha 4

Chystáte se prodat nemovitost?
Pomůžeme Vám!

Máte zájem o tento dům?

Tímto, v souladu s nařízením Evropského parlamentu a Rady (EU) 2016/679, v platném znění, prohlašuji, že mi je alespoň 16 let a uděluji tak svůj souhlas se zpracováním zadaných údajů (jméno, telefon, e-mail, ip adresa) společnosti B3 Technology, s.r.o., IČ: 07330600, se sídlem Novostavby 126/23, 435 11 Lom (správce dat), za účelem předání dotazu z tohoto formuláře Vámi vybranému inzerentovi a zpětného kontaktování mé osoby. Osobní údaje bude správce zpracovávat manuálně i automaticky přímo prostřednictvím svých zaměstnanců. Informace předané tímto formulářem budou uloženy v databázi správce maximálně po dobu 10 let. Odvolání souhlasu s uložením a zpracováním poskytnutých dat lze e-mailem na info@vitio.cz. V případě podezření na neoprávněné použití Vámi poskytnutých údajů máte právo předat podnět k šetření Úřadu pro ochranu osobních údajů. Více informací
Chystáte se prodat nemovitost?
Pomůžeme Vám!

Inzerát si prohlédlo 20 lidí

Prodejce

Cuong Nguyen

Cuong Nguyen

Hlídací pes

Chcete dostávat emailem podobné nabídky prodeje rodinných domů v Praze 4?

Podobné nemovitosti