Prodej rodinného domu, Hvězdlice, 60 m2 (ID: 2445064)

Nové Hvězdlice

1 380 000 Kč /za nemovitost HYPOTÉKA od 6 168 Kč /za měsíc

(včetně provize)

Exkluzivní partneři v Hvězdlicích

Informace k domu

Nabízíme ke koupi rodinný dům v klidné obci Nové Hvězdlice, který je ideální volbou pro rekreační využití nebo přestavbu na útulné venkovské bydlení.
Na dům navazuje zahrada o výměře 416 m², situovaná v mírném svahu a porostlá vzrostlou zelení.
Dům je v původním stavu a nabízí příležitost přetvořit ho přesně podle vašich představ. Ideální pro kutily nebo ty, kdo hledají chalupu s duší, která čeká na nový život.
Nemovitost je napojena na elektřinu a obecní vodovod. Možnost připojení plynu. Odpadní vody jsou aktuálně řešeny přes septik s trativodem.

Nové Hvězdlice nabízí občanské zázemí – školku, knihovnu, obchod, zdravotní služby. poštu, sportoviště a aktivní kulturní život. Kompletní občanská vybavenost je snadno dostupná díky výhodné poloze obce poblíž Vyškova (15km) a Bučovic (14 km).
Okolo Nových Hvězdlic a v širším okolí najdete ideální podmínky pro milovníky přírody i cykloturistiky.

Parametry domu

Cena
1 380 000 Kč /za nemovitost Spočítat hypotéku
Poznámka k ceně
včetně provize
Aktualizováno
12. 9. 2025
Adresa
Nové Hvězdlice
ID
18395
Stavba
Smíšená
Stav objektu
Před rekonstrukcí
Druh objektu
Řadový
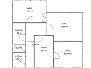
Užitná plocha
60 m2
Plocha pozemku
590 m2
Třída energetické náročnosti
G - Mimořádně nehospodárná

Kontaktovat makléře

Realitní kancelář

LUXURY REAL

Nádražní 582, Bučovice

Chystáte se prodat nemovitost?
Pomůžeme Vám!

Máte zájem o tento dům?

Tímto, v souladu s nařízením Evropského parlamentu a Rady (EU) 2016/679, v platném znění, prohlašuji, že mi je alespoň 16 let a uděluji tak svůj souhlas se zpracováním zadaných údajů (jméno, telefon, e-mail, ip adresa) společnosti B3 Technology, s.r.o., IČ: 07330600, se sídlem Novostavby 126/23, 435 11 Lom (správce dat), za účelem předání dotazu z tohoto formuláře Vámi vybranému inzerentovi a zpětného kontaktování mé osoby. Osobní údaje bude správce zpracovávat manuálně i automaticky přímo prostřednictvím svých zaměstnanců. Informace předané tímto formulářem budou uloženy v databázi správce maximálně po dobu 10 let. Odvolání souhlasu s uložením a zpracováním poskytnutých dat lze e-mailem na info@vitio.cz. V případě podezření na neoprávněné použití Vámi poskytnutých údajů máte právo předat podnět k šetření Úřadu pro ochranu osobních údajů. Více informací
Chystáte se prodat nemovitost?
Pomůžeme Vám!

Inzerát si prohlédlo 5 lidí

Prodejce

Michaela Vajdová

Michaela Vajdová

Hlídací pes

Chcete dostávat emailem podobné nabídky prodeje rodinných domů v Hvězdlicích?

Podobné nemovitosti