Pronájem bytu 3+1, Praha - Braník, Branická, 192 m2

Branická, Praha 4

105 000 Kč /za měsíc Získejte výhodnou HYPOTÉKU
Exkluzivní partneři v Praze 4

Stěhovací služby

Výkup a prodej starého nábytku

Informace k bytu

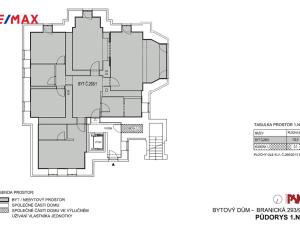
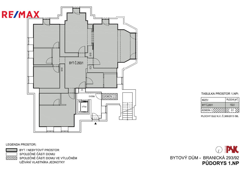
Rádi bychom Vám exkluzivně nabídli k pronájmu výjimečný prostorný byt v přízemí (1.NP) vily od významného stavitele Ing. Bedřicha Hlavy, která prošla čerstvě zcela kompletní nákladnou rekonstrukcí s respektem k původní architektuře, s maximálním zachováním dobových prvků, přičemž interiér plně odpovídá nárokům na moderní a komfortní užívání. Podlahová plocha bytu je 152 m2, plus komora 2 m2, dvojgaráž 31,8 m2 a sklep 6,8 m2, celková užitná plocha je 192,6 m2. K bytu náleží k užívání zahrada, do které se vchází francouzskými dveřmi jak z hlavní obytné místnosti, tak z kuchyně. Z dvojgaráže s podlahovým vytápěním vyjedete výtahem přímo k bytu. Vila sestává ze 4 nadzemních podlaží, jedná se tedy o příjemné komorní bydlení luxusního charakteru.
Byt o dispozici 3+1 tvoří hlavní obývací pokoj, kuchyň, 2x pokoj, hala, 2x koupelna, 3x šatna, technická místnost a sklad.
Vytápění zajišťuje tepelné čerpadlo (vzduch/voda), topení je podlahové. Okna a francouzské dveře na zahradu jsou dřevěná trojskla, repliky původních výplní. Dřevěné podlahy jsou z olejovaného dubu, interiérové dveře masiv, vyrobené na zakázku. Moderní a komfortní kuchyň je vybavená myčkou, ledničkou s mrazákem, elektrickou a mikrovlnou troubou, varnou deskou a dostatečným množstvím úložného prostoru.
Vila je situována v rezidenční zástavbě revitalizované čtvrti Prahy 4 Braník, adresa zaručuje zároveň jak perfektní občanskou vybavenost, tak skvělou dopravní dostupnost – během pár minut v dosahu Jižní spojka či Strakonická, spojení MHD – několik linek tram, bus, 15 minut na metro C Budějovická.
V případě více vážných zájemců si pronajímatel vyhrazuje právo vybrat nájemce na základě jím zvolených kritérií. Budu se na Vás těšit na prohlídkách!

Parametry bytu

Cena
105 000 Kč /za měsíc
Aktualizováno
1. 11. 2025
Adresa
Branická, Praha 4
ID
257-NP01337
Stavba
Cihlová
Stav objektu
Velmi dobrý
Patro
1. z 4
Vlastnictví
Osobní
Užitná plocha
192 m2
Třída energetické náročnosti
C - Úsporná
Odpad
Veřejná kanalizace
Garáž
Sklep
Výtah

Kontaktovat makléře

Realitní kancelář

Logo RE/MAX Cool

RE/MAX Cool

Roztylské náměstí 393/35, Praha 4

Chystáte se prodat nemovitost?
Pomůžeme Vám!

Máte zájem o tento byt?

Tímto, v souladu s nařízením Evropského parlamentu a Rady (EU) 2016/679, v platném znění, prohlašuji, že mi je alespoň 16 let a uděluji tak svůj souhlas se zpracováním zadaných údajů (jméno, telefon, e-mail, ip adresa) společnosti B3 Technology, s.r.o., IČ: 07330600, se sídlem Novostavby 126/23, 435 11 Lom (správce dat), za účelem předání dotazu z tohoto formuláře Vámi vybranému inzerentovi a zpětného kontaktování mé osoby. Osobní údaje bude správce zpracovávat manuálně i automaticky přímo prostřednictvím svých zaměstnanců. Informace předané tímto formulářem budou uloženy v databázi správce maximálně po dobu 10 let. Odvolání souhlasu s uložením a zpracováním poskytnutých dat lze e-mailem na info@vitio.cz. V případě podezření na neoprávněné použití Vámi poskytnutých údajů máte právo předat podnět k šetření Úřadu pro ochranu osobních údajů. Více informací
Chystáte se prodat nemovitost?
Pomůžeme Vám!

Inzerát si prohlédlo 3 lidí

Prodejce

Bc. Andrea Mixanová

Bc. Andrea Mixanová

Hlídací pes

Chcete dostávat emailem podobné nabídky pronájmu bytů 3+1 v Praze 4?

Podobné nemovitosti