Prodej rodinného domu, Děčín, Žlebská, 108 m2

Žlebská, Děčín, Prostřední Žleb

6 950 000 Kč /za nemovitost HYPOTÉKA od 31 062 Kč /za měsíc
Exkluzivní partneři v Děčíně

Okna a dveře

Rekonstrukce

Zámečnické práce

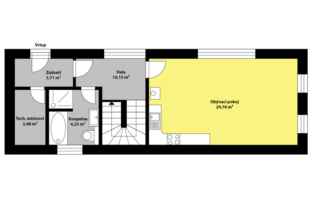
Informace k domu

Ve výhradním zastoupení nabízíme k prodeji krásnou novostavbu rodinného domu o dispozici 4+kk, situovanou v klidné části obce Prostřední Žleb, nedaleko vyhledávané přírodní oblasti Labské skály (tzv. Labák). Dům stojí na pozemku o výměře 103 m², přičemž k němu náleží rozlehlá zahrada o velikosti 750 m² – ideální pro relaxaci, pěstování i výstavbu terasy nebo pergoly.
Dispozice domu:
V přízemí se nachází vstupní předsíň, prostorná hala, koupelna a světlý obývací pokoj s kuchyňským koutem. Dominantou obývací části jsou krbová kamna s výměníkem, která zajišťují útulnou atmosféru a příjemné teplo v celém domě. Do patra vedou elegantní schody, odkud se vstupuje do ložnice, dětského pokoje a prostorné pracovny.
Velkým benefitem této nemovitosti je orientace všech obytných místností směrem do zeleně – hlavní okna i výhled z domu směřují do vlastní zahrady a na okolní přírodu, což zajišťuje absolutní soukromí, klid a krásné světelné podmínky po celý den.
Technické informace:
• Vytápění podlahovým topením napojeným na elektrokotel
• Krbová kamna s výměníkem, která vytopí celý dům
• Parkovací stání s možností postavit přístřešek až pro dvě auta
• Novostavba – bez nutnosti dalších investic
Lokalita:
Dům se nachází v tiché části Prostředního Žlebu, s výhledem do přírody a přímou blízkostí Labských skal – ideální pro milovníky přírody, turistiky, lezení či cyklistiky. Centrum Děčína je pohodlně dostupné během několika minut jízdy autem či vlakem.

Parametry domu

Cena
6 950 000 Kč /za nemovitost Spočítat hypotéku
Aktualizováno
23. 10. 2025
Adresa
Žlebská, Děčín, Prostřední Žleb
ID
001
Stavba
Cihlová
Stav objektu
Novostavba
Vybaveno
Částečně
Typ objektu
Přízemní
Druh objektu
Samostatný
Lokalita objektu
Klidná část obce
Užitná plocha
108 m2
Zastavěná plocha
103 m2
Podlahová plocha
108 m2
Plocha pozemku
103 m2
Plocha zahrady
750 m2
Třída energetické náročnosti
G - Mimořádně nehospodárná
Elektřina
230V
Odpad
Septik, Trativod
Komunikace
Asfaltová
Voda
Místní zdroj vody
Převod do OV
Parkování

Kontaktovat makléře

Realitní kancelář

Pavlína Tučková

Masarykova 1607/132, Ústí nad Labem

Chystáte se prodat nemovitost?
Pomůžeme Vám!

Máte zájem o tento dům?

Tímto, v souladu s nařízením Evropského parlamentu a Rady (EU) 2016/679, v platném znění, prohlašuji, že mi je alespoň 16 let a uděluji tak svůj souhlas se zpracováním zadaných údajů (jméno, telefon, e-mail, ip adresa) společnosti B3 Technology, s.r.o., IČ: 07330600, se sídlem Novostavby 126/23, 435 11 Lom (správce dat), za účelem předání dotazu z tohoto formuláře Vámi vybranému inzerentovi a zpětného kontaktování mé osoby. Osobní údaje bude správce zpracovávat manuálně i automaticky přímo prostřednictvím svých zaměstnanců. Informace předané tímto formulářem budou uloženy v databázi správce maximálně po dobu 10 let. Odvolání souhlasu s uložením a zpracováním poskytnutých dat lze e-mailem na info@vitio.cz. V případě podezření na neoprávněné použití Vámi poskytnutých údajů máte právo předat podnět k šetření Úřadu pro ochranu osobních údajů. Více informací
Chystáte se prodat nemovitost?
Pomůžeme Vám!

Inzerát si prohlédlo 53 lidí

Prodejce

Pavlína Tučková

Pavlína Tučková

Hlídací pes

Chcete dostávat emailem podobné nabídky prodeje rodinných domů v Děčíně?

Top nabídky

Podobné nemovitosti