Prodej zemědělské usedlosti, Zádolí, 1100 m2

Zádolí

Rezervováno
3 670 000 Kč /za nemovitost HYPOTÉKA od 16 403 Kč /za měsíc
Exkluzivní partneři v Zádolí

Informace k domu

Dokážete si představit klidný dům nebo penzion nebo statek v malebné vesničce jen 5 km od Vysokého Mýta?
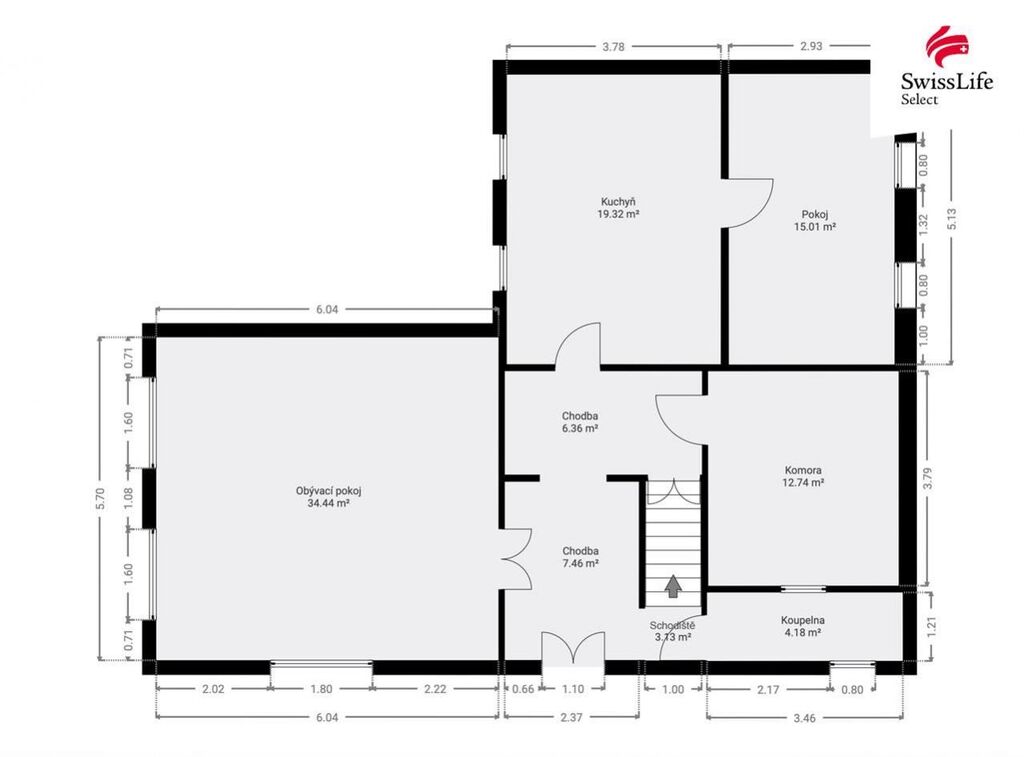
Nabízíme k prodeji rozlehlou zemědělskou usedlost na konci obce Zádolí u Vysokého Mýta. Pozemek 3700 m2, zastavěná plocha 1111 m2, obytná plocha 250m2, půda 55 m2.
Místo jako stvořené pro klidné bydlení, statek, rekreační podnikání, penzion, chov koní či domácích zvířat nebo jako atraktivní investiční příležitost, eko-projekt.

Pozemek lze jednoduše rozdělit na další stavební parcelu s vlastní příjezdovou cestou.

Krásné a klidné místo s výhledem do krajiny
Velký rovinatý pozemek s alejí a dvorem
Hluboká kamenná funkční studna
Stáje, velká stodola (přístupná ze 3 stran, ideální i pro zemědělskou techniku), garáž s dílnou
Prostorný kamenný sklep, ideální na uskladnění nebo sklípek
Přestože by byla potřeba rekonstrukce, je dům možný okamžitě užívat

Není v záplavové zóně, stavební úpravy bez složitého povolování
Výborná dostupnost dálnice D11 cca 6 km, ale chráněno lesem naprostý klid

Vhodné pro: statek, penzion, farmu, eko-projekt, rodinné sídlo, ateliér

V případě více zájemců o nemovitost, si majitel vyhrazuje právo prodat nemovitost zájemci s nejvyšší nabídkou.
Pro další informace nebo prohlídku mě neváhejte kontaktovat.

Parametry domu

Stav
Rezervováno
Cena
3 670 000 Kč /za nemovitost Spočítat hypotéku
Aktualizováno
22. 10. 2025
Adresa
Zádolí
ID
24194
Stavba
Smíšená
Stav objektu
Před rekonstrukcí
Vybaveno
Ne
Typ objektu
Přízemní
Druh objektu
Samostatný
Lokalita objektu
Klidná část obce
Užitná plocha
1100 m2
Zastavěná plocha
1111 m2
Podlahová plocha
320 m2
Plocha pozemku
3600 m2
Plocha zahrady
2500 m2
Elektřina
230V, 400V
Plyn
Plynovod
Odpad
Jímka
Topení
Lokální tuhá paliva
Komunikace
Asfaltová
Telekomunikace
Internet
Doprava
Vlak, Dálnice, Silnice, Autobus
Voda
Místní zdroj vody, Vodovod
Garáž
Sklep
Bezbarierový přístup
Parkování

Kontaktovat makléře

Máte zájem o tento dům?

Tímto, v souladu s nařízením Evropského parlamentu a Rady (EU) 2016/679, v platném znění, prohlašuji, že mi je alespoň 16 let a uděluji tak svůj souhlas se zpracováním zadaných údajů (jméno, telefon, e-mail, ip adresa) společnosti B3 Technology, s.r.o., IČ: 07330600, se sídlem Novostavby 126/23, 435 11 Lom (správce dat), za účelem předání dotazu z tohoto formuláře Vámi vybranému inzerentovi a zpětného kontaktování mé osoby. Osobní údaje bude správce zpracovávat manuálně i automaticky přímo prostřednictvím svých zaměstnanců. Informace předané tímto formulářem budou uloženy v databázi správce maximálně po dobu 10 let. Odvolání souhlasu s uložením a zpracováním poskytnutých dat lze e-mailem na info@vitio.cz. V případě podezření na neoprávněné použití Vámi poskytnutých údajů máte právo předat podnět k šetření Úřadu pro ochranu osobních údajů. Více informací
Chystáte se prodat nemovitost?
Pomůžeme Vám!

Inzerát si prohlédlo 13 lidí

Prodejce

Dana Hazuková

Dana Hazuková

Hlídací pes

Chcete dostávat emailem podobné nabídky prodeje zemědělských usedlostí v Zádolí?

Podobné nemovitosti