Pronájem skladu, Jirny, Tovární, 450 m2

Tovární, Jirny

40 800 Kč /za měsíc Získejte výhodnou HYPOTÉKU

(Provize realitní kanceláře je jeden měsíční nájem)

Exkluzivní partneři v Jirnech

Informace k nemovitosti

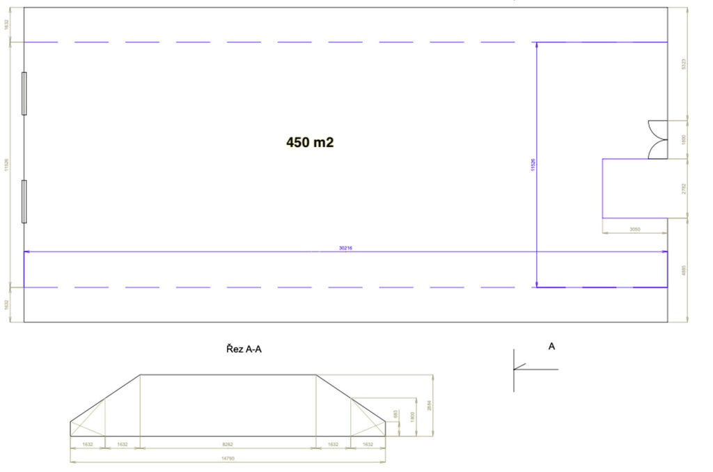
Nabízíme k pronájmu sklad o podlahové ploše 450 m² ve 3. NP s výtahem o nosnosti 1000Kg v komerčním areálu na adrese Tovární 26, Praha východ Jirny. Skladový prostor je ve druhém patře celkem ve třech místnostech o rozloze 450 m². Prostor je přístupný nákladním výtahem s nosností 1 000 kg, umožňuje příjezd nákladních vozidel k rampě a disponuje dostatečným manipulačním prostorem pro vozidla do 5 t. Sklad je vybaven topením pro temperování proti zamrznutí a v přízemí jsou k dispozici společné toalety.

Parametry nemovitosti

Cena
40 800 Kč /za měsíc
Poznámka k ceně
Provize realitní kanceláře je jeden měsíční nájem
Aktualizováno
21. 11. 2025
Adresa
Tovární, Jirny
ID
11495
Stavba
Smíšená
Stav objektu
Velmi dobrý
Typ objektu
Patrový
Druh objektu
Samostatný
Lokalita objektu
Centrum obce
Užitná plocha
450 m2
Zastavěná plocha
450 m2
Podlahová plocha
450 m2
Plocha pozemku
450 m2
Třída energetické náročnosti
G - Mimořádně nehospodárná
Elektřina
230V, 400V
Plyn
Plynovod
Parkování

Kontaktovat makléře

Máte zájem o tuto nemovistost?

Tímto, v souladu s nařízením Evropského parlamentu a Rady (EU) 2016/679, v platném znění, prohlašuji, že mi je alespoň 16 let a uděluji tak svůj souhlas se zpracováním zadaných údajů (jméno, telefon, e-mail, ip adresa) společnosti B3 Technology, s.r.o., IČ: 07330600, se sídlem Novostavby 126/23, 435 11 Lom (správce dat), za účelem předání dotazu z tohoto formuláře Vámi vybranému inzerentovi a zpětného kontaktování mé osoby. Osobní údaje bude správce zpracovávat manuálně i automaticky přímo prostřednictvím svých zaměstnanců. Informace předané tímto formulářem budou uloženy v databázi správce maximálně po dobu 10 let. Odvolání souhlasu s uložením a zpracováním poskytnutých dat lze e-mailem na info@vitio.cz. V případě podezření na neoprávněné použití Vámi poskytnutých údajů máte právo předat podnět k šetření Úřadu pro ochranu osobních údajů. Více informací
Chystáte se prodat nemovitost?
Pomůžeme Vám!

Inzerát si prohlédlo 18 lidí

Prodejce

Luboš Borovka

Luboš Borovka

Hlídací pes

Chcete dostávat emailem podobné nabídky pronájmu skladů v Jirnech?

Podobné nemovitosti