Pronájem obchodního prostoru, Jaroměř, Jezbinská, 360 m2

Jezbinská, Jaroměř

54 000 Kč /za měsíc Získejte výhodnou HYPOTÉKU

(Cena měsíčního nájemného ve výši 54.000 Kč + služby. Vratná jistota ve výši 2x měsíčního nájemného s možností nahrazení bankovní zárukou. Provize RK ve výši jednoho nájmu + DPH.)

Exkluzivní partneři v Jaroměři

Informace k nemovitosti

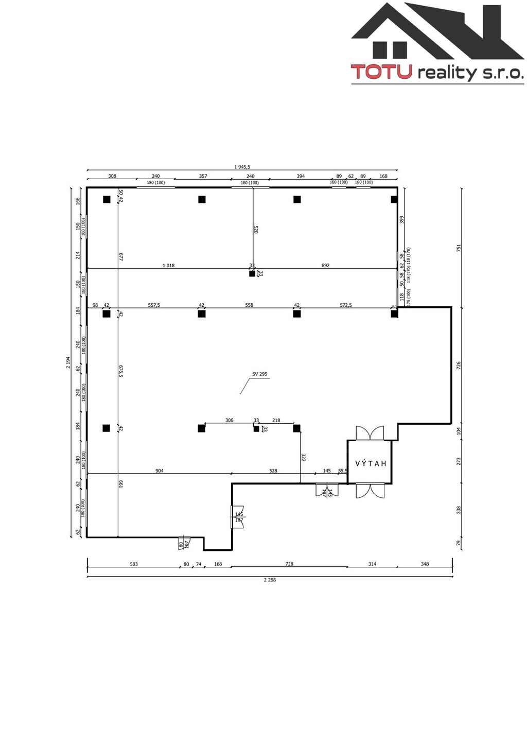
Společnost TOTU reality Jaroměř pro vás připravuje nové reprezentativní prostory pro vaše podnikání. K dlouhodobému pronájmu nabízíme komerční prostor v Jaroměři, ul. Jezbinská, část Pražské Předměstí, okres Náchod. Nemovitost se nachází na lukrativním místě při hlavní trase Jaroměř - Hradec Králové s dálničním nájezdem D11 ve vzdálenosti 3 km. V uzavřeném areálu (bývalé společnosti STEZ) se prostor nachází ve 2. NP. s podlahovou plochou 360 m2 a výškou stropu 2,95 m. Tento prostor je možné rozšířit o další halu v 1. NP. o rozloze 340 m2, přičemž tyto prostory jsou vzájemně propojeny nákladním výtahem. V letošním roce dojde k celkové revitalizaci budovy s předpokládanou energetickou náročností ,,B", což zajistí nízké náklady na provoz. V prostorách klimatizační jednotky, elektřina 230/380 V, rozvody PC sítí (300/300) a zabezpečovací zařízení. Do areálu je i bezproblémový vjezd pro kamionovou dopravu. K dispozici je při nakládce či vykládce i rampa. Ve společných prostorách objektu, kuchyňské a sociální zázemí pro zaměstnance. Nemovitost je ideální pro obchodní prostory, showroom, eshop, fitness, sklady, laser game, dětská herna, výroba, atd... Na pozemku k dispozici 15 parkovacích stání. V okolí se nachází vlakové a autobusové nádraží, čerpací stanice, banka, síť obchodů, restaurace a jiné. Cena měsíčního nájemného ve výši 54.000 Kč + služby. Vratná jistota ve výši 2x měsíčního nájemného s možností nahrazení bankovní zárukou. Provize RK ve výši jednoho nájmu + DPH. Neváhejte si zajistit termín prohlídky s možností návrhů vnitřních úprav na míru pro vaše podnikání. Doporučujme prohlídku. Více informací u makléře.

Parametry nemovitosti

Cena
54 000 Kč /za měsíc
Poznámka k ceně
Cena měsíčního nájemného ve výši 54.000 Kč + služby. Vratná jistota ve výši 2x měsíčního nájemného s možností nahrazení bankovní zárukou. Provize RK ve výši jednoho nájmu + DPH.
Aktualizováno
14. 10. 2025
Adresa
Jezbinská, Jaroměř
ID
0811
Stavba
Cihlová
Stav objektu
Po rekonstrukci
Patro
2. z 2
Typ objektu
Patrový
Užitná plocha
360 m2
Zastavěná plocha
1796 m2
Podlahová plocha
360 m2
Třída energetické náročnosti
B - Velmi úsporná
Elektřina
230V, 400V
Odpad
Veřejná kanalizace
Komunikace
Asfaltová
Telekomunikace
Internet
Doprava
Vlak, Dálnice, Silnice, MHD, Autobus
Voda
Vodovod
Výtah
Převod do OV
Parkování
Nízkoenergetický

Kontaktovat makléře

Máte zájem o tuto nemovistost?

Tímto, v souladu s nařízením Evropského parlamentu a Rady (EU) 2016/679, v platném znění, prohlašuji, že mi je alespoň 16 let a uděluji tak svůj souhlas se zpracováním zadaných údajů (jméno, telefon, e-mail, ip adresa) společnosti B3 Technology, s.r.o., IČ: 07330600, se sídlem Novostavby 126/23, 435 11 Lom (správce dat), za účelem předání dotazu z tohoto formuláře Vámi vybranému inzerentovi a zpětného kontaktování mé osoby. Osobní údaje bude správce zpracovávat manuálně i automaticky přímo prostřednictvím svých zaměstnanců. Informace předané tímto formulářem budou uloženy v databázi správce maximálně po dobu 10 let. Odvolání souhlasu s uložením a zpracováním poskytnutých dat lze e-mailem na info@vitio.cz. V případě podezření na neoprávněné použití Vámi poskytnutých údajů máte právo předat podnět k šetření Úřadu pro ochranu osobních údajů. Více informací
Chystáte se prodat nemovitost?
Pomůžeme Vám!

Inzerát si prohlédlo 6 lidí

Prodejce

Marian Tuček

Marian Tuček

Hlídací pes

Chcete dostávat emailem podobné nabídky pronájmu obchodních prostor v Jaroměři?

Podobné nemovitosti