Prodej rodinného domu, Němčany, 141 m2 (ID: 2233960)

Němčany

3 690 000 Kč /za nemovitost HYPOTÉKA od 16 492 Kč /za měsíc
Exkluzivní partneři v Němčanech

Informace k domu

Nabízíme k prodeji rodinný dům v obci Němčany, situovaný v atraktivní lokalitě s výbornou dostupností do Slavkova (7 minut), Bučovic (10 minut) a Brna (20 minut).

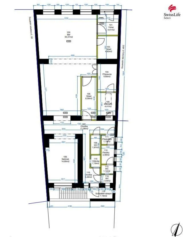
Tento dům je ideální pro přestavbu na tři moderní bytové jednotky o dispozici 4+kk. Každá jednotka má rozlohu 111,8 m a obsahuje prostornou obytnou kuchyni (35 m) a tři pokoje (každý 15 m). Pokoje budou orientovány do ulice, zatímco kuchyně a obytné prostory budou směřovat do vnitrobloku. K jednotkám náleží koupelna, samostatné WC a šatna. Každá bytová jednotka bude mít samostatný vstup ze společného komunikačního jádra a vlastní sklepní kóji v 1. podzemním podlaží. Vstup do objektu bude umístěn ve vnitrobloku.

Dům je navržen jako dvoupodlažní s obytným podkrovím, což zajišťuje dostatek prostoru pro komfortní bydlení i pro vícegenerační rodinu. K dispozici je také parkování s venkovními stáními tři na ulici a tři ve vnitrobloku. Tento projekt nabízí široké možnosti využití, ať už pro vlastní bydlení nebo jako investiční příležitost.

Němčany jsou klidná obec s velmi dobrou dopravní dostupností, ideální pro ty, kteří hledají bydlení mimo městský ruch, ale přitom s výborným spojením do Brna a okolních měst. V obci se nachází základní občanská vybavenost, včetně školy, obchodu, pošty a dalších služeb. Pro milovníky přírody a aktivního odpočinku je k dispozici řada cyklostezek a turistických tras.

Tento projekt je skvélé příležitost nejen pro rodiny, které hledají pohodlné bydlení, ale také pro investory, kteří chtějí využít rostoucího potenciálu této lokality.

Swiss Life Select Vám nabízí pomoc při vyřízení financování této nemovitosti, včetně nezávislého porovnání hypoték a tvorby financování na míru. Díky našim exkluzivním podmínkám a kvalitnímu klientskému servisu můžete být jistí, že pro vás najdeme nejlepší možnosti financování.

Parametry domu

Cena
3 690 000 Kč /za nemovitost Spočítat hypotéku
Aktualizováno
16. 6. 2025
Adresa
Němčany
ID
23569
Stavba
Cihlová
Stav objektu
Před rekonstrukcí
Vybaveno
Ne
Typ objektu
Přízemní
Druh objektu
Rohový
Užitná plocha
127 m2
Zastavěná plocha
147 m2
Podlahová plocha
141 m2
Plocha pozemku
231 m2
Třída energetické náročnosti
G - Mimořádně nehospodárná
Elektřina
230V, 400V
Plyn
Plynovod
Odpad
Veřejná kanalizace
Topení
Ústřední elektrické
Komunikace
Asfaltová
Doprava
Dálnice, Silnice, Autobus
Voda
Vodovod
Sklep
Bezbarierový přístup
Parkování

Kontaktovat makléře

Máte zájem o tento dům?

Tímto, v souladu s nařízením Evropského parlamentu a Rady (EU) 2016/679, v platném znění, prohlašuji, že mi je alespoň 16 let a uděluji tak svůj souhlas se zpracováním zadaných údajů (jméno, telefon, e-mail, ip adresa) společnosti B3 Technology, s.r.o., IČ: 07330600, se sídlem Novostavby 126/23, 435 11 Lom (správce dat), za účelem předání dotazu z tohoto formuláře Vámi vybranému inzerentovi a zpětného kontaktování mé osoby. Osobní údaje bude správce zpracovávat manuálně i automaticky přímo prostřednictvím svých zaměstnanců. Informace předané tímto formulářem budou uloženy v databázi správce maximálně po dobu 10 let. Odvolání souhlasu s uložením a zpracováním poskytnutých dat lze e-mailem na info@vitio.cz. V případě podezření na neoprávněné použití Vámi poskytnutých údajů máte právo předat podnět k šetření Úřadu pro ochranu osobních údajů. Více informací
Chystáte se prodat nemovitost?
Pomůžeme Vám!

Inzerát si prohlédlo 24 lidí

Prodejce

Mgr. Petra Biberlová

Mgr. Petra Biberlová

Hlídací pes

Chcete dostávat emailem podobné nabídky prodeje rodinných domů v Němčanech?

Podobné nemovitosti