Pronájem bytu 2+kk, Velká Bíteš, 85 m2

Velká Bíteš

21 350 Kč /za měsíc Získejte výhodnou HYPOTÉKU
Exkluzivní partneři v Velké Bíteši

Informace k bytu

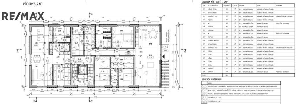
Pokud hledáte moderní a pohodlné bydlení, máme pro vás skvělou nabídku! K pronájmu nabízíme byt 2+kk o celkové ploše 85,5 m² v novostavbě. Na půdorysu se jedná o prostory označené 2.01 až 2.06.

Byt disponuje prostorným obývacím pokojem s kuchyňským koutem a velkou koupelnou. Moderní provedení zahrnuje podlahové vytápění, které zajistí příjemné teplo po celý rok.

Cena pronájmu nezahrnuje náklady na vodu, topení, ohřev vody i elektřinu které jsou 4.300 Kč/měsíc.

Byt je ideální pro ty, kteří ocení komfort nového bydlení v klidné lokalitě.

Pro více informací a domluvení prohlídky nás neváhejte kontaktovat.

Parametry bytu

Cena
21 350 Kč /za měsíc
Aktualizováno
11. 10. 2025
Adresa
Velká Bíteš
ID
144-NP02892
Stavba
Cihlová
Stav objektu
Novostavba
Patro
2. z 2
Lokalita objektu
Klidná část obce
Vlastnictví
Osobní
Užitná plocha
85 m2
Třída energetické náročnosti
B - Velmi úsporná
Elektřina
230V, 400V
Odpad
Veřejná kanalizace
Komunikace
Asfaltová
Telekomunikace
Internet, Kabelové rozvody
Doprava
Vlak, Dálnice, Silnice, Autobus
Voda
Vodovod
Parkování

Kontaktovat makléře

Realitní kancelář

Logo RE/MAX Stars

RE/MAX Stars

Karlovo nám. 15/9, Třebíč

Chystáte se prodat nemovitost?
Pomůžeme Vám!

Máte zájem o tento byt?

Tímto, v souladu s nařízením Evropského parlamentu a Rady (EU) 2016/679, v platném znění, prohlašuji, že mi je alespoň 16 let a uděluji tak svůj souhlas se zpracováním zadaných údajů (jméno, telefon, e-mail, ip adresa) společnosti B3 Technology, s.r.o., IČ: 07330600, se sídlem Novostavby 126/23, 435 11 Lom (správce dat), za účelem předání dotazu z tohoto formuláře Vámi vybranému inzerentovi a zpětného kontaktování mé osoby. Osobní údaje bude správce zpracovávat manuálně i automaticky přímo prostřednictvím svých zaměstnanců. Informace předané tímto formulářem budou uloženy v databázi správce maximálně po dobu 10 let. Odvolání souhlasu s uložením a zpracováním poskytnutých dat lze e-mailem na info@vitio.cz. V případě podezření na neoprávněné použití Vámi poskytnutých údajů máte právo předat podnět k šetření Úřadu pro ochranu osobních údajů. Více informací
Chystáte se prodat nemovitost?
Pomůžeme Vám!

Inzerát si prohlédlo 33 lidí

Prodejce

Miroslav Prokeš

Miroslav Prokeš

Hlídací pes

Chcete dostávat emailem podobné nabídky pronájmu bytů 2+kk v Velké Bíteši?

Podobné nemovitosti