Prodej ubytování, Karlovy Vary, Na Vyhlídce, 1580 m2 (ID: 2142637)

Na Vyhlídce, Karlovy Vary

69 000 000 Kč /za nemovitost HYPOTÉKA od 308 388 Kč /za měsíc
Exkluzivní partneři v Karlových Varech

Informace k nemovitosti

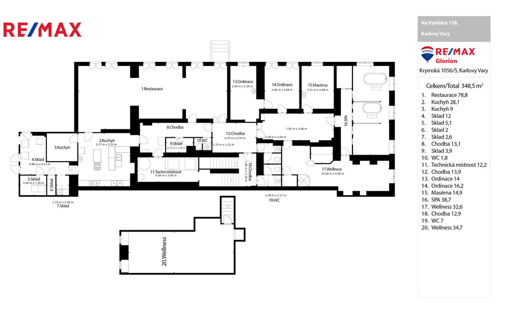
Nabízíme k prodeji exkluzivní hotel Panorama, nacházející se v prestižní lokalitě světoznámého lázeňského města Karlovy Vary. Tento elegantní rodinný hotel, který se pyšní nádherným výhledem na město a okolní krajinu, nabízí dokonalou kombinaci luxusu, komfortu a historie. Hotel se nachází jen pár minut chůze od lázeňské kolonády, která přináší nejen léčivé prameny, ale i mnoho jiných zážitků, kaváren, restaurací, obchůdků i kulturního vyžití. Pro milovníky romantických procházek je zde v blízkosti i spousta krásné krajiny, lesů, přírodních stezek a vyhlídek.
Hotel disponuje:
- 20 standartními dvoulůžkovými pokoji
- 2 apartmány, každý s kapacitou tří lůžek.
Všechny pokoje mají zásuvky pro pevné připojení internetu, tak i Wi-fi s dosahem po celém hotelu. Vstupní dveře do budovy a dveře do pokojů jsou vybaveny elektronickými zámky.
- zázemím pro kosmetické procedury, wellness, saunou a SPA s komplexními balneologickými procedurami.
- restaurací s kuchyní, s přímým vstupem na zahradu a terasu, kde je možné umístit v letních měsících stoly se slunečníky, nebo jiné posezení.
- recepce s kanceláří,
- sklady, zázemí pro personál, prádelna a garáž.
V prvním a druhém nadzemním podlaží se nachází už jednou zmiňované pokoje a apartmány. Podkroví pak ukrývá dva byty a velký nevyužitý prostor, který si můžete dokončit podle svých představ - zde byla i vypracována studie pro zvýšení kapacity. Ať už přistavíte další pokoje, byty, nebo jiné zázemí, meze se tu nekladou a vše je jen na Vaší představivosti

Karlovy Vary jsou celoročně vyhledávaným cílem turistů i lázeňských hostů, což zajišťuje stabilní obsazenost hotelu. Hotel Panorama je známý svou bohatou historií a jedinečnou atmosférou s jedním s nejkrásnějším výhledem na lázeňskou část tohoto úchvatného města. Při zájmu o prohlídku mne neváhejte kontaktovat.

Parametry nemovitosti

Cena
69 000 000 Kč /za nemovitost Spočítat hypotéku
Aktualizováno
26. 1. 2026
Adresa
Na Vyhlídce, Karlovy Vary
ID
294-NP01253
Stavba
Smíšená
Stav objektu
Dobrý
Vybaveno
Částečně
Typ objektu
Patrový
Užitná plocha
1580 m2
Zastavěná plocha
482 m2
Plocha pozemku
1387 m2
Plocha zahrady
905 m2
Třída energetické náročnosti
G - Mimořádně nehospodárná
Elektřina
230V
Plyn
Plynovod
Odpad
Veřejná kanalizace
Topení
Lokální plynové
Telekomunikace
Internet
Doprava
Silnice, MHD
Voda
Vodovod
Garáž
Převod do OV
Parkování

Kontaktovat makléře

Realitní kancelář

Logo RE/MAX Glorion

RE/MAX Glorion

Krymská 1056/5, Karlovy Vary

Chystáte se prodat nemovitost?
Pomůžeme Vám!

Máte zájem o tuto nemovistost?

Tímto, v souladu s nařízením Evropského parlamentu a Rady (EU) 2016/679, v platném znění, prohlašuji, že mi je alespoň 16 let a uděluji tak svůj souhlas se zpracováním zadaných údajů (jméno, telefon, e-mail, ip adresa) společnosti B3 Technology, s.r.o., IČ: 07330600, se sídlem Novostavby 126/23, 435 11 Lom (správce dat), za účelem předání dotazu z tohoto formuláře Vámi vybranému inzerentovi a zpětného kontaktování mé osoby. Osobní údaje bude správce zpracovávat manuálně i automaticky přímo prostřednictvím svých zaměstnanců. Informace předané tímto formulářem budou uloženy v databázi správce maximálně po dobu 10 let. Odvolání souhlasu s uložením a zpracováním poskytnutých dat lze e-mailem na info@vitio.cz. V případě podezření na neoprávněné použití Vámi poskytnutých údajů máte právo předat podnět k šetření Úřadu pro ochranu osobních údajů. Více informací
Chystáte se prodat nemovitost?
Pomůžeme Vám!

Inzerát si prohlédlo 7 lidí

Prodejce

Alexandr Mizjuk

Alexandr Mizjuk

Hlídací pes

Chcete dostávat emailem podobné nabídky prodeje ubytování v Karlových Varech?

Podobné nemovitosti