Prodej bytu 3+kk, Santa Maria, Kapverdy, 73 m2 (ID: 2658367)

Santa Maria

150 000 € /za nemovitost
Exkluzivní partneři

Informace k bytu

Exkluzivní 3+kk v první linii u moře | Tortuga Beach Resort, ostrov Sal, Kapverdy

Nabízíme k prodeji výjimečný apartmán o dispozici 3+kk situovaný v první linii u moře v prestižním 5* resortu Tortuga Beach na ostrově Sal, Kapverdy. Tato nemovitost představuje ideální spojení komfortního vlastního zázemí u oceánu a atraktivní investiční příležitosti s pravidelným výnosem.

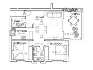
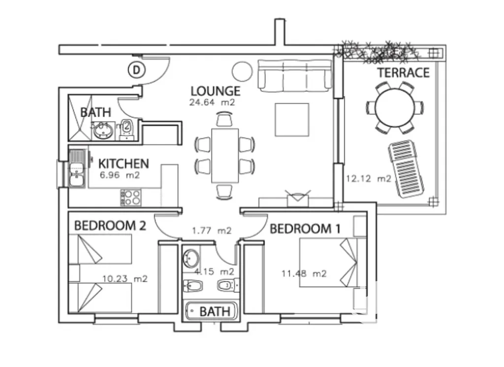
Apartmán o celkové ploše 73 m² se nachází v přízemí dvoupodlažní vily a disponuje prostornou terasou o velikosti 15,7 m², která nabízí příjemné posezení s atmosférou tropického pobřeží.

Dispozice zahrnuje vstupní předsíň, světlý obývací pokoj s kuchyňským koutem, dvě samostatné ložnice a dvě koupelny s toaletou. Nemovitost se prodává kompletně zařízená, připravená k okamžnému užívání i pronájmu.

Resort Tortuga Beach patří mezi nejvyhledávanější lokality na ostrově Sal díky přímému přístupu na pláž, kvalitním službám a vysokému standardu správy. Součástí nabídky je kompletní celoroční správa pronájmu, což zajišťuje bezstarostný provoz a stabilní pasivní příjem.

Hlavní benefity:
• první linie u moře
• 5* resort s kompletní infrastrukturou
• terasa 15,7 m²
• plně vybavený apartmán
• zajištěná správa pronájmu
• očekávaný výnos 6–7 % ročně
• měsíční poplatek za údržbu €196,31

Kapverdy jsou stabilní a bezpečnou destinací s celoročním slunečným klimatem (25–30 °C) a více než 350 slunečnými dny v roce. Rostoucí turistický ruch a omezená nabídka kvalitního ubytování vytváří dlouhodobě silnou poptávku po pronájmech.

Bezplatné prohlídky jsou možné kdykoli osobně na místě nebo formou online prezentace.

V nabídce máme i další nemovitosti různých velikostí a dispozic – rádi Vám připravíme výběr na míru.

Parametry bytu

Cena
150 000 € /za nemovitost
Aktualizováno
30. 4. 2026
Adresa
Santa Maria
ID
F26249
Stavba
Cihlová
Stav objektu
Velmi dobrý
Patro
1. z 2
Vybaveno
Ano
Vlastnictví
Osobní
Užitná plocha
73 m2
Podlahová plocha
73 m2
Elektřina
230V
Odpad
Veřejná kanalizace
Topení
Lokální elektrické
Telekomunikace
Telefon, Internet
Doprava
Silnice, Autobus
Voda
Vodovod
Terasa
Bezbarierový přístup
Parkování

Kontaktovat makléře

Máte zájem o tento byt?

Tímto, v souladu s nařízením Evropského parlamentu a Rady (EU) 2016/679, v platném znění, prohlašuji, že mi je alespoň 16 let a uděluji tak svůj souhlas se zpracováním zadaných údajů (jméno, telefon, e-mail, ip adresa) společnosti B3 Technology, s.r.o., IČ: 07330600, se sídlem Novostavby 126/23, 435 11 Lom (správce dat), za účelem předání dotazu z tohoto formuláře Vámi vybranému inzerentovi a zpětného kontaktování mé osoby. Osobní údaje bude správce zpracovávat manuálně i automaticky přímo prostřednictvím svých zaměstnanců. Informace předané tímto formulářem budou uloženy v databázi správce maximálně po dobu 10 let. Odvolání souhlasu s uložením a zpracováním poskytnutých dat lze e-mailem na info@vitio.cz. V případě podezření na neoprávněné použití Vámi poskytnutých údajů máte právo předat podnět k šetření Úřadu pro ochranu osobních údajů. Více informací
Chystáte se prodat nemovitost?
Pomůžeme Vám!

Inzerát si prohlédlo 1 lidí

Prodejce

Angelina Vasileva

Angelina Vasileva

Hlídací pes

Chcete dostávat emailem podobné nabídky prodeje bytů 3+kk?

Podobné nemovitosti