Prodej bytu 3+kk, Neratovice, 17. listopadu, 72 m2

17. listopadu, Neratovice

5 900 000 Kč /za nemovitost HYPOTÉKA od 26 369 Kč /za měsíc
Exkluzivní partneři v Neratovicích

Informace k bytu

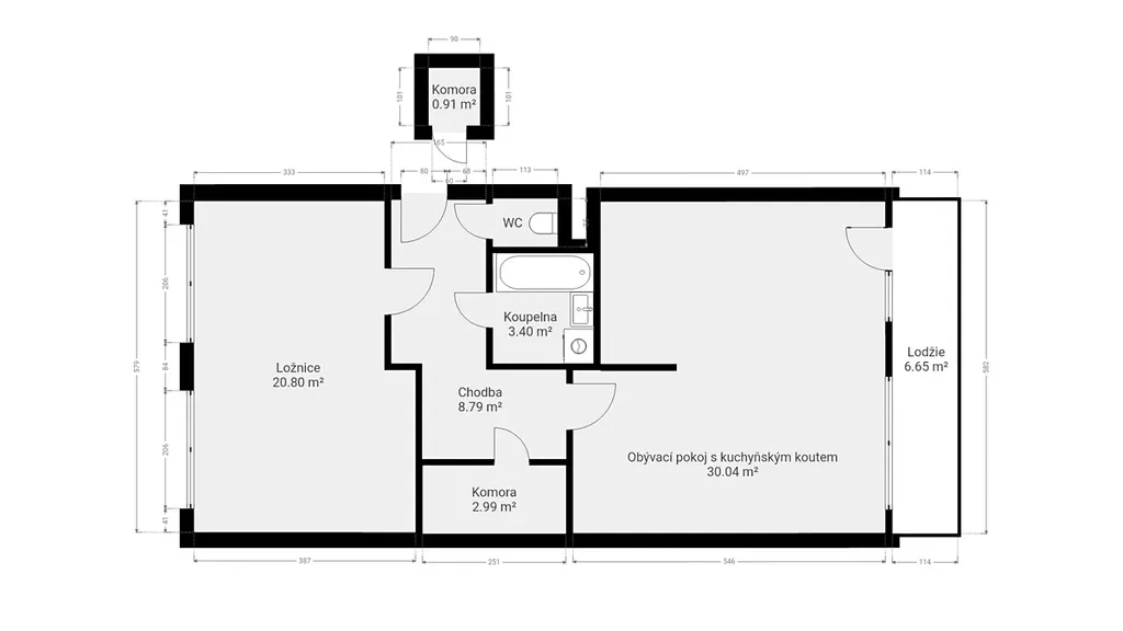
Zrekonstruovaný, družstevní byt 2+kk (původně 3+1), o podlahové ploše 64 m² a celkové ploše 72 m², v 6. patře revitalizovaného panelového domu v Neratovicích.
Vynikající dostupnost MHD směr Praha (30 minut Ládví, do hodiny Masarykovo nádraží), autobusové nádraží v Mělníku do 30 minut.

Obývací pokoj s kuchyňským koutem (27,4 m²) se vstupem na zasklenou lodžii (6 m²), ložnice s jižní orientací (21 m²; tento pokoj lze rozdělit na 2 pokoje s vlastním vstupem), samostatná šatna, koupelna s vanou a oddělené WC.

Při zajištění jinou nemovitostí lze koupi bytu financovat hypotečním úvěrem. Ráda vám pomohu s financováním a vše srozumitelně vysvětlím a zařídím za Vás.

Součástí prodeje je komora na patře a sklepní kóje. Dům je zateplený, má novou střechu, zasklené lodžie a kamerový systém, v domě je k dispozici kolárna a sušárna.

Výborná lokalita s veškerou občanskou vybaveností, parkování přímo před domem.
Měsíční poplatky jsou 4049 Kč + elektřina.

Parametry bytu

Cena
5 900 000 Kč /za nemovitost Spočítat hypotéku
Aktualizováno
26. 4. 2026
Adresa
17. listopadu, Neratovice
Stavba
Panelová
Stav objektu
Velmi dobrý
Patro
6.
Vybaveno
Částečně
Lokalita objektu
Sídliště
Vlastnictví
Družstevní
Užitná plocha
72 m2
Podlahová plocha
74 m2
Třída energetické náročnosti
C - Úsporná
Ukazatel energetické náročnosti
78 kWh/m2 za rok
Elektřina
230V
Odpad
Veřejná kanalizace
Komunikace
Asfaltová
Telekomunikace
Telefon, Internet, Kabelové rozvody
Doprava
Vlak, Dálnice, Silnice, MHD, Autobus
Voda
Vodovod
Topné těleso
Radiátory
Zdroj topení
Ústřední dálkové
Balkon
Sklep
Výtah
Bezbarierový přístup
Převod do OV

Kontaktovat makléře

Realitní kancelář

Koncept

Dittrichova 337/9, Praha

Chystáte se prodat nemovitost?
Pomůžeme Vám!

Máte zájem o tento byt?

Tímto, v souladu s nařízením Evropského parlamentu a Rady (EU) 2016/679, v platném znění, prohlašuji, že mi je alespoň 16 let a uděluji tak svůj souhlas se zpracováním zadaných údajů (jméno, telefon, e-mail, ip adresa) společnosti B3 Technology, s.r.o., IČ: 07330600, se sídlem Novostavby 126/23, 435 11 Lom (správce dat), za účelem předání dotazu z tohoto formuláře Vámi vybranému inzerentovi a zpětného kontaktování mé osoby. Osobní údaje bude správce zpracovávat manuálně i automaticky přímo prostřednictvím svých zaměstnanců. Informace předané tímto formulářem budou uloženy v databázi správce maximálně po dobu 10 let. Odvolání souhlasu s uložením a zpracováním poskytnutých dat lze e-mailem na info@vitio.cz. V případě podezření na neoprávněné použití Vámi poskytnutých údajů máte právo předat podnět k šetření Úřadu pro ochranu osobních údajů. Více informací
Chystáte se prodat nemovitost?
Pomůžeme Vám!

Inzerát si prohlédlo 0 lidí

Prodejce

Jitka Hrušková

Jitka Hrušková

Hlídací pes

Chcete dostávat emailem podobné nabídky prodeje bytů 3+kk v Neratovicích?

Podobné nemovitosti