Prodej bytu 1+kk, Praha - Bubeneč, Zelená, 26 m2

Zelená, Praha 6 - Bubeneč

Exkluzivní partneři v Praze 6

Stěhovací služby

Výkup a prodej starého nábytku

Informace k bytu

Prodej bytu 1+0, 26 m and sup2 Praha 6

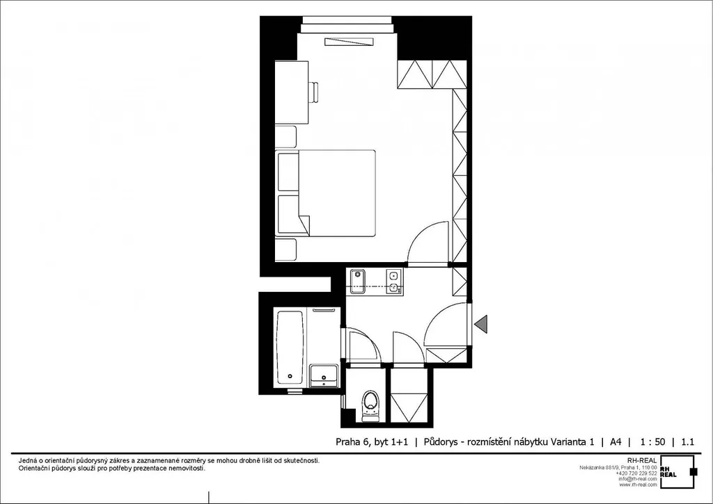
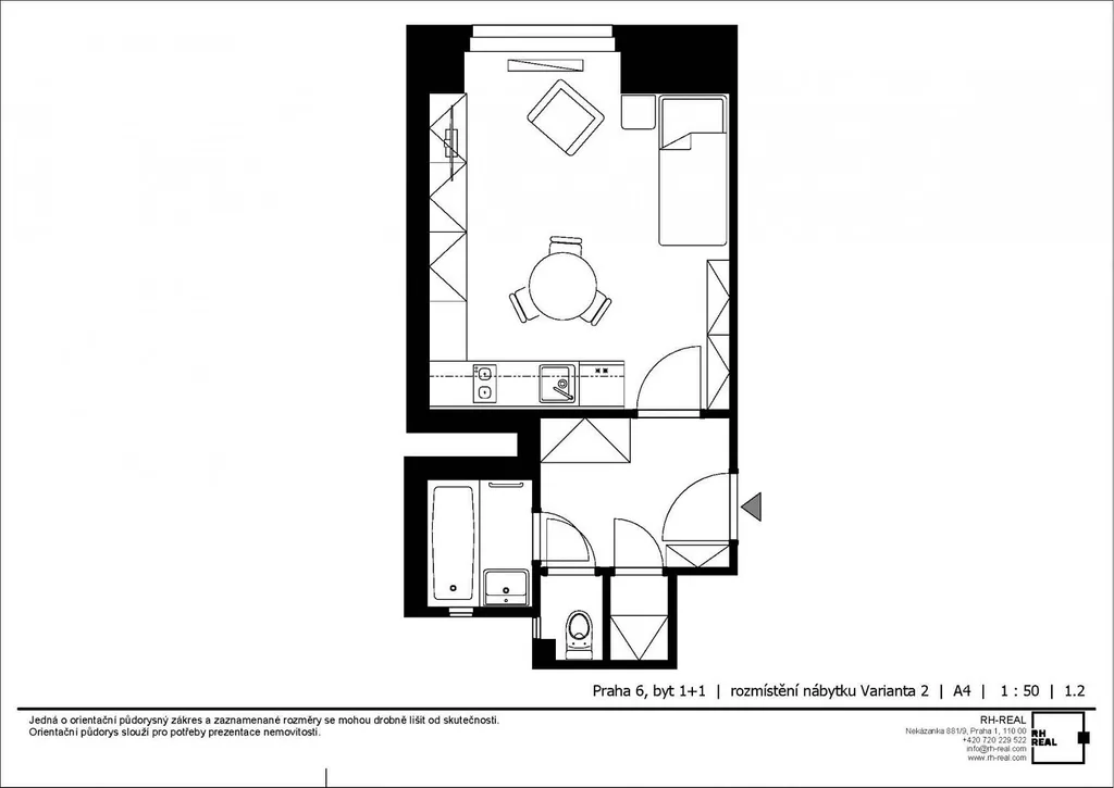
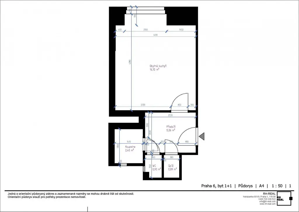
Nabízíme Vám byt 1+0 o celkové výměře 26 m and sup2; v atraktivní rezidenční čtvrti Praha 6 Bubeneč, v klidné ulici Zelená. Byt se nachází v 1. podzemním podlaží (polo-suterén) cihlového bytového domu č. p. 945, který je kompletně podsklepen.

Jedná se o polo-suterén, kdy velké okno je z pohledu vnitrobloku těsně nad terénem i přesto je byt velmi světlý a tichý díky orientaci do vnitrobloku. Okna jsou špaletová, modernizovaná s jednosklem a dvojsklem ve venkovní části. Příjemnou dispozici podtrhuje oddělená toaleta od koupelny a standartní výška stropu.

Dům samotný je v dobrém a udržovaném stavu - je vidět, že se SVJ snaží - kamerový systém, udržovaný vnitroblok a čisto.

Výhodou je velmi dobrá dopravní dostupnost a blízkost Vysoké školy technické (ČVUT Dejvice).

Dispozice:

Pokoj: 18,0 m and sup2;
Předsíň: 3,8 m and sup2;
Koupelna: 2,4 m and sup2;
WC: 0,9 m and sup2;
Komora: 0,9 m and sup2;
Celková plocha s příslušenstvím: 26,0 m and sup2;

Byt je ve stavu před rekonstrukcí ideální volba pro investory nebo kupující, kteří chtějí vytvořit bydlení přesně podle svých představ. Je třeba počítat s celkovou rekonstrukcí včetně řešení drobné vlhkosti zdiva (orientační průzkum vlhkosti a koncepce sanace celého domu od Ing. Michaela Balíka, CSc., 09/2023 jsou k dispozici). Více informací poskytneme na prohlídce.

Info: V bytě je momentálně do konce měsíce 06/2026 nájemnice a prohlídky budou tomu přizpůsobeny.

Parametry bytu

Cena
4 680 000 Kč Spočítat hypotéku
Aktualizováno
24. 4. 2026
Adresa
Zelená, Praha 6 - Bubeneč
ID
37
Stavba
Cihlová
Vybaveno
Ne
Vlastnictví
Osobní
Užitná plocha
26 m2
Třída energetické náročnosti
E - Nehospodárná

Kontaktovat makléře

Máte zájem o tento byt?

Tímto, v souladu s nařízením Evropského parlamentu a Rady (EU) 2016/679, v platném znění, prohlašuji, že mi je alespoň 16 let a uděluji tak svůj souhlas se zpracováním zadaných údajů (jméno, telefon, e-mail, ip adresa) společnosti B3 Technology, s.r.o., IČ: 07330600, se sídlem Novostavby 126/23, 435 11 Lom (správce dat), za účelem předání dotazu z tohoto formuláře Vámi vybranému inzerentovi a zpětného kontaktování mé osoby. Osobní údaje bude správce zpracovávat manuálně i automaticky přímo prostřednictvím svých zaměstnanců. Informace předané tímto formulářem budou uloženy v databázi správce maximálně po dobu 10 let. Odvolání souhlasu s uložením a zpracováním poskytnutých dat lze e-mailem na info@vitio.cz. V případě podezření na neoprávněné použití Vámi poskytnutých údajů máte právo předat podnět k šetření Úřadu pro ochranu osobních údajů. Více informací
Chystáte se prodat nemovitost?
Pomůžeme Vám!

Inzerát si prohlédlo 1 lidí

Prodejce

Jiří Hofhanzl

Jiří Hofhanzl

Hlídací pes

Chcete dostávat emailem podobné nabídky prodeje bytů 1+kk v Praze 6?

Podobné nemovitosti