Prodej bytu 2+kk, České Budějovice, Rudolfovská tř., 98 m2 (ID: 2649579)

Rudolfovská tř., České Budějovice

6 800 000 Kč /za nemovitost HYPOTÉKA od 30 392 Kč /za měsíc

(Včetně právnho servisu)

Exkluzivní partneři v Českých Budějovicích

Výkup a prodej starého nábytku

Informace k bytu

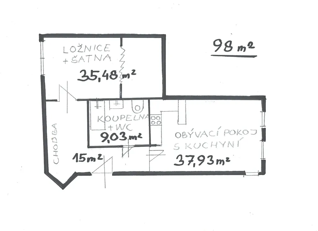
Na prodej velkoprostorový zděný byt na Rudolfovské třídě .Byt je umístěn poblíž křížení ulic Rudolfovská/Na Sadech, České Budějovice, v sousedství městského parku a centrálního náměstí Přemysla Otakara II. Byt je atypický a má dispozici 2+kk (možno 3+kk) a podlahovou plochu 98 m2.Byt se nachází ve 2.patře (3.N.P.) bytového domu o celkem 5 nadzemních podlažích.
‌Byt má dispozici: zádveří+chodba – 15 m2, koupelna s WC - 9,03m2, ložnice+šatna -35.48m2 (možno rozdělit) obývací pokoj s kuchyní- 37.93. K bytu náleží sklepní kóje v 1.N.P. výměře cca 1.5 m2. Do třídy Ruolfovská jsou orientována okna obýv.pokoje.Do vitrobloku je orientováno okno ložnice s balkonovými dveřmi.Balkon je možné dodatečně zřídit (ve fasádě je provedena příprava a v prohlášení vlastníka je balkon též uveden)
Byt má vlastní ústřední topení s plynovým kotlem BAXI a rozvody s radiátory.
Byt byl dokončen v r 2014 a je v provedení : vnitřní dveře dýhované +obložkové zárubně ,povrchy podlah- keram.dlažby+laminátové plovoucí ,okna plastová s izolačními dvojskly , koupelna se samostatně stojící vanou,umyvadlem a závěsným WC ,vybavená kuchyňská linka s vestavěnými spotřebiči,barem a dvěma digestořemi atd .Na chodbě prostorný výtah Schindler.
Dům je zateplen-energetická třída C.
Díky poloze s blízkostí zeleně a zároveň dostupnosti do centra města je tento byt zajímavý pro široké skupiny zájemců.

Parametry bytu

Cena
6 800 000 Kč /za nemovitost Spočítat hypotéku
Poznámka k ceně
Včetně právnho servisu
Aktualizováno
22. 4. 2026
Adresa
Rudolfovská tř., České Budějovice
Stavba
Cihlová
Stav objektu
Velmi dobrý
Patro
3.
Vlastnictví
Osobní
Užitná plocha
98 m2
Sklep

Kontaktovat makléře

Máte zájem o tento byt?

Tímto, v souladu s nařízením Evropského parlamentu a Rady (EU) 2016/679, v platném znění, prohlašuji, že mi je alespoň 16 let a uděluji tak svůj souhlas se zpracováním zadaných údajů (jméno, telefon, e-mail, ip adresa) společnosti B3 Technology, s.r.o., IČ: 07330600, se sídlem Novostavby 126/23, 435 11 Lom (správce dat), za účelem předání dotazu z tohoto formuláře Vámi vybranému inzerentovi a zpětného kontaktování mé osoby. Osobní údaje bude správce zpracovávat manuálně i automaticky přímo prostřednictvím svých zaměstnanců. Informace předané tímto formulářem budou uloženy v databázi správce maximálně po dobu 10 let. Odvolání souhlasu s uložením a zpracováním poskytnutých dat lze e-mailem na info@vitio.cz. V případě podezření na neoprávněné použití Vámi poskytnutých údajů máte právo předat podnět k šetření Úřadu pro ochranu osobních údajů. Více informací
Chystáte se prodat nemovitost?
Pomůžeme Vám!

Inzerát si prohlédlo 0 lidí

Prodejce

ing.Petr Solonek-REAG

ing.Petr Solonek-REAG

Hlídací pes

Chcete dostávat emailem podobné nabídky prodeje bytů 2+kk v Českých Budějovicích?

Podobné nemovitosti