Prodej bytu 2+1, Praha - Letňany, Šumperská, 52 m2 (ID: 2648910)

Šumperská, Praha, Letňany

8 072 777 Kč /za nemovitost HYPOTÉKA od 36 080 Kč /za měsíc

(včetně provize, včetně právního servisu)

Exkluzivní partneři v Praze

Stěhovací služby

Výkup a prodej starého nábytku

Informace k bytu

Evidenční číslo / ID zakázky: DS208

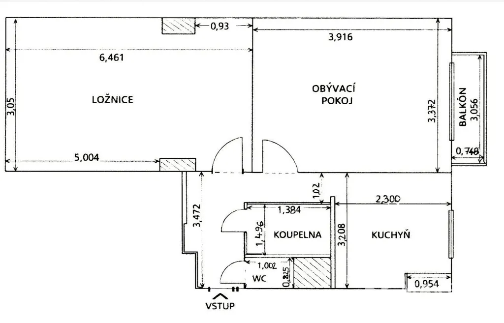
Nabízíme k prodeji světlý a příjemný byt v osobním vlastnictví o dispozici 2+1 a podlahové ploše 52,43 m² s balkonem (2,32 m²) a dvěma zděnými sklepy (3,7 m²), který se nachází ve 3. nadzemním podlaží ze 4 v cihlovém domě v klidné části Prahy 9 – Letňany, ulice Šumperská.

Byt je ve velmi dobrém technickém stavu a umožňuje okamžité nastěhování bez nutnosti zásadních úprav. Rekonstrukce proběhla v roce 2010 a zahrnovala nové rozvody elektřiny v mědi, zděnou koupelnu, samostatné WC a kuchyni, která je nově doplněna o myčku. Samozřejmostí jsou plastová okna s trojskly, parkety v obytných místnostech a dlažba v ostatních částech bytu.

Dispozice bytu je praktická a funkční – menší pokoj s balkonem a kuchyně s jídelním koutem jsou orientovány na východ, větší pokoj na západ do zeleně, což zajišťuje dostatek světla po celý den a příjemnou atmosféru. Koupelna je zděná s vanou, toaleta je oddělená a vybavená umývátkem a bidetovou sprškou. Byt dále nabízí kvalitní zařizovací prvky (Hansgrohe, Laufen) a bezpečnostní vstupní dveře třídy 3.

Dům prošel v roce 2017 zateplením a rekonstrukcí balkonů.

Lokalita Letňany patří mezi dlouhodobě vyhledávané díky kombinaci klidného prostředí, dostatku zeleně a výborné dopravní dostupnosti na metro C – Letňany. V okolí se nachází kompletní občanská vybavenost včetně obchodního centra OC Letňany, výstaviště PVA Letňany, škol, školek a širokých možností sportovního vyžití (ICE Arena, Lagoon, squash, badminton, fitness centra). V blízkosti je rovněž lesopark směrem na Kbely a Čakovice.

Pro více informací a domluvení prohlídky kontaktujte prosím realitního makléře.
Skutečná energetická třída PENB může být vyšší než třída G, kterou jsme povinni uvést v souladu se zákonem z důvodu absence potvrzení.

Parametry bytu

Cena
8 072 777 Kč /za nemovitost Spočítat hypotéku
Poznámka k ceně
včetně provize, včetně právního servisu
Aktualizováno
21. 4. 2026
Adresa
Šumperská, Praha, Letňany
ID
DS208
Stavba
Cihlová
Stav objektu
Velmi dobrý
Patro
3. z 4
Vybaveno
Částečně
Vlastnictví
Osobní
Užitná plocha
52 m2
Třída energetické náročnosti
G - Mimořádně nehospodárná
Balkon
Sklep

Kontaktovat makléře

Realitní kancelář

Logo Makers Reality

Makers Reality

Vinohradská 2133/138, Praha

Chystáte se prodat nemovitost?
Pomůžeme Vám!

Máte zájem o tento byt?

Tímto, v souladu s nařízením Evropského parlamentu a Rady (EU) 2016/679, v platném znění, prohlašuji, že mi je alespoň 16 let a uděluji tak svůj souhlas se zpracováním zadaných údajů (jméno, telefon, e-mail, ip adresa) společnosti B3 Technology, s.r.o., IČ: 07330600, se sídlem Novostavby 126/23, 435 11 Lom (správce dat), za účelem předání dotazu z tohoto formuláře Vámi vybranému inzerentovi a zpětného kontaktování mé osoby. Osobní údaje bude správce zpracovávat manuálně i automaticky přímo prostřednictvím svých zaměstnanců. Informace předané tímto formulářem budou uloženy v databázi správce maximálně po dobu 10 let. Odvolání souhlasu s uložením a zpracováním poskytnutých dat lze e-mailem na info@vitio.cz. V případě podezření na neoprávněné použití Vámi poskytnutých údajů máte právo předat podnět k šetření Úřadu pro ochranu osobních údajů. Více informací
Chystáte se prodat nemovitost?
Pomůžeme Vám!

Inzerát si prohlédlo 1 lidí

Prodejce

Makers Reality

Makers Reality

Hlídací pes

Chcete dostávat emailem podobné nabídky prodeje bytů 2+1 v Praze?

Podobné nemovitosti