Prodej kanceláře, Hradec Králové, Sadovská, 78 m2 (ID: 2646160)

Sadovská, Hradec Králové

Exkluzivní partneři v Hradci Králové

Informace k nemovitosti

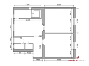
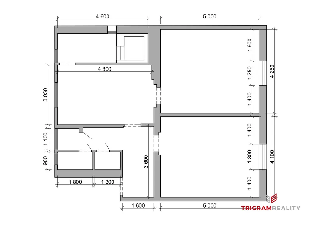
Prostory vhodné ke komerčnímu využití 77,50 m², ul. Sadovská, Hradec Králové

Zprostředkuji Vám prodej prostor (v současné době vedeno jako bytová jednotka) o velikosti cca 77,50 m² + sklep, vhodný pro komerční využití, který se nachází v 1. nadzemním podlaží cihlového domu v ulici Sadovská, Hradec Králové, Pražské Předměstí.

Dispozice nabízí vstupní chodbu, komoru, samostatnou toaletu, dvě samostatné místnosti orientované do ulice a kuchyň, ze které je vstup do prostorné koupelny. Dispoziční řešení umožňuje vytvořit prostor pro vstup s recepcí a další dvě samostatné kanceláře, což nabízí využití zejména pro advokátní či účetní služby, ordinace, kosmetické služby a další podnikání vyžadující klidné zázemí v dobře dostupné lokalitě.

Jednotka je v původním stavu a je určena ke kompletní rekonstrukci. Vytápění je v současnosti řešeno plynovými topidly (vafkami).

Velkou výhodou je samotná lokalita v širším centru města s velmi dobrou pěší dostupností, i parkováním.
Hlavní nádraží i dopravní terminál jsou vzdálené pár minut chůze. V okolí se nachází kompletní občanská vybavenost a další služby. Dukelská třída (pěší zóna) je vzdálena pouhých 400 metrů.

Samozřejmostí je také rychlé napojení na dálnici D11 a hlavní tahy.

Pro více informací nebo sjednání prohlídky mě prosím kontaktujte. Těším se na setkání.

Parametry nemovitosti

Cena
5 790 000 Kč Spočítat hypotéku
Aktualizováno
18. 4. 2026
Adresa
Sadovská, Hradec Králové
ID
N726
Stavba
Cihlová
Lokalita objektu
Centrum obce
Užitná plocha
78 m2
Třída energetické náročnosti
G - Mimořádně nehospodárná

Kontaktovat makléře

Realitní kancelář

Trigramreality s.r.o.

Milady Horákové 1738/7, Hradec Králové

Chystáte se prodat nemovitost?
Pomůžeme Vám!

Máte zájem o tuto nemovistost?

Tímto, v souladu s nařízením Evropského parlamentu a Rady (EU) 2016/679, v platném znění, prohlašuji, že mi je alespoň 16 let a uděluji tak svůj souhlas se zpracováním zadaných údajů (jméno, telefon, e-mail, ip adresa) společnosti B3 Technology, s.r.o., IČ: 07330600, se sídlem Novostavby 126/23, 435 11 Lom (správce dat), za účelem předání dotazu z tohoto formuláře Vámi vybranému inzerentovi a zpětného kontaktování mé osoby. Osobní údaje bude správce zpracovávat manuálně i automaticky přímo prostřednictvím svých zaměstnanců. Informace předané tímto formulářem budou uloženy v databázi správce maximálně po dobu 10 let. Odvolání souhlasu s uložením a zpracováním poskytnutých dat lze e-mailem na info@vitio.cz. V případě podezření na neoprávněné použití Vámi poskytnutých údajů máte právo předat podnět k šetření Úřadu pro ochranu osobních údajů. Více informací
Chystáte se prodat nemovitost?
Pomůžeme Vám!

Inzerát si prohlédlo 0 lidí

Prodejce

Bc. Jiří Hruška

Bc. Jiří Hruška

Hlídací pes

Chcete dostávat emailem podobné nabídky prodeje kanceláří v Hradci Králové?

Podobné nemovitosti