Prodej bytu 3+1, Tábor, 83 m2

Tábor

4 190 000 Kč /za nemovitost HYPOTÉKA od 18 727 Kč /za měsíc
Exkluzivní partneři v Táboře

Výkup a prodej starého nábytku

Informace k bytu

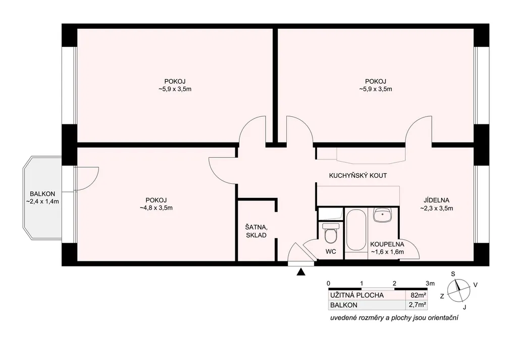
Byt 3+1 v panelovém domě, po celkové revitalizaci, v ulici Sokolovská. Jde o velmi pěkné místo k bydlení, před domem dětské hřiště, přes ulici škola a školka, v blízkosti také tenisová hala a zimní stadion.

Byt má všechny pokoje neprůchozí a velkou výhodou je, že jej můžete zrekonstruovat naprosto dle vašich potřeb.
Prohlédněte si virtuální prohlídku, umístěnou ve fotogalerii.

Byt je balkonem orientovaný na jih, dům i lokalita jsou klidné. Umístění je ve čtvrtém patře, výtah je v plánu.
Byt je vytápěn ústředním topením, okna plastová. Na podlahách lino a koberce, v koupelně dlažba.

Byt je veliký dle prohlášení vlastníka 83,49 m², jednotlivé rozlohy místností a příslušenství:
kuchyně 12.44 m2
pokoj 20.44 m2
pokoj 20.44 m2
pokoj 16.53 m2
balkon 1.22 m2
koupelna 2.70 m2
WC 1.43 m2
předsíň 5.72 m2
šatna 2.18 m2
sklep 1.61 m

V současné době jsou celkové náklady (vyjma elektřiny) 5.026,-Kč/měsíčně. Z toho fond oprav 1.638,-Kč.
Energetický štítek nebyl zatím dodán, uvádím tedy G. Bude doplněno.

Uvedené výměry jsou orientační. Veškeré zveřejněné údaje obsažené v tomto inzerátu mají pouze informativní charakter a nejsou nabídkou ve smyslu § 1731 nebo § 1732 občanského zákoníku, ani se nejedná o veřejný příslib dle § 1733 občanského zákoníku.

Vybraná fota obsahují vizualizaci možného stavu.

V případě více zájemců bude nemovitost prodána nejlepší nabídce a majitel si vyhrazuje právo vybrat kupujícího na základě jim zvolených kritérií.

Parametry bytu

Cena
4 190 000 Kč /za nemovitost Spočítat hypotéku
Aktualizováno
17. 4. 2026
Adresa
Tábor
ID
20068
Stavba
Panelová
Stav objektu
Dobrý
Patro
5. z 5
Typ objektu
Patrový
Vlastnictví
Osobní
Užitná plocha
83 m2
Podlahová plocha
83 m2
Třída energetické náročnosti
G - Mimořádně nehospodárná
Plyn
Plynovod
Odpad
Veřejná kanalizace
Topení
Ústřední dálkové
Doprava
Silnice, MHD, Autobus
Topné těleso
Radiátory
Sklep
Bezbarierový přístup

Kontaktovat makléře

Máte zájem o tento byt?

Tímto, v souladu s nařízením Evropského parlamentu a Rady (EU) 2016/679, v platném znění, prohlašuji, že mi je alespoň 16 let a uděluji tak svůj souhlas se zpracováním zadaných údajů (jméno, telefon, e-mail, ip adresa) společnosti B3 Technology, s.r.o., IČ: 07330600, se sídlem Novostavby 126/23, 435 11 Lom (správce dat), za účelem předání dotazu z tohoto formuláře Vámi vybranému inzerentovi a zpětného kontaktování mé osoby. Osobní údaje bude správce zpracovávat manuálně i automaticky přímo prostřednictvím svých zaměstnanců. Informace předané tímto formulářem budou uloženy v databázi správce maximálně po dobu 10 let. Odvolání souhlasu s uložením a zpracováním poskytnutých dat lze e-mailem na info@vitio.cz. V případě podezření na neoprávněné použití Vámi poskytnutých údajů máte právo předat podnět k šetření Úřadu pro ochranu osobních údajů. Více informací
Chystáte se prodat nemovitost?
Pomůžeme Vám!

Inzerát si prohlédlo 1 lidí

Prodejce

Markéta  Jenčíková

Markéta Jenčíková

Hlídací pes

Chcete dostávat emailem podobné nabídky prodeje bytů 3+1 v Táboře?

Podobné nemovitosti