Prodej bytu 3+kk, Jablonec nad Nisou, Krkonošská, 96 m2

Krkonošská, Jablonec nad Nisou, Kokonín

9 045 000 Kč /za nemovitost HYPOTÉKA od 40 426 Kč /za měsíc
Exkluzivní partneři v Jablonci nad Nisou

Rekonstrukce

Úklidové služby

Informace k bytu

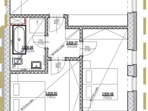
Nabízíme k prodeji nadstandardní byt (B26) o dispozici 3+kk a celkové výměře 96,5 m² dle NOZ (čistá užitná plocha 90,9 m²). Byt se nachází ve 3. podlaží a je orientován převážně na jihozápad, což zajišťuje dostatek přirozeného světla po většinu dne. K bytu náleží také sklepní kóje o velikosti 2,6 m².

Dispozice bytu je řešena velmi prakticky – nabízí prostornou vstupní předsíň, kterou lze využít jako velkorysou šatnu, případně ji upravit a rozšířit tak byt o další pokoj či pracovní kout dle vašich potřeb.

Akční nabídka: K bytu získáte parkovací stání zdarma při rezervaci do 30. 6. 2026. Uvedená cena je konečná a již zahrnuje tuto akční výhodu.

Byt se nachází v projektu Bytový dům Sklárna v klidné části Jablonce nad Nisou – Kokoníně. Velkou výhodou je soukromý oplocený areál, který je přístupný pouze rezidentům a jejich návštěvám. Díky tomu zde vzniká bezpečné a přátelské prostředí ideální pro rodiny s dětmi. Součástí areálu jsou společné zelené plochy pro relax i setkávání sousedů a nově budované dětské hřiště, kde si děti mohou hrát bez nutnosti kamkoliv docházet.

Samozřejmostí je vysoký standard provedení – kvalitní vinylové podlahy s akustickou podložkou, francouzská okna s izolačním trojsklem, moderní koupelny se sanitou Grohe a velkoformátové obklady, příprava na venkovní žaluzie apod.

Lokalita spojuje výhody klidného bydlení v přírodě s dobrou dostupností města. V okolí najdete množství možností pro rodinné výlety, sport i každodenní relax – například Černostudniční hřeben, Bártlův vrch nebo Jizerské hory.

Více informací a kompletní nabídku bytů naleznete na webových stránkách projektu uvedených níže v sekci Kontakt.

Prodej probíhá přímo od developera – neplatíte žádnou provizi. Byt je připravený k nastěhování

Parametry bytu

Cena
9 045 000 Kč /za nemovitost Spočítat hypotéku
Aktualizováno
17. 4. 2026
Adresa
Krkonošská, Jablonec nad Nisou, Kokonín
ID
353/27 (B26)
Stavba
Cihlová
Stav objektu
Novostavba
Patro
3.
Vlastnictví
Osobní
Užitná plocha
96 m2
Třída energetické náročnosti
B - Velmi úsporná
Sklep
Parkování

Kontaktovat makléře

Realitní kancelář

FLATS JBC s.r.o.

Palackého 3145/41, Jablonec nad Nisou

Chystáte se prodat nemovitost?
Pomůžeme Vám!

Máte zájem o tento byt?

Tímto, v souladu s nařízením Evropského parlamentu a Rady (EU) 2016/679, v platném znění, prohlašuji, že mi je alespoň 16 let a uděluji tak svůj souhlas se zpracováním zadaných údajů (jméno, telefon, e-mail, ip adresa) společnosti B3 Technology, s.r.o., IČ: 07330600, se sídlem Novostavby 126/23, 435 11 Lom (správce dat), za účelem předání dotazu z tohoto formuláře Vámi vybranému inzerentovi a zpětného kontaktování mé osoby. Osobní údaje bude správce zpracovávat manuálně i automaticky přímo prostřednictvím svých zaměstnanců. Informace předané tímto formulářem budou uloženy v databázi správce maximálně po dobu 10 let. Odvolání souhlasu s uložením a zpracováním poskytnutých dat lze e-mailem na info@vitio.cz. V případě podezření na neoprávněné použití Vámi poskytnutých údajů máte právo předat podnět k šetření Úřadu pro ochranu osobních údajů. Více informací
Chystáte se prodat nemovitost?
Pomůžeme Vám!

Inzerát si prohlédlo 0 lidí

Prodejce

Filip Štěpán

Filip Štěpán

Hlídací pes

Chcete dostávat emailem podobné nabídky prodeje bytů 3+kk v Jablonci nad Nisou?

Podobné nemovitosti