Prodej pozemku pro bydlení, Velká Bíteš, 603 m2

Velká Bíteš

4 490 000 Kč /za nemovitost HYPOTÉKA od 20 068 Kč /za měsíc
Exkluzivní partneři v Velké Bíteši

Informace k pozemku

Hledáte místo pro svůj vysněný dům bez zbytečných starostí a čekání? Tento pozemek je připravený k okamžité výstavbě – stačí začít stavět.

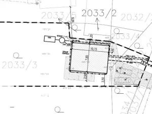
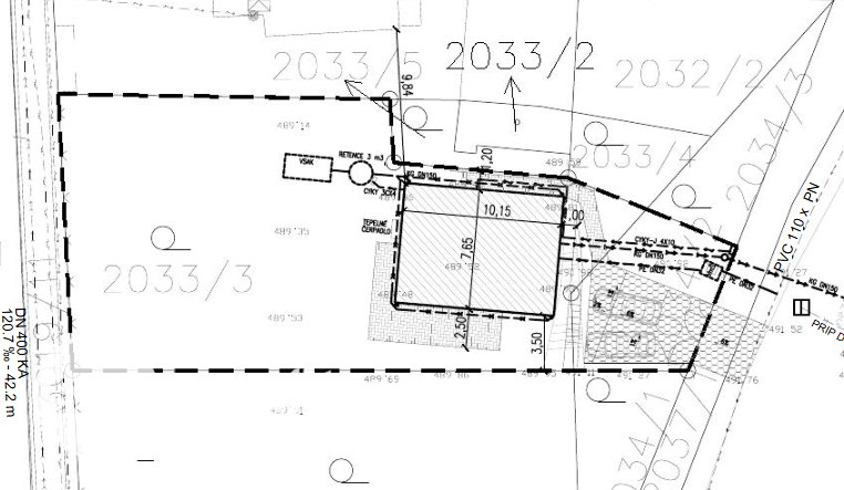
Nabízím k prodeji stavební pozemek o výměře 603 m² v atraktivní lokalitě Velká Bíteš, který spojuje klidné bydlení s výbornou dostupností do Brna.

Hlavní výhody:
- kompletně zasíťovaný (voda, kanalizace, elektřina přímo na pozemku)
- připravený k okamžité výstavbě – bez nutnosti cokoliv řešit
- zastavitelnost až 60 %
- nová asfaltová komunikace až k pozemku
- vlastní studna s dostatkem vody (ideální pro zalévání, napouštění bazénu apod.)
- ze strany od hlavní silnice vzrostlý živý plot (v zimě opadavý) – přirozená protihluková a protiprašná bariéra
- ideální velikost pro rodinný dům i zahradu

Lokalita:
- nájezd na D1 cca 2 minuty jízdy
- výborná dostupnost do Brna
- plánovaná zastávka vysokorychlostní železnice (cca 2035) – dojezd na hlavní nádraží v Brně přibližně 19 minut
- lokalita s budoucím růstovým potenciálem.

O Velké Bíteši:
- příjemné menší město s kompletní občanskou vybaveností
- školy, školky, obchody, lékaři i restaurace přímo ve městě
- ideální kombinace klidného bydlení a rychlé dostupnosti do Brna
- okolí nabízí možnosti pro procházky, cyklovýlety i relax v přírodě

Bonus:
- možnost využití projektu rodinného domu 4+kk (dřevostavba)

V případě zájmu mě neváhejte kontaktovat – ráda vám pozemek osobně ukážu.

Parametry pozemku

Cena
4 490 000 Kč /za nemovitost Spočítat hypotéku
Aktualizováno
15. 4. 2026
Adresa
Velká Bíteš
ID
2004
Plocha pozemku
603 m2
Komunikace
Asfaltová
Převod do OV

Kontaktovat makléře

Máte zájem o tento pozemek?

Tímto, v souladu s nařízením Evropského parlamentu a Rady (EU) 2016/679, v platném znění, prohlašuji, že mi je alespoň 16 let a uděluji tak svůj souhlas se zpracováním zadaných údajů (jméno, telefon, e-mail, ip adresa) společnosti B3 Technology, s.r.o., IČ: 07330600, se sídlem Novostavby 126/23, 435 11 Lom (správce dat), za účelem předání dotazu z tohoto formuláře Vámi vybranému inzerentovi a zpětného kontaktování mé osoby. Osobní údaje bude správce zpracovávat manuálně i automaticky přímo prostřednictvím svých zaměstnanců. Informace předané tímto formulářem budou uloženy v databázi správce maximálně po dobu 10 let. Odvolání souhlasu s uložením a zpracováním poskytnutých dat lze e-mailem na info@vitio.cz. V případě podezření na neoprávněné použití Vámi poskytnutých údajů máte právo předat podnět k šetření Úřadu pro ochranu osobních údajů. Více informací
Chystáte se prodat nemovitost?
Pomůžeme Vám!

Inzerát si prohlédlo 0 lidí

Prodejce

Iva Mareška

Iva Mareška

Hlídací pes

Chcete dostávat emailem podobné nabídky prodeje pozemků pro bydlení v Velké Bíteši?

Podobné nemovitosti