Prodej bytu 2+kk, Praha - Krč, Murgašova, 35 m2 (ID: 2640967)

Murgašova, Praha 4

6 270 000 Kč /za nemovitost HYPOTÉKA od 28 023 Kč /za měsíc

(včetně všech poplatků za právní služby, úschovu a návrh na vklad. V případě více zájemců může RK využít pro výběr kupujícího formu aukce.)

Exkluzivní partneři v Praze 4

Stěhovací služby

Výkup a prodej starého nábytku

Informace k bytu

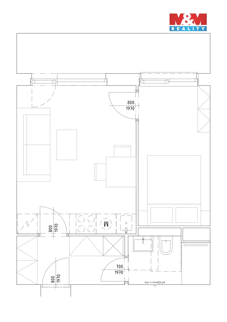
Prodej bytu 2+kk, 35 m² + lodžie 7 m², ul.Murgašova, Praha 4

Nabízíme byt 2+kk o podlahové ploše 34,5 m², který prošel kompletní a pečlivě provedenou rekonstrukcí s odborným dozorem. Dispozice je řešena velmi prakticky: obývací pokoj s kuchyňským koutem, samostatná ložnice, koupelna s toaletou a předsíň. Byt působí vzdušně, funkčně a dává smysl pro každodenní bydlení.
Rekonstrukce zahrnovala nové rozvody elektřiny, vody i odpadu, nové protipožární stěny, kvalitní vinylové podlahy, novou kuchyňskou linku se všemi spotřebiči a moderní koupelnu s walk-in sprchou a toaletou. V bytě je již dopředu počítáno s vestavěnými skříněmi na míru, takže úložné prostory lze vyřešit elegantně a efektivně.
Velkým benefitem je zasklená lodžie o ploše 6,6 m², orientovaná na jih, s příjemným výhledem do parku pod okny. K bytu náleží také komora na patře, která poskytne další praktický úložný prostor.
Potěší i nízké měsíční náklady na bydlení – cca 3.250 Kč. Do budoucna pak hodnotu bytu výrazně podpoří plánovaná stanice metra D – Nové Dvory.

Parametry bytu

Cena
6 270 000 Kč /za nemovitost Spočítat hypotéku
Poznámka k ceně
včetně všech poplatků za právní služby, úschovu a návrh na vklad. V případě více zájemců může RK využít pro výběr kupujícího formu aukce.
Aktualizováno
13. 4. 2026
Adresa
Murgašova, Praha 4
ID
932373
Stavba
Panelová
Stav objektu
Po rekonstrukci
Vybaveno
Ne
Lokalita objektu
Sídliště
Vlastnictví
Osobní
Užitná plocha
35 m2
Lodžie

Kontaktovat makléře

Realitní kancelář

Logo M&M reality

M&M reality

ulice Krakovská 583/9, Praha

Chystáte se prodat nemovitost?
Pomůžeme Vám!

Máte zájem o tento byt?

Tímto, v souladu s nařízením Evropského parlamentu a Rady (EU) 2016/679, v platném znění, prohlašuji, že mi je alespoň 16 let a uděluji tak svůj souhlas se zpracováním zadaných údajů (jméno, telefon, e-mail, ip adresa) společnosti B3 Technology, s.r.o., IČ: 07330600, se sídlem Novostavby 126/23, 435 11 Lom (správce dat), za účelem předání dotazu z tohoto formuláře Vámi vybranému inzerentovi a zpětného kontaktování mé osoby. Osobní údaje bude správce zpracovávat manuálně i automaticky přímo prostřednictvím svých zaměstnanců. Informace předané tímto formulářem budou uloženy v databázi správce maximálně po dobu 10 let. Odvolání souhlasu s uložením a zpracováním poskytnutých dat lze e-mailem na info@vitio.cz. V případě podezření na neoprávněné použití Vámi poskytnutých údajů máte právo předat podnět k šetření Úřadu pro ochranu osobních údajů. Více informací
Chystáte se prodat nemovitost?
Pomůžeme Vám!

Inzerát si prohlédlo 0 lidí

Prodejce

Bc. Tomáš Véle

Bc. Tomáš Véle

Hlídací pes

Chcete dostávat emailem podobné nabídky prodeje bytů 2+kk v Praze 4?

Podobné nemovitosti