Prodej pozemku pro bydlení, Častolovice, 1053 m2 (ID: 2640745)

Častolovice

1 490 000 Kč /za nemovitost HYPOTÉKA od 6 659 Kč /za měsíc

(k jednání, včetně DPH, včetně poplatků, včetně provize, včetně právního servisu, cena k jednání)

Exkluzivní partneři v Častolovicích

Informace k pozemku

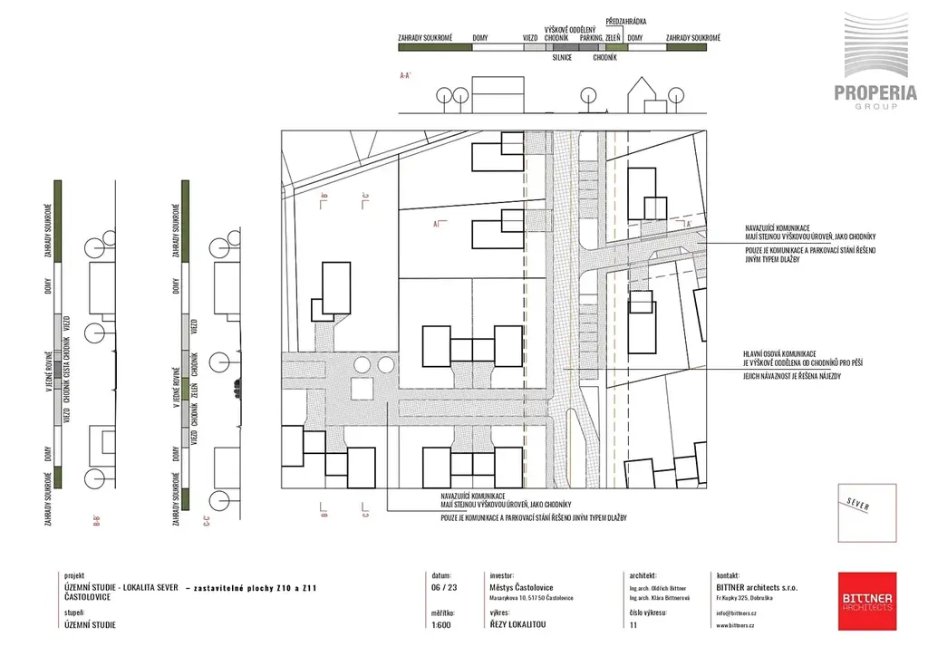
Prodej pozemku k budoucí výstavbě o CP 1053 m2. Pozemek p.č. 786/ 64 se nachází v obci Častolovice u Rychnova nad Kněžnou. V rámci projektu od architektů Bittnerových je navržena podrobná uzemní studie lokality sever - zastavitelné plochy Z11 a Z10 navazující na současnou zastavěnou část obce. Po plánované přeparcelaci vzniknou nově umístěné a tvarované plochy k výstavbě rodinných domů s veškerou infrastrukturou. Celý projekt ráda pošlu mailem. Koupě pozemku je nyní vhodná především jako investice do budoucna, jelikož po realizaci rapidně vzroste tržní cena. Městys se nachází v krásné krajině s rybníky a veškerou dostupností služeb a dopravní sítí do okolí. Více informací přehledně zjistíte z fotek.

Parametry pozemku

Cena
1 490 000 Kč /za nemovitost Spočítat hypotéku
Poznámka k ceně
k jednání, včetně DPH, včetně poplatků, včetně provize, včetně právního servisu, cena k jednání
Aktualizováno
13. 4. 2026
Adresa
Častolovice
ID
02968
Plocha pozemku
1053 m2
Elektřina
230V
Plyn
Plynovod
Odpad
Veřejná kanalizace
Doprava
Vlak, Silnice, Autobus
Voda
Vodovod

Kontaktovat makléře

Máte zájem o tento pozemek?

Tímto, v souladu s nařízením Evropského parlamentu a Rady (EU) 2016/679, v platném znění, prohlašuji, že mi je alespoň 16 let a uděluji tak svůj souhlas se zpracováním zadaných údajů (jméno, telefon, e-mail, ip adresa) společnosti B3 Technology, s.r.o., IČ: 07330600, se sídlem Novostavby 126/23, 435 11 Lom (správce dat), za účelem předání dotazu z tohoto formuláře Vámi vybranému inzerentovi a zpětného kontaktování mé osoby. Osobní údaje bude správce zpracovávat manuálně i automaticky přímo prostřednictvím svých zaměstnanců. Informace předané tímto formulářem budou uloženy v databázi správce maximálně po dobu 10 let. Odvolání souhlasu s uložením a zpracováním poskytnutých dat lze e-mailem na info@vitio.cz. V případě podezření na neoprávněné použití Vámi poskytnutých údajů máte právo předat podnět k šetření Úřadu pro ochranu osobních údajů. Více informací
Chystáte se prodat nemovitost?
Pomůžeme Vám!

Inzerát si prohlédlo 0 lidí

Prodejce

Lenka Kallová

Lenka Kallová

Hlídací pes

Chcete dostávat emailem podobné nabídky prodeje pozemků pro bydlení v Častolovicích?

Podobné nemovitosti