Soccer reality

Prodej bytu 3+1, Brandýs nad Labem-Stará Boleslav - Brandýs nad Labem, Komenského nám., 99 m2

Komenského nám., Brandýs nad Labem

7 190 000 Kč /za nemovitost HYPOTÉKA od 32 135 Kč /za měsíc
Exkluzivní partneři v Brandýse nad Labem

Informace k bytu

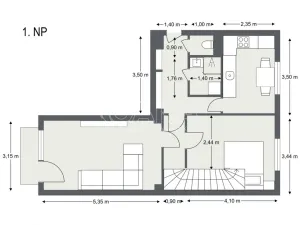
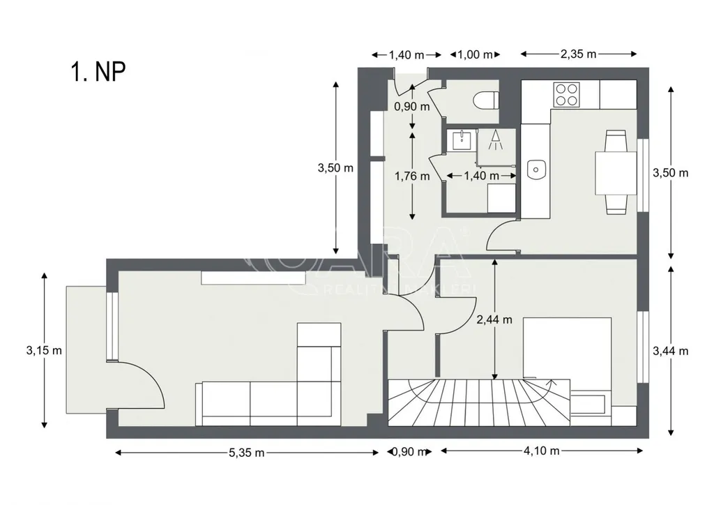
Nabízíme k prodeji mezonetový byt 3 + 1 ve 4. a 5. nadzemním podlaží budovy č.p. 1414, nacházející se v atraktivní lokalitě Brandýsa nad Labem, na ulici Komenského nám. Tento prostorný byt o celkové ploše 113 m (užitná plocha 99 m) je ideální volbou pro rodiny s dětmi, které hledají prostorné a příjemné prostředí pro život.
Byt disponuje částečným vybavením a prošel nedávnou renovací, v rámci které byla instalována plastová okna, nová koupelna a WC. Koupelna je vybavena sprchovým koutem, umyvadlovou skříňkou a pračkou. Okna jsou orientována na jiho-západ, což zajišťuje dostatek přirozeného světla a příjemnou atmosféru v celém bytě. V horním podlaží lze zrekonstruovat z prostorné chodby další místnost ( kancelář, pokoj atd).

V blízkosti nemovitosti se nachází vše, co rodiny potřebují. V dosahu jsou školky, základní školy, střední škola a Gymnázium, což usnadňuje každodenní rutinu rodičům s dětmi. Navíc uspokojíte potřeby vašich ratolestí díky blízkosti několika parků a dětských hřišť, kde si mohou hrát a trávit volný čas v bezpečném prostředí.
Součástí domu je i zahrádka, která slouží nejen jako místo pro odpočinek, ale i prostor pro dětské hry. K bytu náleží 2 prostorné sklepy o ploše 6 m2 a 6 m2.
V bytě najdete dostatek prostoru pro vytvoření dětských pokojů, nebo kanceláře, což ocení jak děti, tak i rodiče.
Parkovat lze na dvoře za domem.

Veškeré služby a občanská vybavenost jsou snadno dostupné, díky dobré dopravní infrastruktuře v oblasti. Skvělá dostupnost vlakového a autobusového spojení zaručuje pohodlné cestování do okolních měst či do Prahy.
Dům je ve velmi dobrém stavu a nabízí příjemné bydlení v klidné lokalitě, což je ideální pro rodinný život. Vytápění je zajištěno plynovým kotlem a komfortní ohřev vody rovněž.

V případě zájmu o prohlídku nás neváhejte kontaktovat.

Parametry bytu

Cena
7 190 000 Kč /za nemovitost Spočítat hypotéku
Aktualizováno
13. 4. 2026
Adresa
Komenského nám., Brandýs nad Labem
ID
15101
Stavba
Smíšená
Stav objektu
Velmi dobrý
Patro
4. z 5
Vybaveno
Částečně
Typ objektu
Patrový
Vlastnictví
Osobní
Užitná plocha
99 m2
Podlahová plocha
113 m2
Třída energetické náročnosti
F - Velmi nehospodárná
Plyn
Plynovod
Odpad
Veřejná kanalizace
Komunikace
Asfaltová
Telekomunikace
Internet
Doprava
Vlak, Silnice, Autobus
Balkon
Sklep
Bezbarierový přístup

Kontaktovat makléře

Máte zájem o tento byt?

Tímto, v souladu s nařízením Evropského parlamentu a Rady (EU) 2016/679, v platném znění, prohlašuji, že mi je alespoň 16 let a uděluji tak svůj souhlas se zpracováním zadaných údajů (jméno, telefon, e-mail, ip adresa) společnosti B3 Technology, s.r.o., IČ: 07330600, se sídlem Novostavby 126/23, 435 11 Lom (správce dat), za účelem předání dotazu z tohoto formuláře Vámi vybranému inzerentovi a zpětného kontaktování mé osoby. Osobní údaje bude správce zpracovávat manuálně i automaticky přímo prostřednictvím svých zaměstnanců. Informace předané tímto formulářem budou uloženy v databázi správce maximálně po dobu 10 let. Odvolání souhlasu s uložením a zpracováním poskytnutých dat lze e-mailem na info@vitio.cz. V případě podezření na neoprávněné použití Vámi poskytnutých údajů máte právo předat podnět k šetření Úřadu pro ochranu osobních údajů. Více informací
Chystáte se prodat nemovitost?
Pomůžeme Vám!

Inzerát si prohlédlo 0 lidí

Prodejce

Adéla Dvořáková

Adéla Dvořáková

Hlídací pes

Chcete dostávat emailem podobné nabídky prodeje bytů 3+1 v Brandýse nad Labem?

Podobné nemovitosti