Prodej bytu 2+1, Praha - Záběhlice, Choratická, 58 m2

Choratická, Praha 4, Záběhlice

8 190 000 Kč /za nemovitost HYPOTÉKA od 36 604 Kč /za měsíc
Exkluzivní partneři v Praze 4

Stěhovací služby

Výkup a prodej starého nábytku

Informace k bytu

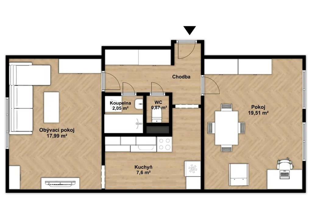
Prostorný byt 2+1 o ploše 58 m and sup2; se sklepem je umístěný ve 4. patře cihlového domu s výtahem v ulici Choratická, Praha 4 - Záběhlice.

Nabízí poctivou a dobře využitelnou dispozici, která dnes u podobně velkých bytů nebývá samozřejmostí. Velkým benefitem je ložnice o velikosti téměř 20 m and sup2; se dvěma okny, kterou lze rozdělit na dva samostatné pokoje. Byt tak může po úpravě fungovat i jako 3+1. Dispozici tvoří vstupní chodba, samostatná kuchyně, obývací pokoj, velká ložnice, koupelna s vanou a oddělené WC.

Obývací pokoj je orientovaný na východ, kuchyně na sever a ložnice na západ. Byt je v udržovaném stavu a představuje velmi dobrý základ jak pro vlastní bydlení, tak pro investici s možností budoucího zhodnocení úpravou dispozice. Součástí prodeje je sklepní kóje v suterénu domu. Praktickým bonusem je rovněž parkování zdarma před domem, neboť v ulici nejsou zavedeny modré zóny. Dům je vybaven výtahem a energetická náročnost budovy odpovídá třídě D.

Záběhlice jsou oblíbenou lokalitou zejména díky své dostupnosti a každodenní praktičnosti. V okolí najdete obchody, služby i zastávky MHD, přičemž kousek od domu se nachází také areál Hamr a Hamerský rybník. Lokalita tak spojuje dobré městské fungování s možností sportu a odpočinku v dosahu.

V případě zájmu o více informací nebo prohlídku mě neváhejte kontaktovat. Budu se na Vás těšit na prohlídce,

Lukáš Petr, Realitní makléř

Parametry bytu

Cena
8 190 000 Kč /za nemovitost Spočítat hypotéku
Aktualizováno
13. 4. 2026
Adresa
Choratická, Praha 4, Záběhlice
ID
20004
Stavba
Cihlová
Stav objektu
Dobrý
Patro
5. z 9
Vybaveno
Ano
Typ objektu
Patrový
Vlastnictví
Osobní
Užitná plocha
58 m2
Podlahová plocha
58 m2
Třída energetické náročnosti
D - Méně úsporná
Elektřina
230V
Plyn
Plynovod
Odpad
Veřejná kanalizace
Topení
Ústřední dálkové
Komunikace
Asfaltová
Telekomunikace
Internet
Doprava
Silnice, MHD, Autobus
Voda
Vodovod
Topné těleso
Radiátory
Sklep
Výtah
Bezbarierový přístup

Kontaktovat makléře

Realitní kancelář

Logo QARA, s.r.o.

QARA, s.r.o.

Šafaříkova 201/17, Praha

Chystáte se prodat nemovitost?
Pomůžeme Vám!

Máte zájem o tento byt?

Tímto, v souladu s nařízením Evropského parlamentu a Rady (EU) 2016/679, v platném znění, prohlašuji, že mi je alespoň 16 let a uděluji tak svůj souhlas se zpracováním zadaných údajů (jméno, telefon, e-mail, ip adresa) společnosti B3 Technology, s.r.o., IČ: 07330600, se sídlem Novostavby 126/23, 435 11 Lom (správce dat), za účelem předání dotazu z tohoto formuláře Vámi vybranému inzerentovi a zpětného kontaktování mé osoby. Osobní údaje bude správce zpracovávat manuálně i automaticky přímo prostřednictvím svých zaměstnanců. Informace předané tímto formulářem budou uloženy v databázi správce maximálně po dobu 10 let. Odvolání souhlasu s uložením a zpracováním poskytnutých dat lze e-mailem na info@vitio.cz. V případě podezření na neoprávněné použití Vámi poskytnutých údajů máte právo předat podnět k šetření Úřadu pro ochranu osobních údajů. Více informací
Chystáte se prodat nemovitost?
Pomůžeme Vám!

Inzerát si prohlédlo 2 lidí

Prodejce

Lukáš Petr

Lukáš Petr

Hlídací pes

Chcete dostávat emailem podobné nabídky prodeje bytů 2+1 v Praze 4?

Podobné nemovitosti