Prodej bytu 3+kk, Mijas, Španělsko, Calle Aralia, 76 m2

Calle Aralia, Mijas

473 500 € /za nemovitost
Exkluzivní partneři

Informace k bytu

Již více než 22 let jsme našim klientům spolehlivým průvodcem světem realit. Přinášíme Vám jedinečnou příležitost vlastnit moderní apartmán v atraktivní lokalitě La Cala de Mijas na Costa del Sol, pouhé 2 minuty chůze od pláže.

Cena jednotek začíná přibližně od 473 500 EUR + 10 % DPH (celková cena cca 520 850 EUR).

Klientům poskytujeme kompletní bezplatný servis a jsme Vaším spolehlivým partnerem po celý proces koupě – od výběru nemovitosti na míru až po její předání. Samozřejmostí je také poprodejní asistence včetně zajištění správy nemovitosti prostřednictvím prověřených, česky mluvících partnerů přímo ve Španělsku. Díky detailní znalosti místního trhu i právního prostředí probíhá celý proces bezpečně, transparentně a bez zbytečných komplikací.

Prohlídky a kompletní servis na místě zajišťujeme ve spolupráci s naším ověřeným lokálním partnerem. Spolupracujeme mimo jiné s Ing. Magdalenou Šedovou, která se podílí na zajištění klientského servisu ve Španělsku.

Jedná se o moderní rezidenční projekt situovaný v jedné z nejvyhledávanějších částí Costa del Sol. Lokalita La Cala de Mijas nabízí ideální kombinaci klidného bydlení u moře a výborné dostupnosti – centrum Fuengiroly je vzdáleno přibližně 10 minut jízdy, pláž Playa Marina je dostupná pěšky během několika minut.
Projekt nabízí moderní apartmány o dispozicích 3+kk, 4+kk a 5+kk (2–4 ložnice dle španělského označení). Velká část jednotek disponuje výhledem na moře. K dispozici jsou také přízemní byty se soukromou zahradou a atraktivní penthousy s prostornými terasami.

Každá jednotka je navržena s důrazem na funkčnost, komfort a maximální využití přirozeného světla. Samozřejmostí jsou prostorné terasy, které rozšiřují obytný prostor a umožňují plně využít středomořské klima po celý rok.

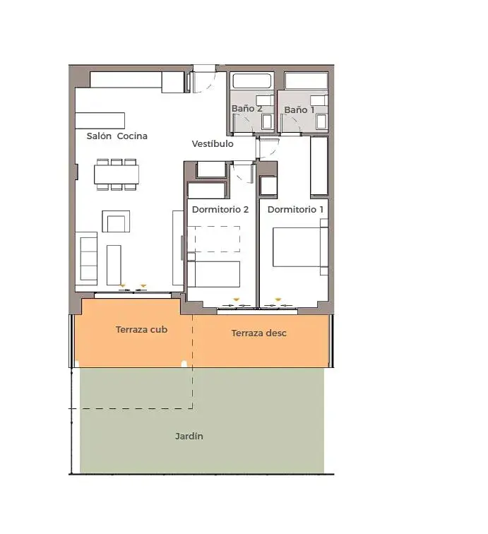
U nabízeného bytu činí užitná plocha cca 76 m², zastavěná plocha (constructed area) cca 103 m² a terasa cca 16,7 m².

Součástí každého apartmánu je parkovací stání a sklepní prostor.
Standard odpovídá moderním nárokům na komfortní a úsporné bydlení. Součástí je klimatizace s funkcí chlazení i vytápění řešená centrálním rozvodem vzduchu. Ohřev vody je zajištěn pomocí úsporného systému aerotermie (tepelné čerpadlo). Byty jsou dále vybaveny systémem řízeného větrání, který zajišťuje zdravé vnitřní prostředí a zároveň minimalizuje energetickou náročnost provozu.

Rezidenční areál je uzavřený a nabízí vysoký standard společných prostor. K dispozici je venkovní bazén, fitness centrum, upravené zahrady a také společenská (gourmet) místnost pro setkávání rezidentů.

Platební podmínky jsou nastaveny následovně: rezervační poplatek 6 000 EUR + DPH, při podpisu kupní smlouvy 30 % + DPH a doplatek 70 % + DPH při dokončení.

Tato nabídka představuje ideální volbu jak pro vlastní bydlení u moře, tak pro investici s potenciálem dlouhodobého zhodnocení. Costa del Sol je dlouhodobě jednou z nejstabilnějších a nejžádanějších lokalit v Evropě, což zajišťuje atraktivitu i do budoucna.

Objevte místo, kde se kvalita života stává standardem a kde se investice do nemovitosti proměňuje v životní styl.

Rádi Vám pomůžeme najít nemovitost, která bude odpovídat Vašim představám – ať už hledáte druhý domov u moře, nebo zajímavou investiční příležitost.

Nabízíme také široké spektrum dalších nemovitostí v oblasti Costa del Sol, které Vám rádi na vyžádání zašleme nebo dle Vašich individuálních kritérií aktivně vyhledáme.

Parametry bytu

Cena
473 500 € /za nemovitost
Aktualizováno
12. 4. 2026
Adresa
Calle Aralia, Mijas
Stavba
Cihlová
Stav objektu
Novostavba
Patro
3. z 4
Vybaveno
Ne
Lokalita objektu
Klidná část obce
Vlastnictví
Osobní
Užitná plocha
76 m2
Zastavěná plocha
103 m2
Třída energetické náročnosti
B - Velmi úsporná
Elektřina
230V
Odpad
Veřejná kanalizace
Komunikace
Asfaltová
Telekomunikace
Telefon, Internet, Kabelová televize
Doprava
Dálnice, Silnice, MHD, Autobus
Voda
Vodovod
Zdroj topení
Tepelné čerpadlo
Zdroj teplé vody
Tepelné čerpadlo
Garáž
Sklep
Terasa
Výtah
Bazén

Kontaktovat makléře

Máte zájem o tento byt?

Tímto, v souladu s nařízením Evropského parlamentu a Rady (EU) 2016/679, v platném znění, prohlašuji, že mi je alespoň 16 let a uděluji tak svůj souhlas se zpracováním zadaných údajů (jméno, telefon, e-mail, ip adresa) společnosti B3 Technology, s.r.o., IČ: 07330600, se sídlem Novostavby 126/23, 435 11 Lom (správce dat), za účelem předání dotazu z tohoto formuláře Vámi vybranému inzerentovi a zpětného kontaktování mé osoby. Osobní údaje bude správce zpracovávat manuálně i automaticky přímo prostřednictvím svých zaměstnanců. Informace předané tímto formulářem budou uloženy v databázi správce maximálně po dobu 10 let. Odvolání souhlasu s uložením a zpracováním poskytnutých dat lze e-mailem na info@vitio.cz. V případě podezření na neoprávněné použití Vámi poskytnutých údajů máte právo předat podnět k šetření Úřadu pro ochranu osobních údajů. Více informací
Chystáte se prodat nemovitost?
Pomůžeme Vám!

Inzerát si prohlédlo 1 lidí

Prodejce

Ing. Petr Strnad

Ing. Petr Strnad

Hlídací pes

Chcete dostávat emailem podobné nabídky prodeje bytů 3+kk?

Podobné nemovitosti