Prodej bytu 2+kk, Povljana, Chorvatsko, 55 m2 (ID: 2638998)

Povljana

4 740 750 Kč /za nemovitost
Exkluzivní partneři

Informace k bytu

Chorvatsko-Nemovitosti.cz nabízí moderní apartmán v novostavbě v oblíbené lokalitě Povljana na ostrově Pag. Byt se nachází v přízemí domu s výtahem a je ideální jak pro vlastní rekreaci, tak jako investice na pronájem.

Apartmán je světlý, prakticky řešený a disponuje terasou pro venkovní posezení. K jednotce náleží vlastní parkovací místo a sklep, což výrazně zvyšuje komfort užívání. Lokalita nabízí klidné prostředí a zároveň dobrou dostupnost k moři i do centra obce.

Nejbližší pláže v Povljaně patří mezi nejvyhledávanější na ostrově – kombinace písečných i oblázkových pláží, čisté vody a pozvolného vstupu do moře je ideální i pro rodiny. V oblasti se nachází i známé léčivé peloidní bahno, využívané při problémech s klouby a pokožkou.

Podrobně:
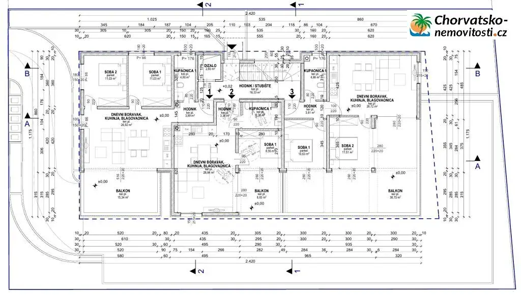
-Prodej apartmánu o velikosti cca 55 m²,

dispozice:
-vstupní chodba
-obývací pokoj s kuchyní a jídelnou
-samostatná ložnice
-koupelna
-terasa (~9 m²)

Další součásti:
-parkovací místo (~11 m²)
-sklep (~2,3 m²)

Lokalita
-cca 400 m od moře a pláže
-cca 400 m do centra obce
-klidná část Povljany
-Povljana leží na jihovýchodě ostrova Pag a je známá především díky:
-krásným písečným plážím (vhodné pro děti)
-lokalitě Mali Dubrovnik (oblázková pláž)
-dostupnosti restaurací, služeb a zázemí pro turisty

Ostrov Pag patří mezi nejdostupnější chorvatské destinace:
-dojezd z Brna cca 750 km
-příjezd možný po mostě (zdarma) i trajektem
-kompletní infrastruktura – obchody, restaurace, čerpací stanice

Pag je známý:
-výrobou pažského sýra
-tradiční krajkou
-výrobou soli
-příznivým klimatem pro letní sezónu

Sítě:
-voda
-elektřina
-kanalizace

Vytápění a chlazení:
-klimatizace

Další:
-výtah v budově
-parkování
-sklep

Dokumentace:
-stavební povolení
-kolaudace
-energetický certifikát (A+)

Info
-vzdálenost od moře: cca 400 m
-parkování: ano
-občanská vybavenost v docházkové vzdálenosti

Parametry bytu

Cena
4 740 750 Kč /za nemovitost
Aktualizováno
12. 4. 2026
Adresa
Povljana
ID
592
Stavba
Smíšená
Stav objektu
Novostavba
Patro
1. z 4
Vlastnictví
Osobní
Užitná plocha
55 m2
Třída energetické náročnosti
A - Mimořádně úsporná
Elektřina
230V
Odpad
Veřejná kanalizace
Komunikace
Asfaltová, Štěrková
Telekomunikace
Telefon, Internet, Kabelová televize
Doprava
Silnice, MHD, Autobus
Voda
Vodovod
Sklep
Terasa
Výtah
Bezbarierový přístup
Parkování

Kontaktovat makléře

Máte zájem o tento byt?

Tímto, v souladu s nařízením Evropského parlamentu a Rady (EU) 2016/679, v platném znění, prohlašuji, že mi je alespoň 16 let a uděluji tak svůj souhlas se zpracováním zadaných údajů (jméno, telefon, e-mail, ip adresa) společnosti B3 Technology, s.r.o., IČ: 07330600, se sídlem Novostavby 126/23, 435 11 Lom (správce dat), za účelem předání dotazu z tohoto formuláře Vámi vybranému inzerentovi a zpětného kontaktování mé osoby. Osobní údaje bude správce zpracovávat manuálně i automaticky přímo prostřednictvím svých zaměstnanců. Informace předané tímto formulářem budou uloženy v databázi správce maximálně po dobu 10 let. Odvolání souhlasu s uložením a zpracováním poskytnutých dat lze e-mailem na info@vitio.cz. V případě podezření na neoprávněné použití Vámi poskytnutých údajů máte právo předat podnět k šetření Úřadu pro ochranu osobních údajů. Více informací
Chystáte se prodat nemovitost?
Pomůžeme Vám!

Inzerát si prohlédlo 0 lidí

Prodejce

Monika Adamíková

Monika Adamíková

Hlídací pes

Chcete dostávat emailem podobné nabídky prodeje bytů 2+kk?

Podobné nemovitosti