Prodej bytu 2+kk, Čeladná, 68 m2

Čeladná

Rezervováno
6 180 000 Kč /za nemovitost HYPOTÉKA od 27 621 Kč /za měsíc

(včetně advokátní úschovy, advokátního servisu, provize RK)

Exkluzivní partneři v Čeladné

Pojištění a finance

Informace k bytu

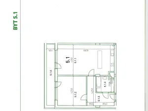
BYT REZERVOVÁN ve velice lukrativní části obce Čeladná v lázeňské oblasti v apartmánovém domě u lázeňského parku v resortu Lara SPA jeden z lukrativních bytů 2+kk cihlový s terasou /9,5m2/ a výměrou bytu 68,6m2 v 5 pátém podlaží s výtahem. Bonusem je jedno garážové stání v podzemí garážové haly s číslem 20, dále k bytové jednotce náleží sklepní box. Dispozičně pokoj + kuchyňský kout 35,97m2, druhý pokoj 16,63m2, vstupní chodba 9,81, koupelna s Wc 5,65m2. Terasa 9,5 m2, k bytu náleží sklepní box 2,70m2Takový byt v této lokalitě se nabízí jen výjímečně, komfort bydlení zpříjemňuje přímo v tomto bytovém domě v přízemí bazén, restaurace, obchod potraviny, různé masáže, atd.. Byt je nově vymalován, jsou natřená venkovní okna, v ložnici je zabudována vestavná skříň, jsou instalované nové okenní žaluzie, kuchyň, která byla vyrobena na zakázku, koupelna na zakázku, podlahy a dveře byly nahrazeny vyšší kvalitou. Kuchyně je vybavena se 6. židlemi, spotřebiči zn. Miele, vestavná myčka nádobí, el. trouba, lednička, sklokeramická varná deska, pračka, sušička, mikrovlnná trouba, dále je v bytě 1 postel, 2 vestavné skříně, sekretář, konferenční stolek, stolek pod televizi, dvě volně stojící lampy. Ohledně poplatků se hradí správci domu záloha na vodu, vytápění , elektřina spol. prostor, úklid společných prostor, fond oprav, ochrana majetku, TV, internet atd…Vytápění domu zajišťuje kotelna v 1.PP s plynovým kotlem pro všechny jednotky včetně plynového rychloohřívače vody se zásobníkem teplé vody.Více foto nebylo pořízeno z důvodu současného nájmu bytu a umístění osobních věcí nájemce. Volný od 10.07.2026 bude byt připraven k nastěhování. V případě zájmu o prohlídku po domluvě vždy předem. Výhodná investice k budoucímu nájmu se kterým Vám rádi bezplatně pomůžeme. Obec Čeladná nabízí veškerou občanskou vybavenost, krásnou okolní přírodu, mnoho aktivit jak sportovních tak kulturních jak pro dospělé tak děti.

Parametry bytu

Stav
Rezervováno
Cena
6 180 000 Kč /za nemovitost Spočítat hypotéku
Poznámka k ceně
včetně advokátní úschovy, advokátního servisu, provize RK
Aktualizováno
28. 5. 2026
Adresa
Čeladná
ID
1008
Stavba
Cihlová
Stav objektu
Velmi dobrý
Patro
5.
Vybaveno
Ano
Lokalita objektu
Rušná část obce
Vlastnictví
Osobní
Užitná plocha
68 m2
Podlahová plocha
96 m2
Třída energetické náročnosti
G - Mimořádně nehospodárná
Elektřina
230V
Plyn
Plynovod
Odpad
Veřejná kanalizace
Komunikace
Asfaltová
Telekomunikace
Internet
Doprava
Silnice, Autobus
Voda
Vodovod
Zdroj topení
Centrální dálkové
Zdroj teplé vody
Centrální dálkový ohřev
Sklep
Terasa
Výtah
Parkování

Kontaktovat makléře

Máte zájem o tento byt?

Tímto, v souladu s nařízením Evropského parlamentu a Rady (EU) 2016/679, v platném znění, prohlašuji, že mi je alespoň 16 let a uděluji tak svůj souhlas se zpracováním zadaných údajů (jméno, telefon, e-mail, ip adresa) společnosti B3 Technology, s.r.o., IČ: 07330600, se sídlem Novostavby 126/23, 435 11 Lom (správce dat), za účelem předání dotazu z tohoto formuláře Vámi vybranému inzerentovi a zpětného kontaktování mé osoby. Osobní údaje bude správce zpracovávat manuálně i automaticky přímo prostřednictvím svých zaměstnanců. Informace předané tímto formulářem budou uloženy v databázi správce maximálně po dobu 10 let. Odvolání souhlasu s uložením a zpracováním poskytnutých dat lze e-mailem na info@vitio.cz. V případě podezření na neoprávněné použití Vámi poskytnutých údajů máte právo předat podnět k šetření Úřadu pro ochranu osobních údajů. Více informací
Chystáte se prodat nemovitost?
Pomůžeme Vám!
Theleadway banner

Inzerát si prohlédlo 4 lidí

Prodejce

Rostislav Mužík

Rostislav Mužík

Hlídací pes

Chcete dostávat emailem podobné nabídky prodeje bytů 2+kk v Čeladné?

Podobné nemovitosti