Prodej bytu 3+kk, Praha - Záběhlice, Hledíková, 54 m2

Hledíková, Praha, Záběhlice

Cena na vyžádání /za nemovitost Získejte výhodnou HYPOTÉKU

(dohodou, cena včetně provize a právního servisu, včetně poplatků, včetně provize, včetně právního servisu)

Exkluzivní partneři v Praze 10

Stěhovací služby

Výkup a prodej starého nábytku

Informace k bytu

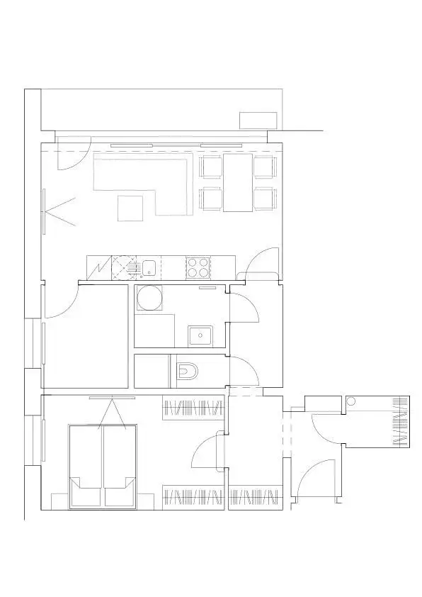
Nabízíme k prodeji světlý a kompletně zrekonstruovaný byt o dispozici 3+kk (54 m²) s prostornou lodžií (7 m²), situovaný v posledním 13. patře s krásným výhledem na oblast Hostivaře a okolní zeleň.

Byt prošel kompletní rekonstrukcí, díky které nabízí moderní a komfortní bydlení.

Hlavní přednosti bytu

- kompletní rekonstrukce včetně nových oken (plastová trojskla)
- klimatizace pro maximální komfort
- podlahové vytápění + radiátory
- nové bezpečnostní a protipožární vstupní dveře
- Walk - in sprchový kout
- lodžie 7 m² s otevřeným výhledem
- byt bez kuchyňské linky – možnost realizace dle vlastních představ

Dispozice a vybavení

- obývací pokoj s kuchyňským koutem 17,55 m²
- dvě samostatné pokoje 12,3 m² a 6 m²
- koupelna se sprchovým koutem, umyvadlem a přípravou na pračku 2,9 m²
- samostatné WC 1 m²
- komora v bytě 2 m²
- dostatek úložných prostor na chodbě 8,8 m²

Lokalita - Hostivař

- výborná dopravní dostupnost (tramvaj i autobus v blízkosti domu)
- nákupní centrum Vivo! Hostivař přes ulici
- ideální lokalita pro sport a volný čas (cyklostezky, běh)
- Hostivařská přehrada je v blízkosti - vhodné místo pro relax i sport
- rychlé napojení na výpadovky směr Hradec Králové a Mladá Boleslav

Parkování je možné přímo před domem.

Ideální volba pro vlastní bydlení i jako investice k pronájmu.

Doporučuji prohlídku

Parametry bytu

Cena
Cena na vyžádání Spočítat hypotéku
Poznámka k ceně
dohodou, cena včetně provize a právního servisu, včetně poplatků, včetně provize, včetně právního servisu
Aktualizováno
9. 4. 2026
Adresa
Hledíková, Praha, Záběhlice
ID
1160
Stavba
Panelová
Stav objektu
Velmi dobrý
Patro
12. z 12
Vybaveno
Ne
Lokalita objektu
Sídliště
Vlastnictví
Osobní
Užitná plocha
54 m2
Třída energetické náročnosti
D - Méně úsporná
Elektřina
230V
Plyn
Plynovod
Odpad
Veřejná kanalizace
Komunikace
Betonová, Asfaltová
Telekomunikace
Internet, Kabelová televize, Kabelové rozvody
Doprava
Silnice, MHD
Voda
Vodovod
Lodžie
Výtah
Bezbarierový přístup

Kontaktovat makléře

Máte zájem o tento byt?

Tímto, v souladu s nařízením Evropského parlamentu a Rady (EU) 2016/679, v platném znění, prohlašuji, že mi je alespoň 16 let a uděluji tak svůj souhlas se zpracováním zadaných údajů (jméno, telefon, e-mail, ip adresa) společnosti B3 Technology, s.r.o., IČ: 07330600, se sídlem Novostavby 126/23, 435 11 Lom (správce dat), za účelem předání dotazu z tohoto formuláře Vámi vybranému inzerentovi a zpětného kontaktování mé osoby. Osobní údaje bude správce zpracovávat manuálně i automaticky přímo prostřednictvím svých zaměstnanců. Informace předané tímto formulářem budou uloženy v databázi správce maximálně po dobu 10 let. Odvolání souhlasu s uložením a zpracováním poskytnutých dat lze e-mailem na info@vitio.cz. V případě podezření na neoprávněné použití Vámi poskytnutých údajů máte právo předat podnět k šetření Úřadu pro ochranu osobních údajů. Více informací
Chystáte se prodat nemovitost?
Pomůžeme Vám!

Inzerát si prohlédlo 0 lidí

Prodejce

Mgr. Radka Váňová

Mgr. Radka Váňová

Hlídací pes

Chcete dostávat emailem podobné nabídky prodeje bytů 3+kk v Praze 10?

Podobné nemovitosti