Prodej bytu 4+kk, Ostrava, 29. dubna, 75 m2 (ID: 2630029)

29. dubna, Ostrava, Výškovice

5 730 000 Kč /za nemovitost HYPOTÉKA od 25 610 Kč /za měsíc

(Modelová kalkulace hypotéky: 80% LTV, splátka od 22.602,- Kč, úroková sazba od 3,99%, splatnost 30 let.)

Exkluzivní partneři v Ostravě

Informace k bytu

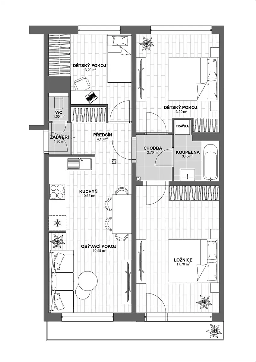
V přímém zastoupení majitele Vám nabízíme ke koupi byt o velikosti 4 + kk, který se nachází na adrese ulice 29. dubna v Ostravě-Výškovicích. Bytová jednotka v osobním vlastnictvím se nachází ve 2. NP 11 podlažního domu s výtahem. Celková plocha bytu činí 81 m² a užitná plocha dosahuje 75 m².

Tento byt byl zdůrazněn vkusnou rekonstrukcí, která přinesla nadčasový design a moderní prvky do každodenního bydlení. V bytě jsou nové elektrické rozvody, zděné jádro a plovoucí podlahy, což zaručuje komfort a estetiku interiéru. Nové interiérové dveře s obložkami a podhledy s bodovými světly dále umocňují příjemnou atmosféru tohoto bydlení. K dispozici stavební dokumentace.

Koupelna je velkorysá a disponuje vanou, místem pro pračku a sušičku, což je jistě velkým přínosem pro moderní rodiny. V koupelně požité velkoformátové obklady 120x60. Toaleta oddělena.

Kuchyně je vybavena linkou na míru od stolaře a bohatou nabídkou vestavěných spotřebičů, mezi které patří myčka nádobí, elektrická varná deska, vestavěná elektrická trouba, mikrovlnná trouba a lednice s mrazákem, všechny ve značce Whirlpool, což zaručuje vysokou kvalitu a spolehlivost.

Byt se pyšní také vestavěnými skříněmi na chodbě a v pokoji, které poskytují dostatek úložného prostoru. Neprůchozí pokoje zajišťují klid a soukromí. Orientace bytu na dvě světové strany přináší dostatek přirozeného světla během celého dne.

Další předností tohoto bytu je balkón, který je přes dva pokoje dlouhý 7,2 m a nabízí ideální místo pro odpočinek a relaxaci.

Energetický štítek (PENB) nebyl dodán, proto je v souladu s §7a odst. 2 zákona č. 406/2000 Sb., o hospodaření energií, ve znění pozdějších předpisů, uváděno energetická třída "G" - mimořádně nehospodárná.

Bytová jednotka je umístěna v panelovém domě po revitalizaci. V domě nové rozvody vody a odpadů (plast), realizováno v lednu 2025. Vyhledávaná lokalita s dobrou dostupností všech služeb a občanské vybavenosti.

Uvedená cena je včetně provize a právního servisu.
Náš tým finančních poradců Vám vyřeší otázku financování.
V případě zájmu o prohlídku nás neváhejte kontaktovat.

Parametry bytu

Cena
5 730 000 Kč /za nemovitost Spočítat hypotéku
Poznámka k ceně
Modelová kalkulace hypotéky: 80% LTV, splátka od 22.602,- Kč, úroková sazba od 3,99%, splatnost 30 let.
Náklady na bydlení
4 340
Aktualizováno
6. 4. 2026
Adresa
29. dubna, Ostrava, Výškovice
ID
0750
Stavba
Panelová
Stav objektu
Po rekonstrukci
Patro
2. z 11
Vybaveno
Částečně
Lokalita objektu
Klidná část obce
Vlastnictví
Osobní
Užitná plocha
75 m2
Podlahová plocha
81 m2
Třída energetické náročnosti
C - Úsporná
Elektřina
230V
Odpad
Veřejná kanalizace
Komunikace
Asfaltová
Telekomunikace
Internet
Doprava
MHD
Voda
Vodovod
Topné těleso
Radiátory
Zdroj topení
Ústřední dálkové
Balkon
Sklep
Výtah

Kontaktovat makléře

Realitní kancelář

MINT reality s.r.o.

náměstí Antonie Bejdové 1810/10, Ostrava

Chystáte se prodat nemovitost?
Pomůžeme Vám!

Máte zájem o tento byt?

Tímto, v souladu s nařízením Evropského parlamentu a Rady (EU) 2016/679, v platném znění, prohlašuji, že mi je alespoň 16 let a uděluji tak svůj souhlas se zpracováním zadaných údajů (jméno, telefon, e-mail, ip adresa) společnosti B3 Technology, s.r.o., IČ: 07330600, se sídlem Novostavby 126/23, 435 11 Lom (správce dat), za účelem předání dotazu z tohoto formuláře Vámi vybranému inzerentovi a zpětného kontaktování mé osoby. Osobní údaje bude správce zpracovávat manuálně i automaticky přímo prostřednictvím svých zaměstnanců. Informace předané tímto formulářem budou uloženy v databázi správce maximálně po dobu 10 let. Odvolání souhlasu s uložením a zpracováním poskytnutých dat lze e-mailem na info@vitio.cz. V případě podezření na neoprávněné použití Vámi poskytnutých údajů máte právo předat podnět k šetření Úřadu pro ochranu osobních údajů. Více informací
Chystáte se prodat nemovitost?
Pomůžeme Vám!

Inzerát si prohlédlo 0 lidí

Prodejce

Radim Vrána

Radim Vrána

Hlídací pes

Chcete dostávat emailem podobné nabídky prodeje bytů 4+kk v Ostravě?

Podobné nemovitosti