Prodej atypického bytu, Dolní Podluží, 246 m2 (ID: 2626474)

Dolní Podluží

900 000 Kč /za nemovitost HYPOTÉKA od 4 022 Kč /za měsíc

(včetně provize, včetně právního servisu, cena k jednání)

Exkluzivní partneři v Dolním Podluží

Okna a dveře

Pojištění a finance

Informace k bytu

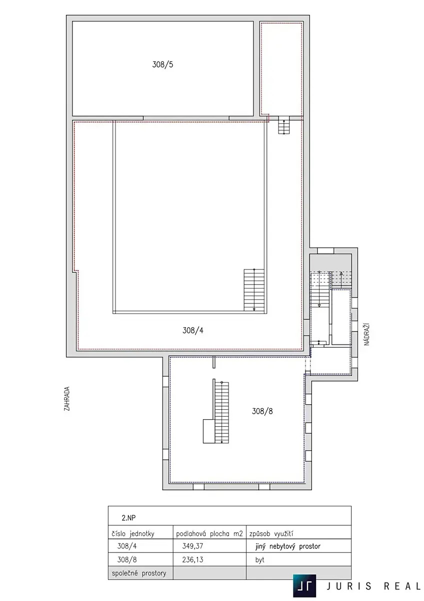
Nabízíme k prodeji atypickou jednotku o výměře 246 m². Jednotka se nachází v několika podlažích a je vhodná pro vestavbu několika bytových jednotek(3-5 bytů). Jde vyloženě o hrubou stavbu, vše je potřeba vybudovat. Objekt je napojen na vodovod a kanalizaci, v ulici se nachází i přípojka plynu. V areálu je možné přikoupit skladovací prostory, restauraci, kanceláře, sklep nebo garáž. Zajistíme financování, nákup možný i na splátky. Cena k jednání. Je možná také výměna za jinou nemovitost.

Parametry bytu

Cena
900 000 Kč /za nemovitost Spočítat hypotéku
Poznámka k ceně
včetně provize, včetně právního servisu, cena k jednání
Aktualizováno
31. 3. 2026
Adresa
Dolní Podluží
ID
100957
Stavba
Cihlová
Stav objektu
Dobrý
Patro
3. z 4
Vybaveno
Ne
Lokalita objektu
Centrum obce
Vlastnictví
Osobní
Užitná plocha
246 m2
Třída energetické náročnosti
G - Mimořádně nehospodárná
Elektřina
230V, 400V
Odpad
Veřejná kanalizace
Doprava
Vlak
Voda
Místní zdroj vody
Výtah
Parkování

Kontaktovat makléře

Máte zájem o tento byt?

Tímto, v souladu s nařízením Evropského parlamentu a Rady (EU) 2016/679, v platném znění, prohlašuji, že mi je alespoň 16 let a uděluji tak svůj souhlas se zpracováním zadaných údajů (jméno, telefon, e-mail, ip adresa) společnosti B3 Technology, s.r.o., IČ: 07330600, se sídlem Novostavby 126/23, 435 11 Lom (správce dat), za účelem předání dotazu z tohoto formuláře Vámi vybranému inzerentovi a zpětného kontaktování mé osoby. Osobní údaje bude správce zpracovávat manuálně i automaticky přímo prostřednictvím svých zaměstnanců. Informace předané tímto formulářem budou uloženy v databázi správce maximálně po dobu 10 let. Odvolání souhlasu s uložením a zpracováním poskytnutých dat lze e-mailem na info@vitio.cz. V případě podezření na neoprávněné použití Vámi poskytnutých údajů máte právo předat podnět k šetření Úřadu pro ochranu osobních údajů. Více informací
Chystáte se prodat nemovitost?
Pomůžeme Vám!
Theleadway banner

Inzerát si prohlédlo 4 lidí

Prodejce

Martin Vlček

Martin Vlček

Hlídací pes

Chcete dostávat emailem podobné nabídky prodeje atypických bytů v Dolním Podluží?