Pronájem kanceláře, Praha - Nové Město, Vodičkova, 377 m2 (ID: 2624586)

Vodičkova, Praha, Nové Město

17 € /za metr čtvereční / měsíc Získejte výhodnou HYPOTÉKU

(+ služby 150,- Kč/m²/měsíc + parking 230 EUR)

Exkluzivní partneři v Praze 1

Stěhovací služby

Výkup a prodej starého nábytku

Informace k nemovitosti

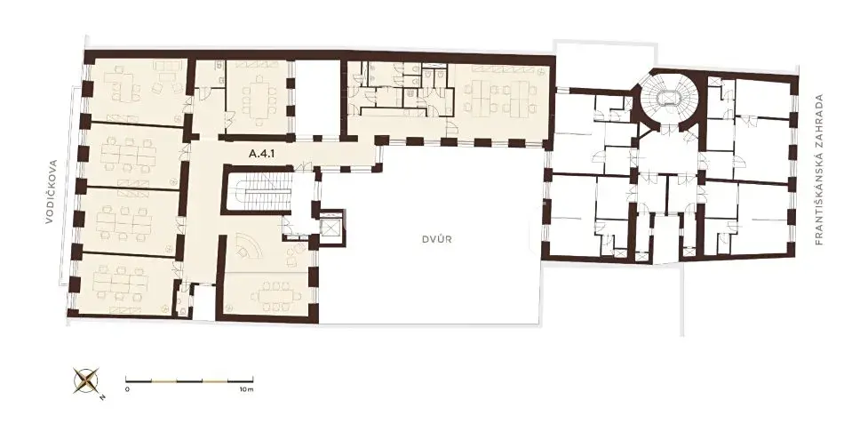
K pronájmu nabízíme kancelářské prostory o celkově výměře 399,5 m² v historické a přitom velmi moderní budově Residence Vodičkova 33 (dříve známé jako Vítkův dům). Budova prošla kompletní rekonstrukcí a nyní nabízí reprezentativní komerční prostory, které harmonicky spojují moderní technologie s jedinečným historickým kouzlem. Tato kombinace vytváří ideální pracovní prostředí v jedné z nejprestižnějších lokalit Prahy.

Kanceláře jsou navrženy s důrazem na flexibilitu – umožňují libovolné členění na uzavřené místnosti i otevřený open-space koncept. Každá jednotka disponuje vlastním sociálním zázemím, kuchyňkou a samostatnou serverovnou, což zajišťuje vysoký komfort při práci. V historické části budovy (2.–6. patro) jsou zachovány původní architektonické prvky, přičemž nenosné příčky lze snadno upravit dle individuálních požadavků nájemce. Vzniká tak inspirativní prostředí, které elegantně propojuje historickou atmosféru s nejmodernějšími prvky.

Budova je mimořádně vhodná pro firmy, které hledají prestižní a reprezentativní adresu v samém centru Prahy. Vysoký standard dokončení společně s možností individuálního přizpůsobení prostor nabízí široké využití.

V budově najdete:
vlastní restauraci a kavárnu
recepci a ostrahu 24/7
bezpečnostní kamerový systém
přístup do kanceláří pomocí karet a čipů
repliky původních dřevěných špaletových oken s dvojitým izolačním zasklením
samostatně regulovatelné vytápění a přípravu teplé vody na každém patře
klimatizovanou serverovnu
kompletně rozvedenou strukturovanou datovou kabeláž po celém patře

Parametry nemovitosti

Cena
17 € /za metr čtvereční / měsíc
Poznámka k ceně
+ služby 150,- Kč/m²/měsíc + parking 230 EUR
Aktualizováno
30. 3. 2026
Adresa
Vodičkova, Praha, Nové Město
ID
N7892
Stavba
Smíšená
Stav objektu
Velmi dobrý
Patro
3.
Vybaveno
Ano
Lokalita objektu
Centrum obce
Užitná plocha
377 m2
Podlahová plocha
400 m2
Třída energetické náročnosti
G - Mimořádně nehospodárná
Výtah

Kontaktovat makléře

Máte zájem o tuto nemovistost?

Tímto, v souladu s nařízením Evropského parlamentu a Rady (EU) 2016/679, v platném znění, prohlašuji, že mi je alespoň 16 let a uděluji tak svůj souhlas se zpracováním zadaných údajů (jméno, telefon, e-mail, ip adresa) společnosti B3 Technology, s.r.o., IČ: 07330600, se sídlem Novostavby 126/23, 435 11 Lom (správce dat), za účelem předání dotazu z tohoto formuláře Vámi vybranému inzerentovi a zpětného kontaktování mé osoby. Osobní údaje bude správce zpracovávat manuálně i automaticky přímo prostřednictvím svých zaměstnanců. Informace předané tímto formulářem budou uloženy v databázi správce maximálně po dobu 10 let. Odvolání souhlasu s uložením a zpracováním poskytnutých dat lze e-mailem na info@vitio.cz. V případě podezření na neoprávněné použití Vámi poskytnutých údajů máte právo předat podnět k šetření Úřadu pro ochranu osobních údajů. Více informací
Chystáte se prodat nemovitost?
Pomůžeme Vám!

Inzerát si prohlédlo 0 lidí

Prodejce

Filip Sloupenský

Filip Sloupenský

Hlídací pes

Chcete dostávat emailem podobné nabídky pronájmu kanceláří v Praze 1?

Podobné nemovitosti