Prodej zemědělského objektu, Nová Ves, 375 m2

Nová Ves u Albrechtic

24 990 000 Kč /za nemovitost HYPOTÉKA od 111 690 Kč /za měsíc
Exkluzivní partneři v Nové Vsi

Pojištění a finance

Informace k nemovitosti

Prodej jedinečného ranče - farmy na pozemku 73 573 m² – ideální pro chov koní a ranč

Nová Ves – Žďárský rybník, u Týniště nad Orlicí

Výhradně nabízíme naprosto výjimečný pozemek o rozloze 73 573 m² (7,36 ha), který je ideální nejen pro výstavbu rodinného domu, ale především pro chov koní, vybudování ranče nebo vlastní farmy.

Pozemek se nachází na unikátním místě – ze tří stran obklopen lesem, s přímým výhledem na Žďárský rybník. Nabízí absolutní klid, soukromí a prostor, který je dnes na trhu prakticky nedostupný.

Součástí nabídky je platné stavební povolení na rodinný dům s hospodářským zázemím – můžete ihned stavět.

Klíčové benefity

73 573 m² souvislého pozemku – ideální pro pastviny a výběhy
Perfektní pro koně, ranč nebo farmu
Soukromí bez sousedů, klid u lesa a vody
Připraveno k výstavbě – stavební povolení + projekt v ceně
Studna, elektřina, ČOV již na pozemku
Výborná dostupnost – Týniště nad Orlicí 4 km, dálnice D11 cca 15 km
Ideální pro chov koní

Tento pozemek nabízí podmínky, které majitelé koní hledají:

Rozlehlé plochy pro pastvu a výběhy
Možnost vybudování stájí, přístřešků i jízdárny
Okolní krajina ideální pro vyjížďky v přírodě
Klidné prostředí bez rušivých vlivů
Kombinace lesa, vody a luk – přirozené a zdravé prostředí pro zvířata

Stavební část

Z celkové plochy je cca 3 500 m² určeno pro výstavbu
(územní plán – smíšené obytné venkovské)

Platné stavební povolení zahrnuje:

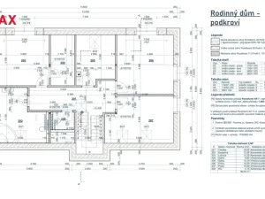
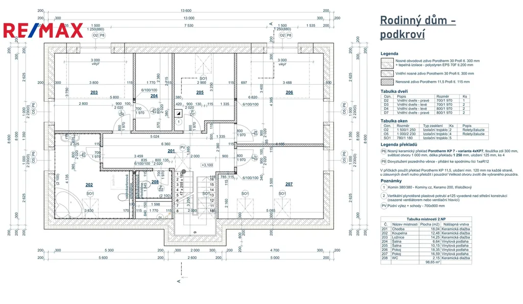
rodinný dům 5+KK (194,5 m²)
krytou terasu a stání
hospodářský objekt (180 m²)
kompletní infrastrukturu
Energetická náročnost: PENB A – mimořádně úsporné
Vytápění: tepelné čerpadlo vzduch–voda

Místo, které dává smysl

Pozemek je skrytý před okolním světem a nabízí kombinaci klidu, prostoru a přírody, kterou dnes najdete jen zřídka.

Ideální pro:

soukromý ranč
chov koní
menší farmu (např. ovce, hospodářství)
nebo jako dlouhodobou investici

Dle územního plánu jsou možné změny projektu, jeho rozšíření i zcela nový projekt podle Vašich představ
Závěrem, pokud hledáte místo, kde můžete žít, podnikat i mít zvířata v jednom, tohle je přesně ono.

Rád vás osobně provedu po pozemku v Nové Vsi.
Prodávající si vyhrazuje právo vybrat kupujícího na základě jím zvolených kritérií.

Parametry nemovitosti

Cena
24 990 000 Kč /za nemovitost Spočítat hypotéku
Aktualizováno
11. 5. 2026
Adresa
Nová Ves u Albrechtic
ID
305-NP00928
Stavba
Cihlová
Stav objektu
Projekt
Vybaveno
Ne
Typ objektu
Patrový
Druh objektu
Samostatný
Lokalita objektu
Samota
Užitná plocha
375 m2
Zastavěná plocha
306 m2
Plocha pozemku
73573 m2
Plocha zahrady
73573 m2
Ukazatel energetické náročnosti
53 kWh/m2 za rok
Elektřina
230V, 400V
Odpad
ČOV pro celý objekt
Voda
Místní zdroj vody, Studna
Převod do OV
Parkování

Kontaktovat makléře

Realitní kancelář

RE/MAX Infinity

Masarykovo náměstí 392/14, Hradec Králové

Chystáte se prodat nemovitost?
Pomůžeme Vám!

Máte zájem o tuto nemovistost?

Tímto, v souladu s nařízením Evropského parlamentu a Rady (EU) 2016/679, v platném znění, prohlašuji, že mi je alespoň 16 let a uděluji tak svůj souhlas se zpracováním zadaných údajů (jméno, telefon, e-mail, ip adresa) společnosti B3 Technology, s.r.o., IČ: 07330600, se sídlem Novostavby 126/23, 435 11 Lom (správce dat), za účelem předání dotazu z tohoto formuláře Vámi vybranému inzerentovi a zpětného kontaktování mé osoby. Osobní údaje bude správce zpracovávat manuálně i automaticky přímo prostřednictvím svých zaměstnanců. Informace předané tímto formulářem budou uloženy v databázi správce maximálně po dobu 10 let. Odvolání souhlasu s uložením a zpracováním poskytnutých dat lze e-mailem na info@vitio.cz. V případě podezření na neoprávněné použití Vámi poskytnutých údajů máte právo předat podnět k šetření Úřadu pro ochranu osobních údajů. Více informací
Chystáte se prodat nemovitost?
Pomůžeme Vám!
Theleadway banner

Inzerát si prohlédlo 5 lidí

Prodejce

Filip Boudyš

Filip Boudyš

Hlídací pes

Chcete dostávat emailem podobné nabídky prodeje zemědělských objektů v Nové Vsi (okr. Rychnov nad Kněžnou)?