Prodej bytu 3+kk, Praha - Chodov, Hrudičkova, 69 m2

Hrudičkova, Praha, Chodov

9 990 000 Kč /za nemovitost HYPOTÉKA od 44 649 Kč /za měsíc
Exkluzivní partneři v Praze 4

Stěhovací služby

Výkup a prodej starého nábytku

Informace k bytu

Nabízím kompletně zrekonstruovaný krásný byt 3+kk revitalizovaného domu s krásným výhledem, s kuchyní na míru a krásnou prostornou koupelnou, v blízkosti metra Roztyly u Kunratického lesa.
Nejedná se o vizualizaci, byt je po náročné a vydařené rekonstrukci.

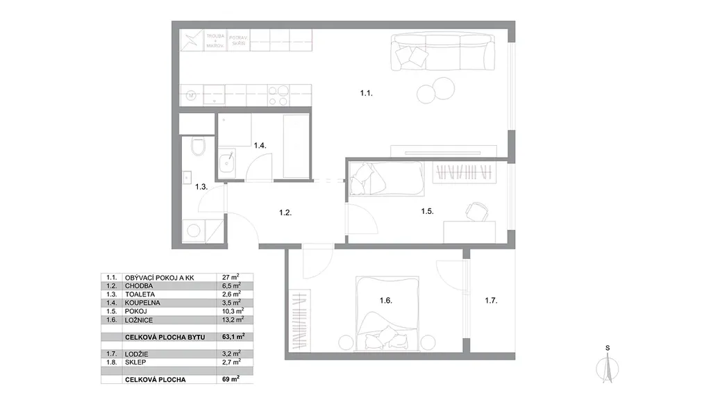
Byt je dispozičně velmi dobře řešený s kuchyní a obývacím pokojem, kde je 27 m2 prostoru. Dále se dvěma prostornými ložnicemi, nádhernou koupelnou s podlahovým topením a samostatnou toaletou. Byt má lodžii a sklep. Jedná se o velmi klidnou lokalitu v blízkosti metra C Roztyly. Parkování je před domem, klidová zóna s menším hřištěm pro děti se nachází na druhé straně domu.

Dispozice bytu 3+kk:
- 2x plnohodnotná ložnice (10 m2 + 13m2)
- Obývací pokoj s prostornou kuchyní na míru (27 m2)
- Vstupní chodba (6,5 m2)
- Koupelna s vanou a sprchovým koutem(3,5m2)
- WC (2,6 m2)
- Lodžie (3,2 m2)
- Sklep (2,7 m2)

V kompletní rekonstrukci ve standardu novostavby je zahrnuto:
- nová kuchyňská linka vyrobena na míru se spotřebiči (značková elektrická trouba, myčka, indukční deska, digestoř, osvětlení, dřez)
- celková výměna elektroinstalačních rozvodů v mědi
- nové osvětlení bytu
- kompletní úprava povrchů stěn
- nové zárubně a dveře
- nivelace podlah a nová vinylová podlaha
- nová sanita (vana, sprchový kout, umyvadlo, skříňka, toaleta)
- podlahové topení v koupelně s digitálním termostatem
- sádrové omítky a SDK podhled v celém bytě
- příprava na pračku v koupelně

Co charakterizuje bytový dům:
- Dům je velmi dobře spravován SVJ s velkým zaměřením na čisté, klidné a bezpečné bydlení.
- Dům je po celkové revitalizaci. Je zateplený a samozřejmostí jsou plastová okna
- Zrekonstruované jsou i společné prostory

Velkou výhodou je kompletní občanská vybavenost, blízkosti Westfield Chodov, metro C Roztyly, dále blízkost rozsáhlého Kunratického lesa a další zeleně a veškeré občanské vybavenosti. Zároveň jste autem za pár minut na městském okruhu nebo v centru města.

Budu se těšit na osobní schůzku při prohlídce. Pro sjednání termínu prohlídky, prosím, vyplňte formulář níže.

Prosím o kontaktování jenom přímé zájemce, a ne realitní kanceláře. Děkuji za respektování.

Parametry bytu

Cena
9 990 000 Kč /za nemovitost Spočítat hypotéku
Aktualizováno
27. 3. 2026
Adresa
Hrudičkova, Praha, Chodov
ID
Hrudíčkova
Stavba
Panelová
Stav objektu
Po rekonstrukci
Patro
3.
Vlastnictví
Osobní
Užitná plocha
69 m2
Třída energetické náročnosti
C - Úsporná
Lodžie

Kontaktovat makléře

Máte zájem o tento byt?

Tímto, v souladu s nařízením Evropského parlamentu a Rady (EU) 2016/679, v platném znění, prohlašuji, že mi je alespoň 16 let a uděluji tak svůj souhlas se zpracováním zadaných údajů (jméno, telefon, e-mail, ip adresa) společnosti B3 Technology, s.r.o., IČ: 07330600, se sídlem Novostavby 126/23, 435 11 Lom (správce dat), za účelem předání dotazu z tohoto formuláře Vámi vybranému inzerentovi a zpětného kontaktování mé osoby. Osobní údaje bude správce zpracovávat manuálně i automaticky přímo prostřednictvím svých zaměstnanců. Informace předané tímto formulářem budou uloženy v databázi správce maximálně po dobu 10 let. Odvolání souhlasu s uložením a zpracováním poskytnutých dat lze e-mailem na info@vitio.cz. V případě podezření na neoprávněné použití Vámi poskytnutých údajů máte právo předat podnět k šetření Úřadu pro ochranu osobních údajů. Více informací
Chystáte se prodat nemovitost?
Pomůžeme Vám!

Inzerát si prohlédlo 0 lidí

Prodejce

Ing. Petra Procházková

Ing. Petra Procházková

Hlídací pes

Chcete dostávat emailem podobné nabídky prodeje bytů 3+kk v Praze 4?

Podobné nemovitosti