Soccer reality

Prodej bytu 3+kk, Praha, Žiželická, 66 m2

Žiželická, Praha 9

7 499 000 Kč /za nemovitost HYPOTÉKA od 33 516 Kč /za měsíc
Exkluzivní partneři v Praze 9

Stěhovací služby

Výkup a prodej starého nábytku

Pojištění a finance

Informace k bytu

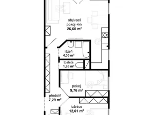
Prodej bytu 3+kk v Praze, ul. Žiželická

Nabízím k prodeji velmi zajímavý byt, který má podlahovou plochu 66 m² a nachází se ve 4.patře bez výtahu. Dominantou obývacího pokoje je francouzské okno se vstupem na lodžii o velikosti 5,5 m², orientované na jihovýchod, díky čemuž je byt krásně prosvětlený po celý den a působí velmi vzdušně a příjemně. Výjimečným benefitem je vlastní půdní prostor přístupný přímo z bytu a také šatna, která ušetří mnoho prostoru. Byt se nachází v klidné a bezpečné části sídliště Rohožník. Do přírody je to doslova pár kroků, ať už do přírodního parku Škvorecká (Králičina) obora nebo do Klánovického lesoparku. Cyklotrasa A25 vás dovede až do centra města.
Domluvte si prohlídku tohoto vyjimečného bytu ještě dnes.

Parametry bytu

Cena
7 499 000 Kč /za nemovitost Spočítat hypotéku
Aktualizováno
26. 4. 2026
Adresa
Žiželická, Praha 9
ID
937212
Stavba
Panelová
Stav objektu
Velmi dobrý
Vybaveno
Částečně
Lokalita objektu
Klidná část obce
Vlastnictví
Osobní
Užitná plocha
66 m2
Lodžie

Kontaktovat makléře

Realitní kancelář

Logo M&M reality

M&M reality

ulice Krakovská 583/9, Praha

Chystáte se prodat nemovitost?
Pomůžeme Vám!

Máte zájem o tento byt?

Tímto, v souladu s nařízením Evropského parlamentu a Rady (EU) 2016/679, v platném znění, prohlašuji, že mi je alespoň 16 let a uděluji tak svůj souhlas se zpracováním zadaných údajů (jméno, telefon, e-mail, ip adresa) společnosti B3 Technology, s.r.o., IČ: 07330600, se sídlem Novostavby 126/23, 435 11 Lom (správce dat), za účelem předání dotazu z tohoto formuláře Vámi vybranému inzerentovi a zpětného kontaktování mé osoby. Osobní údaje bude správce zpracovávat manuálně i automaticky přímo prostřednictvím svých zaměstnanců. Informace předané tímto formulářem budou uloženy v databázi správce maximálně po dobu 10 let. Odvolání souhlasu s uložením a zpracováním poskytnutých dat lze e-mailem na info@vitio.cz. V případě podezření na neoprávněné použití Vámi poskytnutých údajů máte právo předat podnět k šetření Úřadu pro ochranu osobních údajů. Více informací
Chystáte se prodat nemovitost?
Pomůžeme Vám!
Theleadway banner

Inzerát si prohlédlo 6 lidí

Prodejce

Kristýna Vaitová

Kristýna Vaitová

Hlídací pes

Chcete dostávat emailem podobné nabídky prodeje bytů 3+kk v Praze 9?

Podobné nemovitosti