Prodej bytu 3+kk, Prostějov, Kostelecká, 69 m2

Kostelecká, Prostějov

3 600 000 Kč /za nemovitost HYPOTÉKA od 16 090 Kč /za měsíc
Exkluzivní partneři v Prostějově

Pojištění a finance

Informace k bytu

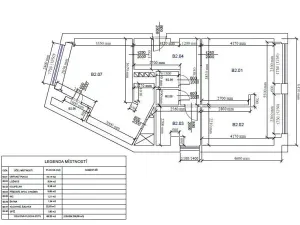
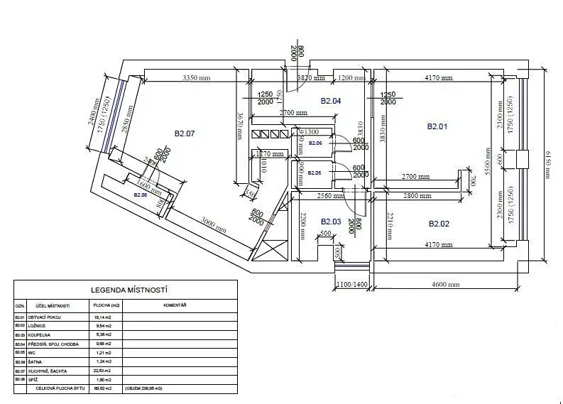
Nabízíme k prodeji bytovou jednotku o dispozici 3+kk a celkové podlahové ploše 69,52 m². Nemovitost se nachází v klidném bytovém domě na ulici Kostelecká, v lokalitě s výbornou dostupností do historického centra města Prostějova (jen 5 minut chůze na náměstí). Dispoziční řešení zahrnuje, obývací pokoj s kuchyňským koutem, dva pokoje, koupelnu s vanou a samostatnou toaletu. Součástí je praktická šatna, sklepní kóje a podíl na půdním prostoru 15 m2. V bytě je instalován nový kondenzační kotel. Díky němu výrazně ušetříte na poplatcích a zatopit si můžete kdykoliv, bez ohledu na topnou sezónu Dům se nachází v širším centru města s veškerou občanskou vybaveností v docházkové vzdálenosti. Velkou výhodou je možnost pronájmu parkovacího místa v bezprostřední blízkosti domu.

Parametry bytu

Cena
3 600 000 Kč /za nemovitost Spočítat hypotéku
Aktualizováno
5. 5. 2026
Adresa
Kostelecká, Prostějov
ID
N00087
Stavba
Panelová
Stav objektu
Dobrý
Patro
1. z 4
Lokalita objektu
Centrum obce
Vlastnictví
Osobní
Užitná plocha
69 m2
Podlahová plocha
69 m2
Třída energetické náročnosti
G - Mimořádně nehospodárná
Plyn
Plynovod
Odpad
Veřejná kanalizace
Topení
Ústřední plynové
Voda
Vodovod
Zdroj topení
Plynový kondenzační kotel
Zdroj teplé vody
Plynový kondenzační kotel
Sklep

Kontaktovat makléře

Máte zájem o tento byt?

Tímto, v souladu s nařízením Evropského parlamentu a Rady (EU) 2016/679, v platném znění, prohlašuji, že mi je alespoň 16 let a uděluji tak svůj souhlas se zpracováním zadaných údajů (jméno, telefon, e-mail, ip adresa) společnosti B3 Technology, s.r.o., IČ: 07330600, se sídlem Novostavby 126/23, 435 11 Lom (správce dat), za účelem předání dotazu z tohoto formuláře Vámi vybranému inzerentovi a zpětného kontaktování mé osoby. Osobní údaje bude správce zpracovávat manuálně i automaticky přímo prostřednictvím svých zaměstnanců. Informace předané tímto formulářem budou uloženy v databázi správce maximálně po dobu 10 let. Odvolání souhlasu s uložením a zpracováním poskytnutých dat lze e-mailem na info@vitio.cz. V případě podezření na neoprávněné použití Vámi poskytnutých údajů máte právo předat podnět k šetření Úřadu pro ochranu osobních údajů. Více informací
Chystáte se prodat nemovitost?
Pomůžeme Vám!
Theleadway banner

Inzerát si prohlédlo 9 lidí

Prodejce

Marcela Zavadilová

Marcela Zavadilová

Hlídací pes

Chcete dostávat emailem podobné nabídky prodeje bytů 3+kk v Prostějově?

Podobné nemovitosti