Soccer reality

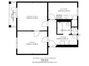
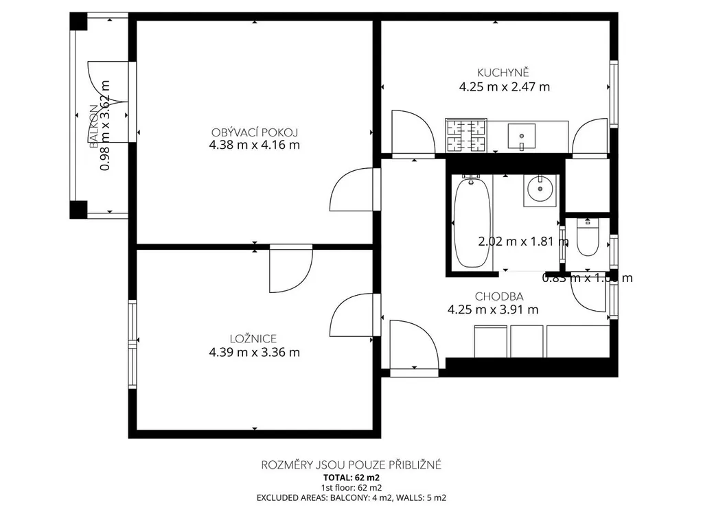
Prodej bytu 2+1, Odolena Voda, Partyzánská, 62 m2

Partyzánská, Odolena Voda

Exkluzivní partneři v Odoleně Vodě

Informace k bytu

Prodej bytu 2+kk, 62 m², Praha - Východ, Odolená Voda

Exkluzivně nabízíme byt 2+1 o výměře 61,5 m and sup2; v klidné části Odolené Vody (3. NP) s balkonem a třemi sklepními prostory. Dispozice bytu nabízí vzdušné a otevřené řešení ložnice je průchozí z obývacího pokoje i chodby, což vytváří příjemné propojení prostoru. Dále samostatná kuchyně, koupelna, samostatné WC a prostorná chodba. V bytě je zaveden plyn, vytápění je řešeno pomocí WAW a elektricky.

Byt je v původním stavu a ideální k rekonstrukci možnost upravit dispozice a provést změny dle vlastních představ nebo využít jako investice.

Dopravní dostupnost: pravidelné autobusové spoje (přibližně každých 30 minut) směr Kobylisy (přestup na metro); autem k metru Letňany cca 18 min. Občanská vybavenost v obci: mateřská škola, základní škola, střední škola a několik obchodů.

Upozornění: některé fotografie v inzerci jsou vizualizace znázorňující možný budoucí stav bytu po rekonstrukci.

V případě
zájmu o více informací nebo domluvení prohlídky neváhejte kontaktovat realitní
kancelář. Rádi Vám pomůžeme i se zajištěním financování hypotečním úvěrem.

Parametry bytu

Cena
5 090 000 Kč Spočítat hypotéku
Aktualizováno
24. 3. 2026
Adresa
Partyzánská, Odolena Voda
ID
49
Stavba
Cihlová
Stav objektu
Před rekonstrukcí
Vybaveno
Ne
Vlastnictví
Osobní
Užitná plocha
62 m2
Třída energetické náročnosti
G - Mimořádně nehospodárná

Kontaktovat makléře

Máte zájem o tento byt?

Tímto, v souladu s nařízením Evropského parlamentu a Rady (EU) 2016/679, v platném znění, prohlašuji, že mi je alespoň 16 let a uděluji tak svůj souhlas se zpracováním zadaných údajů (jméno, telefon, e-mail, ip adresa) společnosti B3 Technology, s.r.o., IČ: 07330600, se sídlem Novostavby 126/23, 435 11 Lom (správce dat), za účelem předání dotazu z tohoto formuláře Vámi vybranému inzerentovi a zpětného kontaktování mé osoby. Osobní údaje bude správce zpracovávat manuálně i automaticky přímo prostřednictvím svých zaměstnanců. Informace předané tímto formulářem budou uloženy v databázi správce maximálně po dobu 10 let. Odvolání souhlasu s uložením a zpracováním poskytnutých dat lze e-mailem na info@vitio.cz. V případě podezření na neoprávněné použití Vámi poskytnutých údajů máte právo předat podnět k šetření Úřadu pro ochranu osobních údajů. Více informací
Chystáte se prodat nemovitost?
Pomůžeme Vám!

Inzerát si prohlédlo 0 lidí

Prodejce

Jana Pazourková

Jana Pazourková

Hlídací pes

Chcete dostávat emailem podobné nabídky prodeje bytů 2+1 v Odoleně Vodě?

Podobné nemovitosti