Prodej bytu 2+kk, Praha - Žižkov, Lucemburská, 80 m2

Lucemburská, Praha 3 - Žižkov

Exkluzivní partneři v Praze 3

Stěhovací služby

Výkup a prodej starého nábytku

Pojištění a finance

Informace k bytu

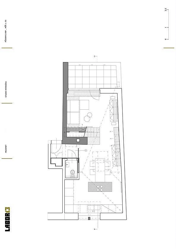
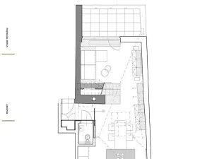
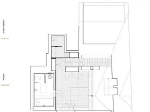
Loft 80 m², terasa 8 m² ve staré zástavbě pražských Vinohrad

Loftový byt o dispozici 2+kk s terasou 8 m² a sklepem ve staré zástavbě pražských Vinohrad.

Vstupní podlaží tvoří vzdušný prostor s předsíní a toaletou, kuchyní a obývacím pokojem, z něhož vede přístup na terasu s výhledem na Žižkovskou věž a Vítkov.
Klidovou část vytváří útulné patro s ložnicí a koupelnou.

Obě podlaží propojuje vložené schodiště, které spolu s navazujícím pódiem tvoří výrazný dřevěný prvek ve spodním obývacím prostoru. Pódium představuje funkční prvek, slouží pro vstup na terasu a je do něj také vsazena sedací souprava na míru. Ta může posloužit jako klasické lůžko pro přespání hostů.
Celé spodní podlaží sjednocuje světlá dlažba. Kuchyňský prostor je řešen s pracovními deskami z tvrzeného umělého kamene.
Nika s knihovnou, jejíž jedna police může zároveň sloužit jako pracovní stolní deska, představuje další výrazný prvek.

Tmavé dřevo schodiště plynule přechází do podlahy patra a kontrastuje tak zároveň s betonovou stěrkou centrální zdi s krbem a světlým obkladem vestavěných stěn s úložnými prostory. Konec schodiště osvětluje denním světlem malý světlík.

V patře v ložnici pod velkým střešním oknem se opakuje prvek pódia, do kterého je vsazena postel.
Za dveřmi integrovanými v dřevěné stěně je koupelna s tmavým kamenným obkladem a dalším světlíkem, toaletou, vanou a sprchovým koutem.

Vytápění plynovým kotlem.
Obývací pokoj s plynovým krbem.
Dispozici lze upravit na 3+kk.

Parametry bytu

Cena
15 400 000 Kč Spočítat hypotéku
Aktualizováno
21. 3. 2026
Adresa
Lucemburská, Praha 3 - Žižkov
ID
2601
Stavba
Cihlová
Vybaveno
Částečně
Vlastnictví
Osobní
Užitná plocha
80 m2
Třída energetické náročnosti
G - Mimořádně nehospodárná

Kontaktovat makléře

Máte zájem o tento byt?

Tímto, v souladu s nařízením Evropského parlamentu a Rady (EU) 2016/679, v platném znění, prohlašuji, že mi je alespoň 16 let a uděluji tak svůj souhlas se zpracováním zadaných údajů (jméno, telefon, e-mail, ip adresa) společnosti B3 Technology, s.r.o., IČ: 07330600, se sídlem Novostavby 126/23, 435 11 Lom (správce dat), za účelem předání dotazu z tohoto formuláře Vámi vybranému inzerentovi a zpětného kontaktování mé osoby. Osobní údaje bude správce zpracovávat manuálně i automaticky přímo prostřednictvím svých zaměstnanců. Informace předané tímto formulářem budou uloženy v databázi správce maximálně po dobu 10 let. Odvolání souhlasu s uložením a zpracováním poskytnutých dat lze e-mailem na info@vitio.cz. V případě podezření na neoprávněné použití Vámi poskytnutých údajů máte právo předat podnět k šetření Úřadu pro ochranu osobních údajů. Více informací
Chystáte se prodat nemovitost?
Pomůžeme Vám!
Theleadway banner

Inzerát si prohlédlo 17 lidí

Prodejce

LIVING POINT s. r. o.

LIVING POINT s. r. o.

Hlídací pes

Chcete dostávat emailem podobné nabídky prodeje bytů 2+kk v Praze 3?

Podobné nemovitosti