Prodej bytu 3+1, Křenov, 63 m2

Křenov

2 650 000 Kč /za nemovitost HYPOTÉKA od 11 844 Kč /za měsíc

(včetně provize a právního servisu)

Exkluzivní partneři v Křenově

Informace k bytu

Hledáte klidné rodinné bydlení, kde se skloubí pohodlí bytu s výhodami bydlet velmi blízko přírodě? Nabízíme vám k prodeji světlý a pečlivě udržovaný byt 3+1 s balkonem v Křenově.
Hlavní přednosti bytu:
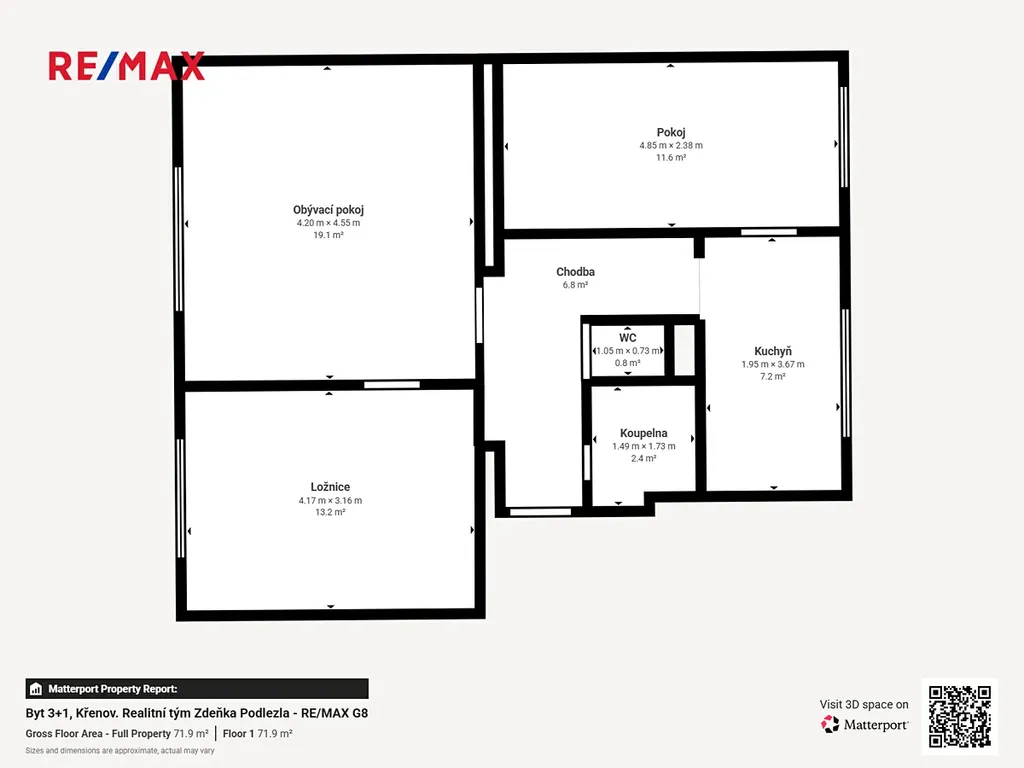
• Dispozice: 3+1 o výměře 63 m² v 1. NP (zvýšené přízemí).
• Stav: Velmi dobrý, po průběžných rekonstrukcích. Zcela nová koupelna (dokončena 2025!).
• Nízké náklady: Aktuální měsíční náklady pro 4člennou rodinu se pohybují kolem 6.000 Kč.
• Financování: Družstevní vlastnictví se splacenou anuitou a garantovanou možností převodu do osobního vlastnictví – koupi lze tedy financovat klasickou hypotékou.
Technický stav a vybavení:
Byt i dům prošly rozsáhlou modernizací, která zajišťuje úsporný a bezstarostný provoz:
• Byt: Nové vlastní topení, rozvody vody a elektřina v mědi (2010).
• Dům: Kompletní revitalizace – zateplení, plastová okna a nová střecha.
• Sítě: Napojení na obecní vodovod. V roce 2026 je dokončena moderní domovní čistička s vsakem a nová dešťová jímka.
• Vytápění: Úsporný automatický kotel Galmet se zásobníkem na uhlí (umístěn ve sklepě), ohřev vody řešen elektrickým/kombinovaným bojlerem.
Bonusy:
1. Zahrada: Součástí prodeje je podíl na pozemku okolo domu. Získáte tak prostor pro relaxaci, nebo bezpečné hraní dětí přímo u domu.
2. Úložné prostory: K bytu náleží hned 2 prostorné sklepy. V jednom je uskladněno uhlí do automatického kotle a druhý můžete využít jako sklad. Součástí společných prostorů je i kolárna.
3. Virtuální prohlídka: Než se potkáme osobně, můžete si byt projít online díky 3D virtuální prohlídce, která je součástí prezentace.
Lokalita a občanská vybavenost:
Obec Křenov je ideálním místem pro rodinný život. V docházkové vzdálenosti najdete vše potřebné:
• Mateřská a základní škola (ideální pro rodiny s dětmi).
• Obchod, pošta a obecní úřad.
• Knihovna, hospůdka a dětské hřiště.
Zveme vás na prohlídku! Přijďte se sami přesvědčit o skvělé atmosféře tohoto bytu. Díky 3D prohlídce si můžete dispozici nastudovat hned teď a poté se s námi domluvit na osobním termínu.
Kontaktujte nás a rezervujte si svůj termín prohlídky. Prodávající si vyhrazuje právo vybrat kupujícího na základě jím zvolených kritérií.

Parametry bytu

Cena
2 650 000 Kč /za nemovitost Spočítat hypotéku
Poznámka k ceně
včetně provize a právního servisu
Aktualizováno
18. 3. 2026
Adresa
Křenov
ID
0020-NP10905
Stavba
Cihlová
Stav objektu
Velmi dobrý
Patro
1. z 3
Vlastnictví
Družstevní
Užitná plocha
63 m2
Zastavěná plocha
330 m2
Podlahová plocha
73 m2
Odpad
ČOV pro celý objekt
Voda
Vodovod
Topné těleso
Radiátory
Zdroj teplé vody
Bojler - elektro
Balkon
Sklep
Převod do OV

Kontaktovat makléře

Realitní kancelář

RE/MAX G8 Reality

Rohanské nábřeží 678/27, Praha

Chystáte se prodat nemovitost?
Pomůžeme Vám!

Máte zájem o tento byt?

Tímto, v souladu s nařízením Evropského parlamentu a Rady (EU) 2016/679, v platném znění, prohlašuji, že mi je alespoň 16 let a uděluji tak svůj souhlas se zpracováním zadaných údajů (jméno, telefon, e-mail, ip adresa) společnosti B3 Technology, s.r.o., IČ: 07330600, se sídlem Novostavby 126/23, 435 11 Lom (správce dat), za účelem předání dotazu z tohoto formuláře Vámi vybranému inzerentovi a zpětného kontaktování mé osoby. Osobní údaje bude správce zpracovávat manuálně i automaticky přímo prostřednictvím svých zaměstnanců. Informace předané tímto formulářem budou uloženy v databázi správce maximálně po dobu 10 let. Odvolání souhlasu s uložením a zpracováním poskytnutých dat lze e-mailem na info@vitio.cz. V případě podezření na neoprávněné použití Vámi poskytnutých údajů máte právo předat podnět k šetření Úřadu pro ochranu osobních údajů. Více informací
Chystáte se prodat nemovitost?
Pomůžeme Vám!

Inzerát si prohlédlo 5 lidí

Prodejce

Zdeněk Podlezl

Zdeněk Podlezl

Hlídací pes

Chcete dostávat emailem podobné nabídky prodeje bytů 3+1 v Křenově?

Podobné nemovitosti