Prodej bytu 2+1, Trutnov, Marie Pujmanové, 50 m2

Marie Pujmanové, Trutnov, Kryblice

3 490 000 Kč /za nemovitost HYPOTÉKA od 15 598 Kč /za měsíc
Exkluzivní partneři v Trutnově

Informace k bytu

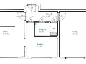
Nabízíme k prodeji byt s dispozicí 2+1 v osobním vlastnictví, nachází se v klidné a vyhledávané lokalitě Kryblice v Trutnově. Celková podlahová plocha bytu je 56 m².
Byt disponuje dvěma samostatnými neprůchozími pokoji, což zajišťuje dostatek soukromí pro jednotlivé členy domácnosti. Součástí bytu je také kuchyň vybavená kuchyňskou linkou. V bytě se dále nachází koupelna se sprchovým koutem, umyvadlem a samostatná toaleta.
K bytu náleží sklepní kóje o výměře 6,5 m², která poskytuje dostatek úložného prostoru.
Byt prošel částečnou rekonstrukcí přibližně před 10 lety. Dům je po revitalizaci fasády a má plastová okna, což přispívá k lepší energetické úspornosti a komfortu bydlení.
Lokalita Kryblice nabízí velmi dobrou občanskou vybavenost. V docházkové vzdálenosti se nachází mateřská a základní škola, obchody, restaurace, lékárna, zdravotní středisko i zastávky městské hromadné dopravy.
V blízkosti se nachází lesy a příroda vhodná pro procházky, sport i cykloturistiku. Výhodou je dobrá dostupnost do centra města Trutnov.
Byt je vhodný jak k vlastnímu bydlení, tak jako investice k pronájmu.
Pro více informací nebo domluvení osobní prohlídky mne neváhejte kontaktovat na uvedeném telefonním čísle.

Parametry bytu

Cena
3 490 000 Kč /za nemovitost Spočítat hypotéku
Aktualizováno
14. 4. 2026
Adresa
Marie Pujmanové, Trutnov, Kryblice
ID
20333
Stavba
Cihlová
Stav objektu
Dobrý
Patro
3. z 4
Vlastnictví
Osobní
Užitná plocha
50 m2
Podlahová plocha
56 m2
Třída energetické náročnosti
D - Méně úsporná
Ukazatel energetické náročnosti
125 kWh/m2 za rok
Elektřina
230V
Plyn
Plynovod
Odpad
Veřejná kanalizace
Komunikace
Asfaltová
Doprava
Silnice
Voda
Vodovod
Zdroj topení
Centrální dálkové
Sklep

Kontaktovat makléře

Máte zájem o tento byt?

Tímto, v souladu s nařízením Evropského parlamentu a Rady (EU) 2016/679, v platném znění, prohlašuji, že mi je alespoň 16 let a uděluji tak svůj souhlas se zpracováním zadaných údajů (jméno, telefon, e-mail, ip adresa) společnosti B3 Technology, s.r.o., IČ: 07330600, se sídlem Novostavby 126/23, 435 11 Lom (správce dat), za účelem předání dotazu z tohoto formuláře Vámi vybranému inzerentovi a zpětného kontaktování mé osoby. Osobní údaje bude správce zpracovávat manuálně i automaticky přímo prostřednictvím svých zaměstnanců. Informace předané tímto formulářem budou uloženy v databázi správce maximálně po dobu 10 let. Odvolání souhlasu s uložením a zpracováním poskytnutých dat lze e-mailem na info@vitio.cz. V případě podezření na neoprávněné použití Vámi poskytnutých údajů máte právo předat podnět k šetření Úřadu pro ochranu osobních údajů. Více informací
Chystáte se prodat nemovitost?
Pomůžeme Vám!

Inzerát si prohlédlo 51 lidí

Prodejce

Bc. Martin Škvařil

Bc. Martin Škvařil

Hlídací pes

Chcete dostávat emailem podobné nabídky prodeje bytů 2+1 v Trutnově?

Podobné nemovitosti